- 2
- 93 m²
- garages
Mooi appartement met terras te centrum Aalst!
Mooi appartement met terras te centrum Aalst!
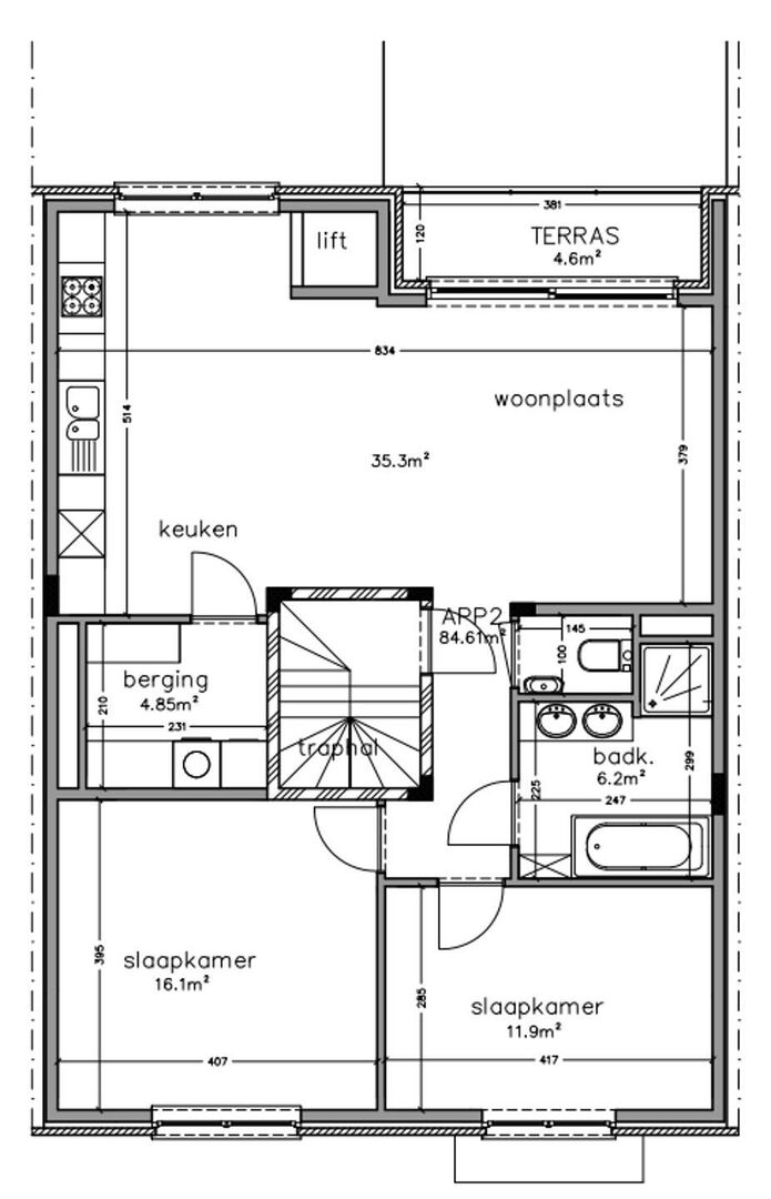
Dit appartement bevindt zich op de 2de verdieping van een kleinschalig gebouw. Het beschikt over een ruime living met terras en aansluitend een open keuken (nieuwe vaatwas, spoelbak, nieuwe inductie kookplaat, dampkap, oven, microgolf en koelkast), een ruime berging met aansluiting voor wasmachine, ruime badkamer (dubbele lavabo en douche en bad) en 2 ruime slaapkamers.
Aan de achterzijde van het appartement bevindt zich nog een rustig terras met zicht op bomen.
Er is overal dubbele beglazing en zelfs ventilatie aanwezig, en er is centrale verwarming op aardgas (weinig verbruik wegens gunstig EPC).
Het gebouw is uitgerust met een goederenlift die uitkomt in de keuken, handig voor boodschappen! (Geen personenlift)
Dit mooie appartement is uitstekend gelegen, in het centrum van Aalst, op wandelafstand van de grote markt en dicht bij scholen, winkels, openbaar vervoer,...
De huurprijs voor het appartement + autostaanplaats (inbegrepen!) bedraagt 930 euro per maand + 50 euro voor gemeenschappelijke kosten. EPC: 104 kWh/m²
Voor meer info en/of een bezoek, contacteer ons via steffen@immotijl.be of 053 42 46 99.
In detail
Financieel
- prijs
- € 930 per maand
- beschikbaarheid
- 01 februari 2026
- opbrengsteigendom
- nee
Ligging
- omgeving school
- ja
- omgeving openbaar vervoer
- ja
- omgeving winkels
- ja
- omgeving autosnelweg
- ja
- omgeving sportcentrum
- ja
Comfort
- rolstoeltoegankelijk
- nee
- intercom
- ja
- lift
- ja
- aansluiting gas
- ja
- aansluiting water
- ja
- kabeltelevisie
- ja
Gebouw
- bewoonbare opp.
- 93,00 m²
- constructie
- Gesloten
- bouwjaar
- 2013
Terrein
- tuin
- nee
Energie
- epc
- 104 kWh/m²
- epc unieke code
- 20210305-0002382489-res-1
- epc klasse
- B
- dubbel glas
- ja
Technieken
- elektriciteit
- ja
- telefoonbekabeling
- ja
Garages / parking
- garages / parking
- nee
- binnenparking
- nee
- buitenparking
- 1
Indeling
- woonkamer
- 35 m²
- keuken
- ja
- slaapkamers
- 2
- slaapkamer 1
- 16 m²
- slaapkamer 2
- 12 m²
- terras
- ja
- terras 1
- 5,00 m²
Stedenbouwkundige informatie & ruimtelijke ordening
- overstromingsgevoeliggebied
- Niet gelegen in een overstromingsgevoelig gebied























