- 2
- 90 m²
- garages
Bemeubeld appartement met terras en staanplaats te Aalst!
Bemeubeld appartement met terras en staanplaats te Aalst.
Inschrijven voor een afspraak is enkel mogelijk bij de advertentie van het pand op onze website www.immotijl.be.
Het appartement wordt volledig gemeubeld aangeboden en kan enkel gehuurd worden met een contract van één jaar.
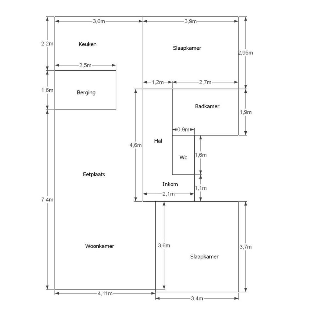
Dit lichtrijk appartement bevindt zich op de tweede verdieping van een recent gebouw met lift en beschikt over een inkomhal met gastentoilet, een ruime, gezellige woonkamer met eetplaats en volledig ingerichte open keuken, een handige berging/wasplaats, 2 mooie slaapkamers en een badkamer (douche-in-bad, lavabo).
Achteraan geniet je van een gezellig terras waar het aangenaam vertoeven is. Een extra troef is de bijhordende ondergrondse autostaanplaats.
Gelegen op een boogscheut van het centrum van Aalst, met vlotte verbinding naar invalswegen en op korte afstand van het station.
Huurprijs: 850 euro + 50 euro gemeenschappelijke kosten.
In detail
Financieel
- prijs
- € 850 per maand
- beschikbaarheid
- 01 juli 2026
- opbrengsteigendom
- nee
Ligging
- ligging
- Stadskern
- omgeving school
- ja
- omgeving openbaar vervoer
- ja
- omgeving winkels
- ja
- omgeving autosnelweg
- ja
- omgeving sportcentrum
- ja
Comfort
- videofoon
- ja
- lift
- ja
- aansluiting gas
- ja
- aansluiting water
- ja
- kabeltelevisie
- ja
Gebouw
- bewoonbare opp.
- 90,00 m²
- constructie
- Gesloten
- verdieping
- 2
Energie
- epc
- 92 kWh/m²
- epc unieke code
- 20260108-0003771295-RES-1
- epc klasse
- A
- dubbel glas
- ja
- elektriciteitskeuring
- ja, conform
- verwarming
- Gas
Technieken
- elektriciteit
- ja
- telefoonbekabeling
- ja
Garages / parking
- binnenparking
- 1
Indeling
- kelder
- ja
- slaapkamers
- 2
- slaapkamer 1
- 12 m²
- slaapkamer 2
- 11 m²
- terras
- ja
- woonkamer
- 31 m²
- keuken
- 8 m², Volledig geïnstalleerd
Downloads
Stedenbouwkundige informatie & ruimtelijke ordening
- bestemming
- Woongebied
- g-score
- C
- p-score
- C












