- 2
- garages
Knap appartement met berging, garage en 2 autostaanplaatsen!
Dit ruime en lichtrijke appartement bevindt zich op de eertse verdieping van een recent gebouw met lift, gelegen in een rustige straat op slechts 5 minuten van het centrum van Aalst. Een ideale ligging met een vlotte verbinding naar invalswegen, winkels en openbaar vervoer.
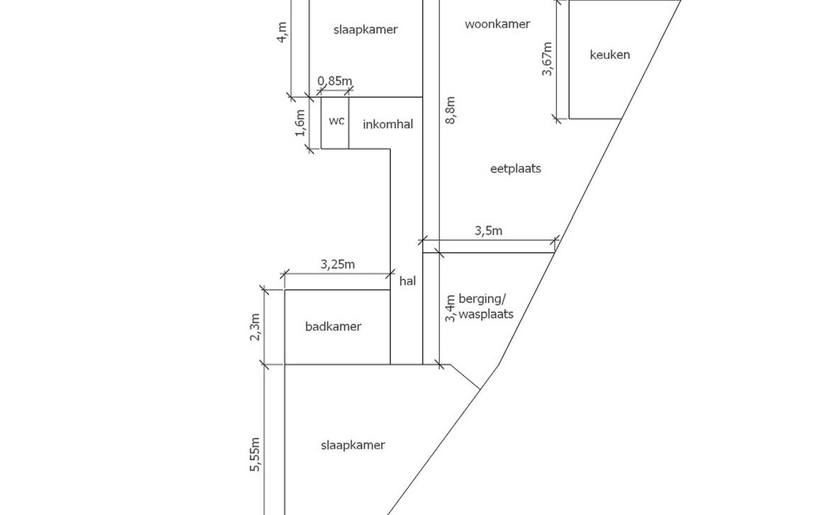
Het appartement beschikt over een inkomhal met gastentoilet, ruime woonkamer met uitgeruste keuken. Verder is er een praktische berging met aansluiting voor wasmachine, een badkamer met ligbad, douche en dubbel lavabomeubel, en twee volwaardige slaapkamers.
Voor het gebouw zijn er twee privé autostaanplaatsen. Een absolute troef is de ondergrondse kelderberging en de afgesloten garagebox in de ondergrondse parking.
Dit energiezuinig appartement is voorzien van o.a. hoogrendementsbeglazing, gunstig EPC, centrale verwarming op aardgas, ... Momenteel verhuurd, dus ook ideaal als investering!
Benieuwd naar dit instapklaar appartement? Neem alvast een kijkje via de virtuele rondleiding op onze website.
Voor meer info of een bezoek, contacteer ons via steffen@immotijl.be of 053 42 46 99.
In detail
Financieel
- prijs
- € 327.000
- beschikbaarheid
- Vanaf akte
- onder btw stelsel
- nee
- kadastraal inkomen
- € 1.267
- opbrengsteigendom
- nee
Ligging
- ligging
- Stadsrand
- omgeving school
- ja
- omgeving openbaar vervoer
- ja
- omgeving winkels
- ja
- omgeving autosnelweg
- ja
- omgeving sportcentrum
- ja
Comfort
- videofoon
- ja
- lift
- ja
- aansluiting riolering
- ja
- aansluiting gas
- ja
- aansluiting water
- ja
Gebouw
- bouwjaar
- 2005
- verdieping
- 1
Energie
- epc
- 93 kWh/m²
- epc unieke code
- 3731606-RES-1
- epc klasse
- A
- dubbel glas
- ja
- verwarming
- Gas
- type verwarming
- Individueel
Technieken
- elektriciteit
- ja
- telefoonbekabeling
- ja
Garages / parking
- garages / parking
- 1
- binnenparking
- 1
- buitenparking
- 2
Indeling
- kelder
- ja
- slaapkamers
- 2
- slaapkamer 1
- 14 m²
- slaapkamer 2
- 16 m²
- badkamers
- 1
- badkamer
- 7 m², type: Alle comfort
- toiletten
- 2
- terras
- ja
- woonkamer
- 45 m²
- keuken
- 10 m², Volledig geïnstalleerd
Stedenbouwkundige informatie & ruimtelijke ordening
- bestemming
- Woongebied
- bouwvergunning
- ja
- verkavelingsvergunning
- nee
- voorkooprecht
- nee
- vonnissen
- nee
- g-score
- A
- p-score
- A
- kadaster sectie
- B
- kadaster nummer
- 34 C
- bodemattest
- ja
















