- 3
- 122 m²
- garages
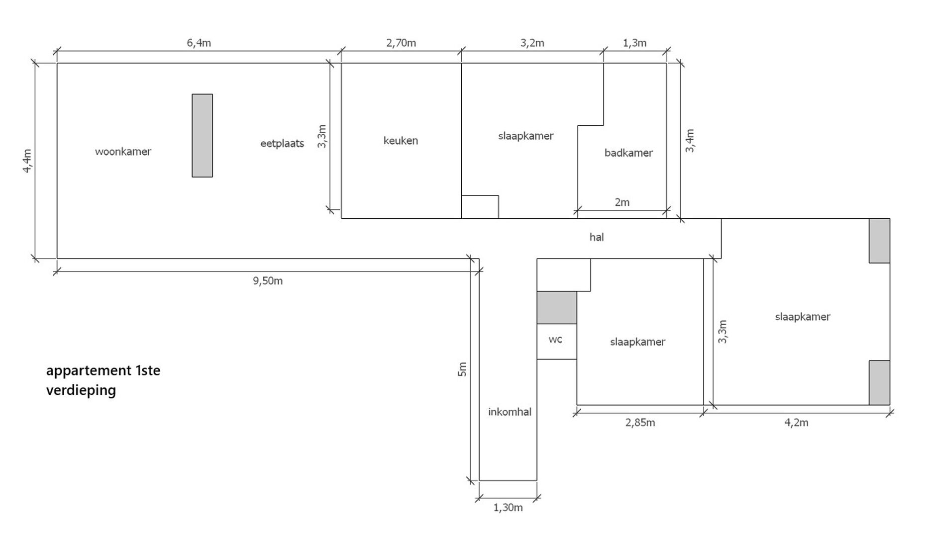
Instapklaar appartement met 3 slaapkamers in centrum Aalst!
Dit verzorgd appartement op de eerste verdieping (lift aanwezig) beschikt over een inkomhal met gastentoilet en vestiaire, een lichtrijke woonkamer met eetplaats, een ingerichte keuken, 3 mooie slaapkamers en een badkamer (ruime douche, lavabo en aansluiting wasmachine). Er is tevens een aangenaam terras aanwezig.
Het appartement is voorzien van o.a. dubbele beglazing, centrale verwarming op aardgas, videofoon, gunstig EPC-label B én de elektriciteit is conform. Een praktische privé-kelderberging is inbegrepen, en in het gebouw is er een gemeenschappelijke fietsenberging aanwezig.
Ideaal gelegen aan Esplanadeplein in centrum Aalst, grenzend aan de winkelstraten en op wandelafstand van de Grote Markt, Utopia, scholen en station (rechtstreekse verbinding Brussel en Gent). Er is ook voldoende parkeergelegenheid op de parking van het Esplanadeplein! Contacteer ons gerust voor meer info en/of een bezoek via june@immotijl.be of bel naar 0486 17 07 61.
In detail
Financieel
- prijs
- € 259.000
- beschikbaarheid
- Af te spreken met eigenaar
- onder btw stelsel
- nee
- kadastraal inkomen
- € 1.008
- opbrengsteigendom
- nee
Ligging
- ligging
- Stadskern
- omgeving school
- ja
- omgeving openbaar vervoer
- ja
- omgeving winkels
- ja
- omgeving autosnelweg
- ja
- omgeving sportcentrum
- ja
Comfort
- videofoon
- ja
- lift
- ja
- aansluiting riolering
- ja
- aansluiting gas
- ja
- aansluiting water
- ja
Gebouw
- bewoonbare opp.
- 122,00 m²
- bouwjaar
- 1986
- verdieping
- 1
Energie
- epc
- 192 kWh/m²
- epc unieke code
- 3662722-RES-1
- epc klasse
- B
- dubbel glas
- ja
- elektriciteitskeuring
- ja, conform
- verwarming
- Gas
- type verwarming
- Collectief
Technieken
- elektriciteit
- ja
- telefoonbekabeling
- ja
Garages / parking
- buitenparking
- 1
Indeling
- kelder
- ja
- slaapkamers
- 3
- slaapkamer 1
- 15 m²
- slaapkamer 2
- 9 m²
- slaapkamer 3
- 10 m²
- badkamers
- 1
- badkamer
- 5 m², type: Douche
- toiletten
- 1
- terras
- ja
- woonkamer
- 28 m²
- keuken
- 9 m², Geïnstalleerd
Certificaten
- asbestinventarisattest
- Ja
Stedenbouwkundige informatie & ruimtelijke ordening
- bestemming
- Woongebied
- bouwvergunning
- ja
- verkavelingsvergunning
- nee
- voorkooprecht
- nee
- vonnissen
- nee
- g-score
- D
- p-score
- D
- bestuursmaatregelen in het maatregelenregister
- nee
- kadaster sectie
- C
- kadaster nummer
- 999 D4
- bodemattest
- ja











