- 1
- 63 m²
- garages
Instapklaar appartement met 1 slpk, terras en autostaanplts!
Instapklaar appartement in het hart van Aalst.
Dit centraal gelegen 1-slaapkamerappartement biedt alle comfort voor wie zorgeloos wil wonen.
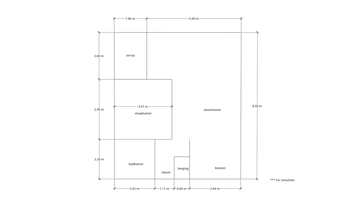
Via de inkomhal komt u binnen in het appartement, waar zich een praktische berging en de badkamer bevinden. De badkamer is uitgerust met een bad met douchefunctie, een lavabomeubel en een toilet.
Verder beschikt het appartement over een ruime en lichtrijke leefruimte met aansluitend een open keuken.
De slaapkamer geeft rechtstreeks toegang tot het zuidgerichte terras, waar u in alle rust van de zon kan genieten.
Mogelijkheid tot aankoop van een overdeke autostaanplaats
Als extra troef is er de mogelijkheid om een autostaanplaats aan te kopen zo beschikt het appartement over een overdekte en afgesloten autostaanplaats, wat parkeren bijzonder comfortabel maakt.
Dankzij de uitstekende ligging bevindt u zich op wandelafstand van winkels, openbaar vervoer en andere voorzieningen.
Neem zeker al eens een kijkje binnen via onze virtuele rondleiding!
Kom je dit appartement graag zelf ontdekken? Voor meer informatie of een bezoek, contacteer ons via steffen@immotijl.be of 053 42 46 99.
In detail
Financieel
- prijs
- € 189.000
- beschikbaarheid
- Vanaf akte
- onder btw stelsel
- nee
- kadastraal inkomen
- € 778
- opbrengsteigendom
- nee
Ligging
- ligging
- Centraal
- omgeving school
- ja
- omgeving openbaar vervoer
- ja
- omgeving winkels
- ja
- omgeving autosnelweg
- ja
- omgeving sportcentrum
- ja
Comfort
- lift
- ja
- aansluiting riolering
- ja
- aansluiting gas
- ja
- aansluiting water
- ja
Gebouw
- bewoonbare opp.
- 63,00 m²
- constructie
- Gesloten
- bouwjaar
- 1997
- verdieping
- 1
- oriëntatie voorgevel
- Noord
Energie
- epc
- 294 kWh/m²
- epc unieke code
- 20250710-0003644252-RES1
- epc klasse
- C
- elektriciteitskeuring
- ja, conform
- verwarming
- Gas
- type verwarming
- Collectief
Technieken
- elektriciteit
- ja
- telefoonbekabeling
- ja
Garages / parking
- garages / parking
- 1
- binnenparking
- 1
- buitenparking
- nee
Indeling
- slaapkamers
- 1
- slaapkamer
- 11 m²
- badkamers
- 1
- badkamer
- 4 m², type: Douche in bad
- toiletten
- 1
- terras
- ja
- terras 1
- 3,00 m²
- woonkamer
- 20 m²
- keuken
- ja
Stedenbouwkundige informatie & ruimtelijke ordening
- bestemming
- Woongebied
- bouwvergunning
- ja
- verkavelingsvergunning
- nee
- voorkooprecht
- nee
- vonnissen
- nee
- g-score
- C
- p-score
- C
- kadaster sectie
- C
- kadaster nummer
- 1120P















