- 2
- 88 m²
Recent appartement met 2 slpks - mooie opbrengsteigendom!
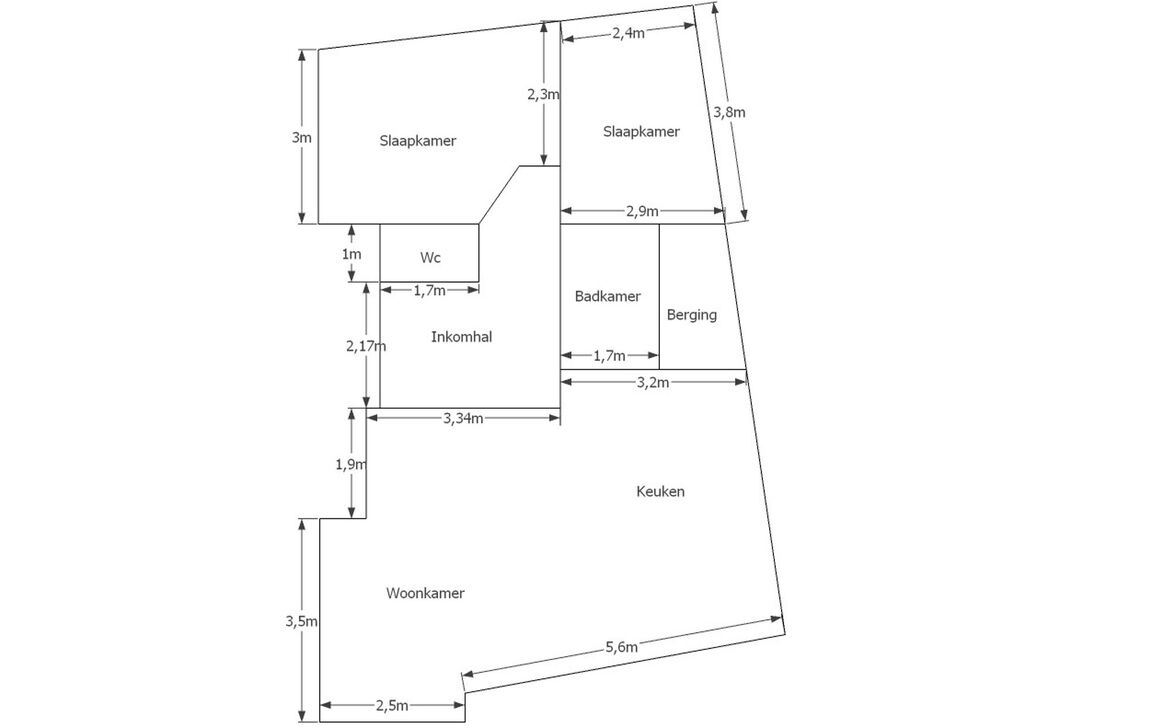
Dit appartement bevindt zich op de 2de verdieping (lift aanwezig) van een recent gebouw (2009) en beschikt over een inkomhal met gastentoilet, een lichtrijke woonkamer met eetplaats en ingerichte open keuken (incl. koelkast, vaatwas), een berging/wasplaats, 2 slaapkamers en een badkamer (douche-in-bad, lavabomeubel). Vooraan is er een leuk en zonnig terras terug te vinden.
Bij dit appartement hoort tevens een kelderberging en een autostaanplaats in de ondergrondse parking (inclusief in de vraagprijs).
Het appartement is voorzien van o.a. hoogrendementsbeglazing, CV op aardgas, videofoon, gunstig EPC (A-label), ...
Goed gelegen te Denderleeuw, op wandelafstand van station, winkels en scholen! Voor meer info en/of een bezoek, contacteer ons via tijl@immotijl.be of 0477 44 86 11.
In detail
Financieel
- prijs
- € 259.000
- beschikbaarheid
- Vanaf akte
- onder btw stelsel
- nee
- opbrengsteigendom
- nee
Ligging
- ligging
- Stadskern
- omgeving school
- ja
- omgeving openbaar vervoer
- ja
- omgeving winkels
- ja
- omgeving autosnelweg
- ja
- omgeving sportcentrum
- ja
Comfort
- videofoon
- ja
- lift
- ja
- aansluiting riolering
- ja
- aansluiting gas
- ja
- aansluiting water
- ja
Gebouw
- bewoonbare opp.
- 88,00 m²
- constructie
- Gesloten
- bouwjaar
- 2009
- verdieping
- 2
Energie
- epc
- 92 kWh/m²
- epc unieke code
- 0003052574-RES-1
- epc klasse
- A
- dubbel glas
- ja
- verwarming
- Gas
- type verwarming
- Individueel
Technieken
- elektriciteit
- ja
- telefoonbekabeling
- ja
Indeling
- kelder
- ja
- slaapkamers
- 2
- slaapkamer 1
- 12 m²
- slaapkamer 2
- 10 m²
- badkamers
- 1
- badkamer
- 4 m², type: Douche in bad
- toiletten
- 1
- terras
- ja
- woonkamer
- 15 m²
- keuken
- 14 m², Geïnstalleerd
Stedenbouwkundige informatie & ruimtelijke ordening
- bestemming
- Woongebied
- bouwvergunning
- ja
- verkavelingsvergunning
- nee
- voorkooprecht
- nee
- vonnissen
- nee
- overstromingsgevoeliggebied
- Niet gelegen in een overstromingsgevoelig gebied
- g-score
- A
- p-score
- A
- kadaster sectie
- A
- kadaster nummer
- 657 X
















