- 4
- 202 m²
Appartement met 4 slaapkamers in centrum Denderleeuw!
Dit ruime en lichtrijke appartement vraagt om de nodige opfrissing en beschikt over een aparte inkom.
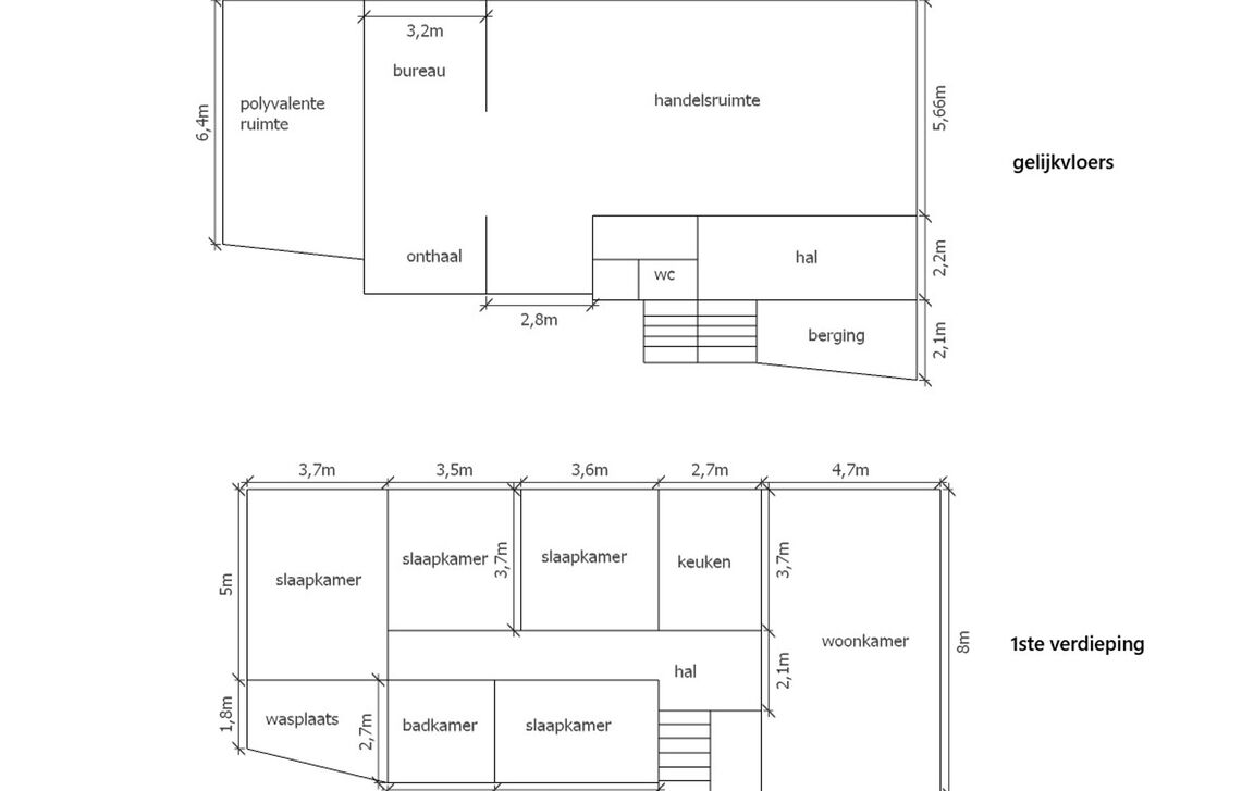
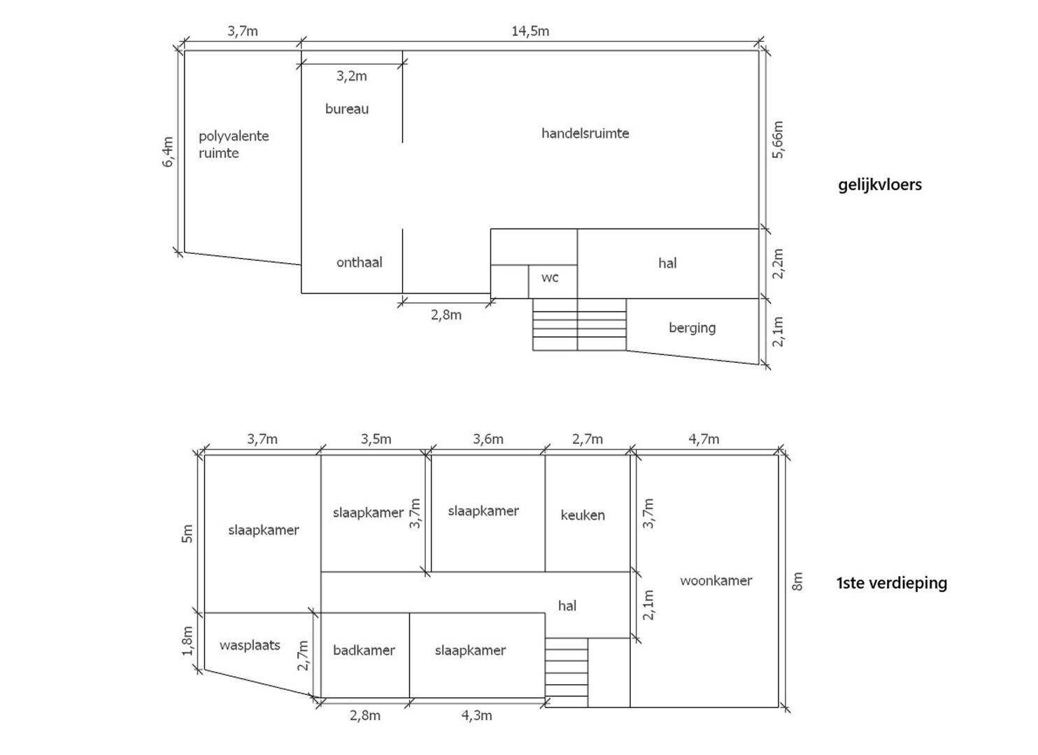
Dankzij de grote raampartijen geniet het van een overvloed aan natuurlijk lichtinval. Het appartement omvat een woonkamer met eetplaats, vier volwaardige slaapkamers, een ruime keuken, badkamer (douche in bad, lavabo en toilet) en een berging/wasplaats die aansluit op de badkamer. Vanuit de woonkamer is er toegang tot een westgericht terras.
Het appartement is uitstekend gelegen, op wandelafstand van het station van Denderleeuw, met bovendien vlotte verbindingen naar de E40 (richting Brussel–Gent). Winkels, scholen en andere voorzieningen bevinden zich eveneens op wandelafstand, wat het appartement bijzonder interessant maakt voor gezinnen.
Het gebouw is deels voorzien van dubbele beglazing. Het appartement beschikt over centrale verwarming op aardgas en heeft een EPC van 349 kWh/m²/jaar (label D). Bovendien werd het dak volledig vernieuwd.
Voor meer informatie of een bezoek, contacteer Jonas via jonas@immotijl.be of 0477 17 44 20.
In detail
Financieel
- prijs
- € 199.000
- beschikbaarheid
- Vanaf akte
- onder btw stelsel
- nee
- opbrengsteigendom
- nee
Ligging
- ligging
- Nabij station
- omgeving school
- ja
- omgeving openbaar vervoer
- ja
- omgeving winkels
- ja
- omgeving autosnelweg
- ja
- omgeving sportcentrum
- ja
Comfort
- aansluiting riolering
- ja
- aansluiting gas
- ja
- aansluiting water
- ja
Gebouw
- bewoonbare opp.
- 202,00 m²
- verdieping
- 1
- verdieping(en)
- 1
Energie
- epc
- 349 kWh/m²
- epc unieke code
- 3603084-RES-1
- epc klasse
- D
- dubbel glas
- ja
- verwarming
- Gas
- type verwarming
- Individueel
Technieken
- elektriciteit
- ja
- telefoonbekabeling
- ja
Indeling
- woonkamer
- 37 m²
- keuken
- 9 m², Gedeeltelijk geïnstalleerd
- slaapkamers
- 4
- slaapkamer 1
- 11 m²
- slaapkamer 2
- 13 m²
- slaapkamer 3
- 18 m²
- slaapkamer 4
- 13 m²
- badkamers
- 1
- badkamer
- 7 m², type: Ligbad
- toiletten
- 1
- terras
- ja
Downloads
Stedenbouwkundige informatie & ruimtelijke ordening
- bestemming
- Woongebied
- bouwvergunning
- ja
- verkavelingsvergunning
- nee
- voorkooprecht
- nee
- vonnissen
- nee
- g-score
- B
- p-score
- B
- bodemattest
- ja











