Nieuw
Appartement
Margaretha van Oostenrijkplein 9/bus 16 9/16, 1083 Ganshoren
€ 259.000
  • 2
  • 88 m²

Appartement met twee slaapkamers en ruim terras!

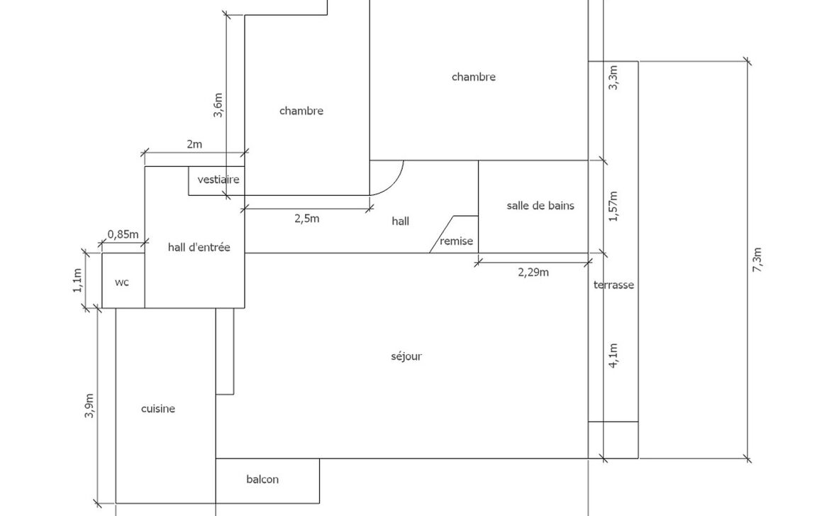
Dit appartement bevindt zich op de tweede verdieping van een gebouw met lift en omvat een inkomhal met apart toilet en vestiaire, een ruime woonkamer met bureauhoek, een vernieuwde keuken uitgerust met hoogwaardige toestellen, een extra bergruimte in de hal, twee volwaardige slaapkamers en een badkamer met douche-in-bad en lavabomeubel.

Aansluitend aan de woonkamer en één van de slaapkamers bevindt zich een aangenaam groot terras. Daarnaast beschikt het appartement nog over een tweede terras en een balkon aan de bureauhoek, wat zorgt voor extra buitenruimte. Een privé-kelderberging is inbegrepen.


Het appartement is voorzien van verwarming op stookolie en beschikt over dubbele beglazing met rolluiken.


De ligging biedt een aangename woonomgeving met winkels, eetgelegenheden en het nabijgelegen winkelcentrum op wandelafstand. Dankzij de vlotte verbindingen met het openbaar vervoer is Brussel-Centrum en andere gemeentes vlot bereikbaar. Bovendien zorgt de nabijheid van de E40 voor een uitstekende verbinding in alle richtingen. Verschillende parken en groene zones in de omgeving dragen bij aan een aangename leefomgeving.


Voor meer info en/of een bezoek, contacteer Jonas via jonas@immotijl.be of 0477 17 44 20.

In detail

Financieel

prijs
€ 259.000
beschikbaarheid
Af te spreken met eigenaar
onder btw stelsel
nee
opbrengsteigendom
nee

Ligging

ligging
Stadskern
omgeving school
ja
omgeving openbaar vervoer
ja
omgeving winkels
ja
omgeving autosnelweg
ja
omgeving sportcentrum
ja

Comfort

videofoon
ja
lift
ja
aansluiting riolering
ja
aansluiting water
ja

Gebouw

bewoonbare opp.
88,00 m²

Energie

dubbel glas
ja
verwarming
Stookolie
type verwarming
Collectief

Technieken

elektriciteit
ja
telefoonbekabeling
ja

Indeling

kelder
ja
slaapkamers
2
slaapkamer 1
9 m²
slaapkamer 2
12 m²
badkamers
1
badkamer
3 m², type: Douche in bad
toiletten
1
terras
ja
woonkamer
29 m²
keuken
ja
Uw makelaar
Afbeelding
Jonas Nelis
0477 17 44 20