- 2
- 88 m²
Appartement met twee slaapkamers en ruim terras!
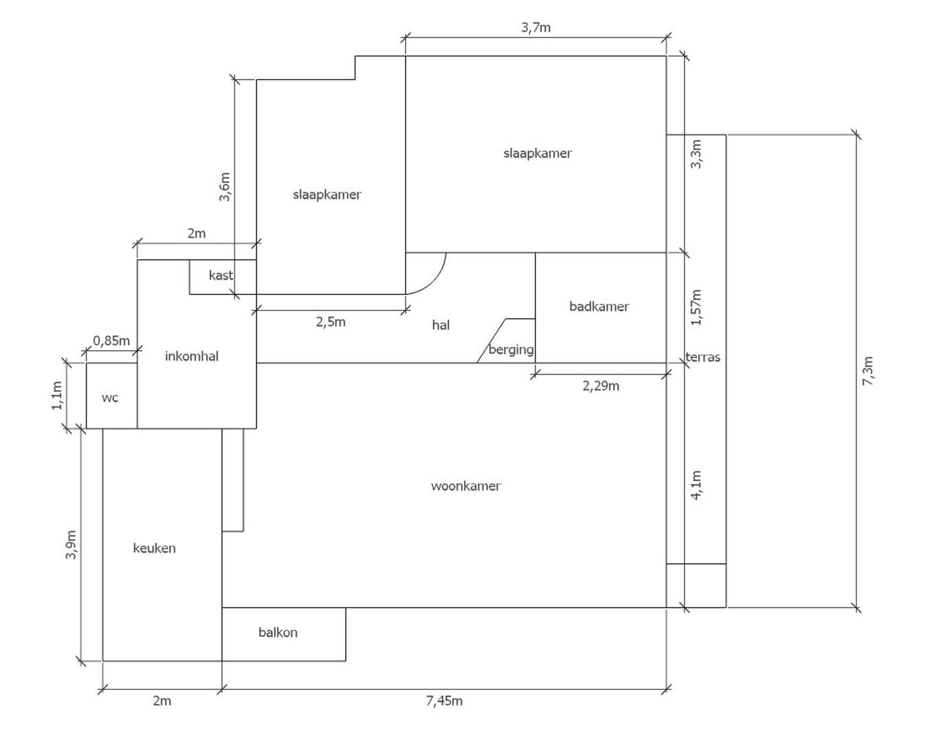
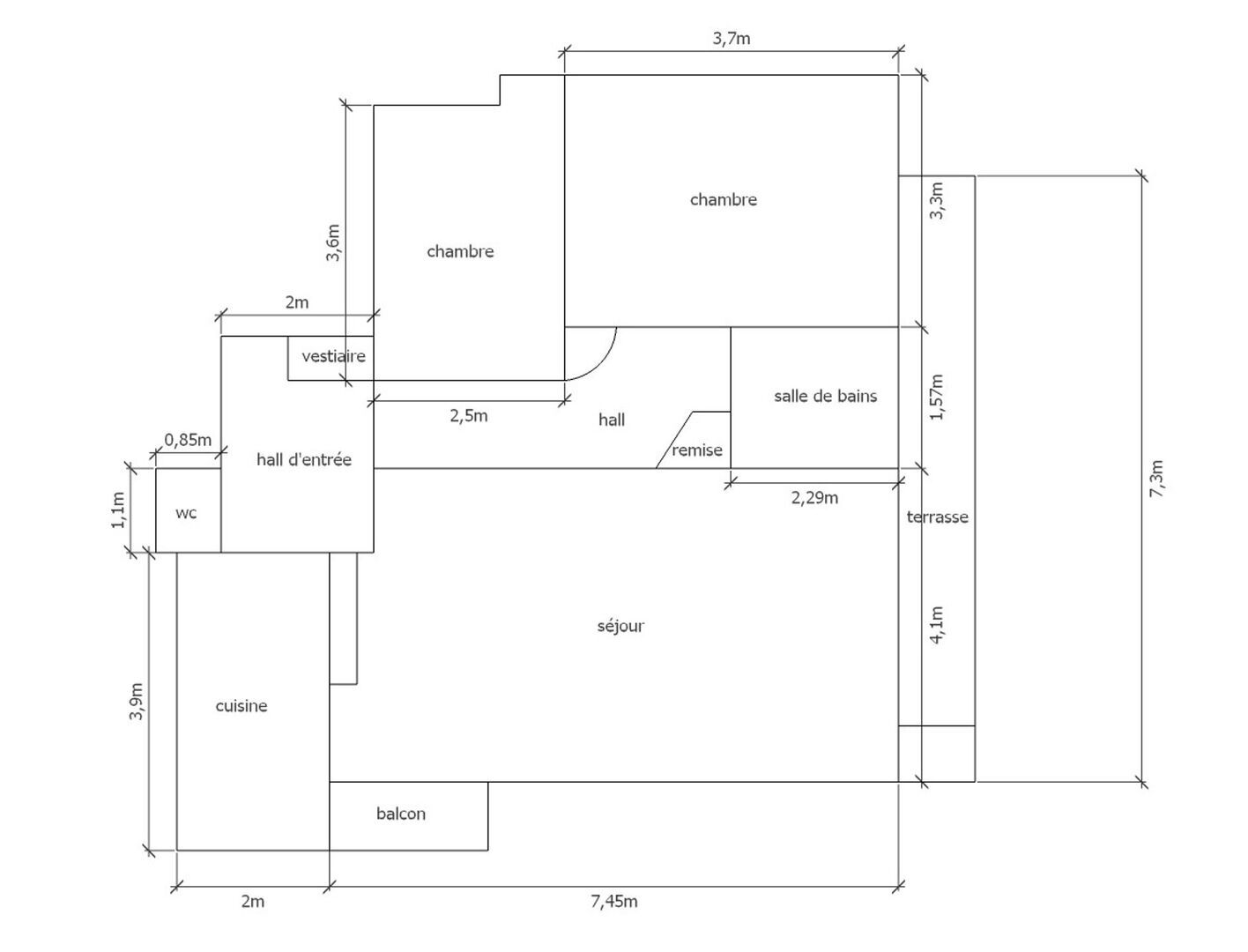
Dit appartement bevindt zich op de tweede verdieping van een gebouw met lift en omvat een inkomhal met apart toilet en vestiaire, een ruime woonkamer met bureauhoek, een vernieuwde keuken uitgerust met hoogwaardige toestellen, een extra bergruimte in de hal, twee volwaardige slaapkamers en een badkamer met douche-in-bad en lavabomeubel.
Aansluitend aan de woonkamer en één van de slaapkamers bevindt zich een aangenaam groot terras. Daarnaast beschikt het appartement nog over een tweede terras en een balkon aan de bureauhoek, wat zorgt voor extra buitenruimte. Een privé-kelderberging is inbegrepen.
Het appartement is voorzien van verwarming op stookolie en beschikt over dubbele beglazing met rolluiken.
De ligging biedt een aangename woonomgeving met winkels, eetgelegenheden en het nabijgelegen winkelcentrum op wandelafstand. Dankzij de vlotte verbindingen met het openbaar vervoer is Brussel-Centrum en andere gemeentes vlot bereikbaar. Bovendien zorgt de nabijheid van de E40 voor een uitstekende verbinding in alle richtingen. Verschillende parken en groene zones in de omgeving dragen bij aan een aangename leefomgeving.
Voor meer info en/of een bezoek, contacteer Jonas via jonas@immotijl.be of 0477 17 44 20.
In detail
Financieel
- prijs
- € 245.000
- beschikbaarheid
- Af te spreken met eigenaar
- onder btw stelsel
- nee
- opbrengsteigendom
- nee
Ligging
- ligging
- Stadskern
- omgeving school
- ja
- omgeving openbaar vervoer
- ja
- omgeving winkels
- ja
- omgeving autosnelweg
- ja
- omgeving sportcentrum
- ja
Comfort
- videofoon
- ja
- lift
- ja
- aansluiting riolering
- ja
- aansluiting water
- ja
Gebouw
- bewoonbare opp.
- 88,00 m²
- verdieping
- 2
Energie
- epc
- 247 kWh/m²
- epc unieke code
- 730626-01-2
- epc klasse
- E
- dubbel glas
- ja
- verwarming
- Stookolie
- type verwarming
- Collectief
Technieken
- elektriciteit
- ja
- telefoonbekabeling
- ja
Indeling
- kelder
- ja
- slaapkamers
- 2
- slaapkamer 1
- 9 m²
- slaapkamer 2
- 12 m²
- badkamers
- 1
- badkamer
- 3 m², type: Douche in bad
- toiletten
- 1
- terras
- ja
- woonkamer
- 29 m²
- keuken
- ja
Downloads
Stedenbouwkundige informatie & ruimtelijke ordening
- bouwvergunning
- ja
- verkavelingsvergunning
- nee
- voorkooprecht
- nee
- vonnissen
- nee














