Nieuw
Appartement
Hertstraat 62, 9473 Welle
€ 199.000
- 2
- 80 m²
Gezellig appartement met 2 slaapkamers en terras te Welle!
Dit lichtrijke appartement op de eerste verdieping van een kleinschalig gebouw is de ideale woonst voor wie op zoek is naar comfort, functionaliteit en een centrale ligging.
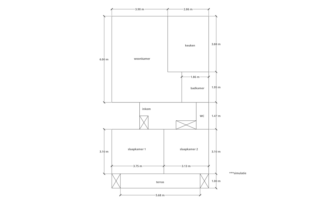
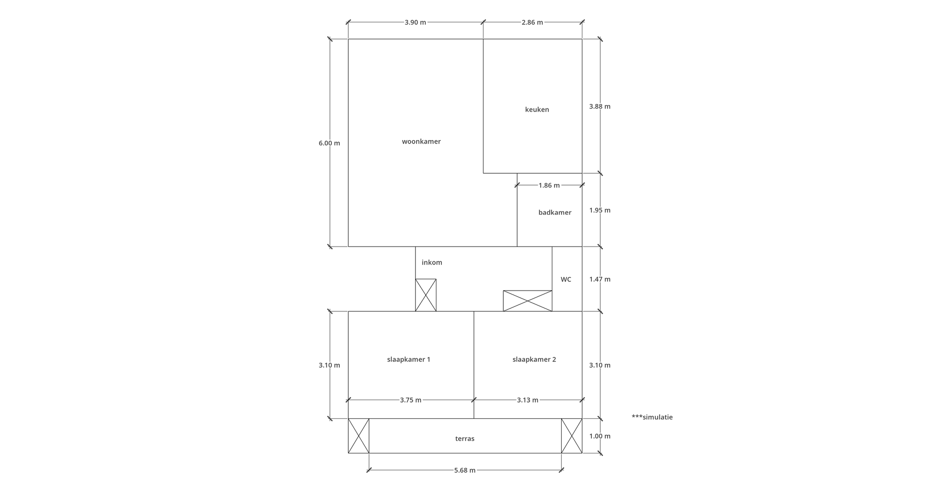
De indeling biedt een uitnodigende inkomhal, een ruime en zonnige leefruimte, een praktische keuken, twee volwaardige slaapkamers, een badkamer met douche en lavabomeubel, en een afzonderlijk toilet. Aansluitend bevindt zich een aangenaam terras, voorzien van twee ingemaakte kasten – perfect voor extra bergruimte. Het terras is rechtstreeks toegankelijk vanuit beide slaapkamers, wat zorgt voor extra licht en buitengevoel.
Neem alvast een kijkje binnenin via onze virtuele rondleiding!
Geïnteresseerd? Contacteer ons voor meer info of een bezoek via niels@immotijl.be of op het nummer 0474 12 56 41.
De indeling biedt een uitnodigende inkomhal, een ruime en zonnige leefruimte, een praktische keuken, twee volwaardige slaapkamers, een badkamer met douche en lavabomeubel, en een afzonderlijk toilet. Aansluitend bevindt zich een aangenaam terras, voorzien van twee ingemaakte kasten – perfect voor extra bergruimte. Het terras is rechtstreeks toegankelijk vanuit beide slaapkamers, wat zorgt voor extra licht en buitengevoel.
Neem alvast een kijkje binnenin via onze virtuele rondleiding!
Geïnteresseerd? Contacteer ons voor meer info of een bezoek via niels@immotijl.be of op het nummer 0474 12 56 41.
In detail
Financieel
- prijs
- € 199.000
- beschikbaarheid
- Vanaf akte
- onder btw stelsel
- nee
- opbrengsteigendom
- nee
Ligging
- ligging
- Centraal
- omgeving school
- ja
- omgeving openbaar vervoer
- ja
- omgeving winkels
- ja
- omgeving autosnelweg
- ja
- omgeving sportcentrum
- ja
Comfort
- intercom
- ja
- lift
- ja
- aansluiting riolering
- ja
- aansluiting water
- ja
Gebouw
- bewoonbare opp.
- 80,00 m²
- constructie
- Gesloten
- bouwjaar
- 1976
- verdieping
- 1
- verdieping(en)
- 2
- oriëntatie voorgevel
- West
Terrein
- tuin
- nee
Energie
- epc
- 254 kWh/m²
- epc unieke code
- 20250625-0003633916-RES-2
- epc klasse
- C
- dubbel glas
- ja
- verwarming
- Elektrische accumulatoren
- type verwarming
- Individueel
Technieken
- elektriciteit
- ja
- telefoonbekabeling
- ja
Garages / parking
- garages / parking
- nee
- binnenparking
- nee
- buitenparking
- nee
Indeling
- woonkamer
- 26 m²
- keuken
- 11 m², VS geïnstalleerd
- slaapkamers
- 2
- slaapkamer 1
- 12 m²
- slaapkamer 2
- 10 m²
- badkamers
- 1
- badkamer
- 4 m², type: Douche
- toiletten
- 1
- terras
- ja
- terras 1
- 5,50 m²
Stedenbouwkundige informatie & ruimtelijke ordening
- bouwvergunning
- ja
- verkavelingsvergunning
- nee
- voorkooprecht
- nee
- vonnissen
- nee
- g-score
- A
- p-score
- A



















