- 5
- 427 m²
- 2.327 m²
- garages
Unieke investeringseigendom in hartje Hofstade-Aalst!
Unieke investeringseigendom in hartje Hofstade-Aalst!
Dit appartementsgebouw (in eindafwerking) met 3 woongelegenheden, elk met apart adres en huisnummer, biedt een uitstekende kans voor investeerders en particulieren.
De appartementen zijn volledig nieuw, inzake inrichting, o.a. ingerichte keuken met toestellen, nieuwe elektriciteits- en waterleidingen. Volledig in nieuwstaat en nog niet in gebruik of verhuur.
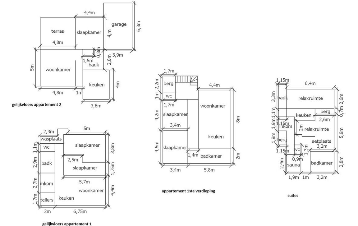
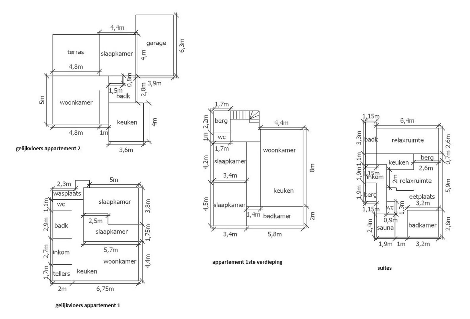
Op het gelijkvloers vindt men 2 units:
Het eerste appartement is als volgt ingedeeld: een inkomhal, een ruime woonkamer met open keuken, 2 slaapkamers, een badkamer (inloopdouche en wastafel), een apart toilet en berging.
Het tweede appartement is voorzien van een woonkamer met zicht op ruim terras, een met moderne ingerichte ruime keuken, een badkamer (inloopdouche, wastafel), een slaapkamer, een apart toilet en een berging. Vanuit de keuken, heeft men toegang tot een ruime kelder. Dit appartement beschikt over een eigen garage.
Het derde appartement bevindt zich op de eerste verdieping van het hoofdgebouw. Dit appartement heeft twee slaapkamers, een woonkamer met open keuken en een badkamer met inloopdouche, bad en dubbele wastafel. Er is ook een apart toilet en een berging. Dit appartement beschikt ook over een extra zolderruimte (met valluik).
Achteraan bevindt zich nog een extra tuin, met bomen, met oppervlakte van ongeveer 700 m2.
Er zijn tevens parkeerplaatsen voorzien voor het hoofdgebouw.
Goedgekeurde plannen en EPC ter inzage.
Gelegen nabij centrum Hofstade met winkels en scholen op wandelafstand en kortbij fietspad richting Aalst.
Voor meer info en/of een bezoek, contacteer ons via jonas@immotijl.be of 0477 17 44 20.
In detail
Financieel
- prijs
- € 575.000
- beschikbaarheid
- Vanaf akte
- onder btw stelsel
- nee
- kadastraal inkomen
- € 2.193
- opbrengsteigendom
- nee
Ligging
- ligging
- Woonkern
- omgeving school
- ja
- omgeving openbaar vervoer
- ja
- omgeving winkels
- ja
- omgeving autosnelweg
- ja
Comfort
- aansluiting riolering
- ja
- aansluiting water
- ja
- kabeltelevisie
- ja
Gebouw
- bewoonbare opp.
- 427,00 m²
- constructie
- Open
- bouwjaar
- 1977
- verdieping(en)
- 1
Terrein
- perceel opp.
- 2.327,00 m²
- tuin
- ja
Energie
- dubbel glas
- ja
- verwarming
- Stookolie
- type verwarming
- Individueel
Technieken
- elektriciteit
- ja
- telefoonbekabeling
- ja
Garages / parking
- garages / parking
- 1
- binnenparking
- 1
- buitenparking
- 5
Indeling
- kelder
- ja
- slaapkamers
- 5
- slaapkamer 1
- 17 m²
- slaapkamer 2
- 14 m²
- slaapkamer 3
- 15 m²
- slaapkamer 4
- 16 m²
- terras
- ja
- bureau
- ja
- woonkamer
- 35 m²
- keuken
- 11 m², Volledig geïnstalleerd
Stedenbouwkundige informatie & ruimtelijke ordening
- overstromingsgevoeliggebied
- Niet gelegen in een overstromingsgevoelig gebied
- g-score
- A
- p-score
- A
- kadaster sectie
- A
- kadaster nummer
- 1057B
- kadaster opp.
- 2327
















