Nieuw
Appartementsgebouw
Katoenstraat 2, 9300 Aalst
€ 270.000
- 5
- 132 m²
Opbrengsteigendom met 5 studio's!
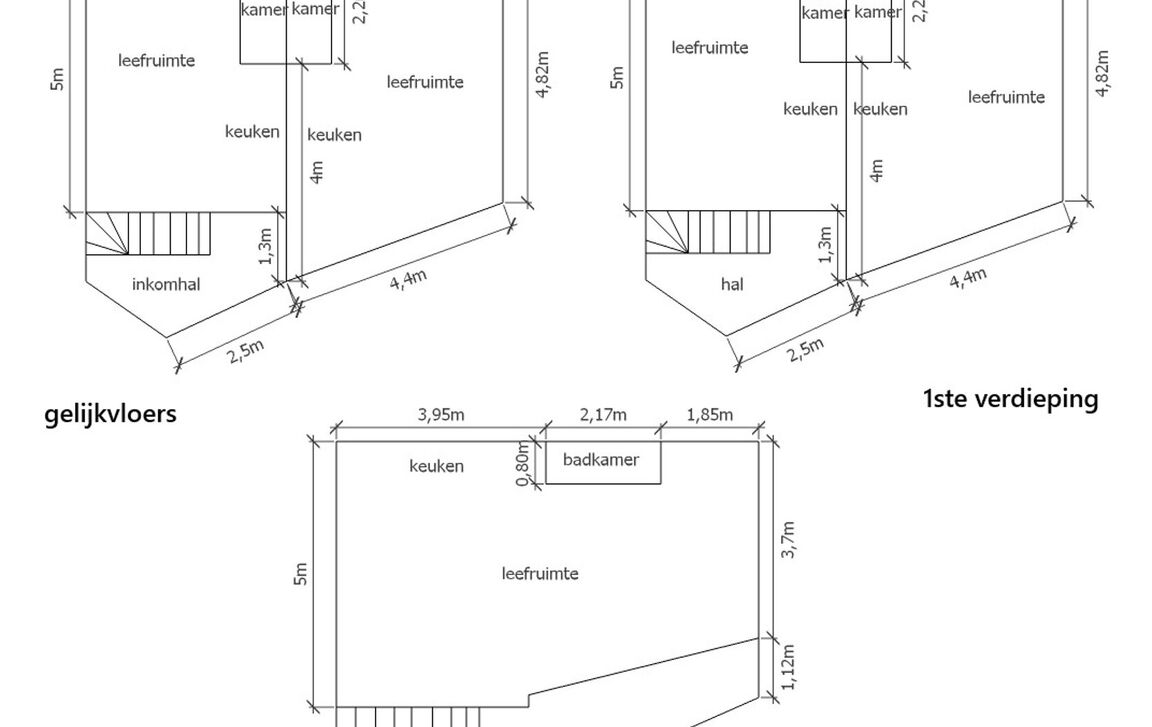
Dit gebouw bestaat uit een gezamenlijke inkomhal en 5 studio's (vergund).
Elke studio beschikt over een eigen keuken, badkamer en woon-/slaapgedeelte.
Het gebouw is voorzien van dubbele beglazing/hoogrendementsbeglazing, verwarming op gas. Men beschikt over volgende EPC-scores: 306 kWh/m², 356 kWh/m², 225 kWh/m² en 241kWh/m², 466 kWh/m² (renovatieverplichting).
Achteraan is nog een handige berging (ideaal voor plaatsen van fietsen e.d.) en een klein terrasje aanwezig.
Gunstig gelegen in een rustige, goed bereikbare buurt. Op korte afstand bevinden zich het stadscentrum, winkels, scholen en openbaar vervoer. Ideaal als investering! Voor meer info en/of een bezoek, contacteer Tijl via tijl@immotijl.be of 0477 44 86 11.
In detail
Financieel
- prijs
- € 270.000
- beschikbaarheid
- Vanaf akte
- onder btw stelsel
- nee
- opbrengsteigendom
- ja
Ligging
- ligging
- Stadsrand
- omgeving school
- ja
- omgeving openbaar vervoer
- ja
- omgeving winkels
- ja
- omgeving autosnelweg
- ja
- omgeving sportcentrum
- ja
Comfort
- intercom
- ja
- aansluiting riolering
- ja
- aansluiting gas
- ja
- aansluiting water
- ja
- kabeltelevisie
- ja
Gebouw
- bewoonbare opp.
- 132,00 m²
- constructie
- Gesloten
- verdieping(en)
- 2
Energie
- dubbel glas
- ja
- verwarming
- Gas
Technieken
- elektriciteit
- ja
- telefoonbekabeling
- ja
Indeling
- keuken
- ja
- slaapkamers
- 5
- slaapkamer 1
- 15 m²
- slaapkamer 2
- 15 m²
- slaapkamer 3
- 16 m²
- slaapkamer 4
- 16 m²
- slaapkamer 5
- 20 m²
- terras
- ja
Certificaten
- asbestinventarisattest
- Ja
Downloads
Stedenbouwkundige informatie & ruimtelijke ordening
- bestemming
- Woongebied
- bouwvergunning
- nee
- verkavelingsvergunning
- nee
- voorkooprecht
- nee
- vonnissen
- nee
- g-score
- B
- p-score
- B
- kadaster sectie
- C
- kadaster nummer
- 962 X6
- bodemattest
- ja














