- 5
- 347 m²
- 471 m²
Appartementsgebouw in hartje Denderleeuw!
Dit veelzijdig appartementsgebouw, gunstig gelegen in het centrum van Denderleeuw, biedt interessante mogelijkheden voor investeerders of ondernemers. Het gebouw is vergund als kantoor en 2 appartementen.
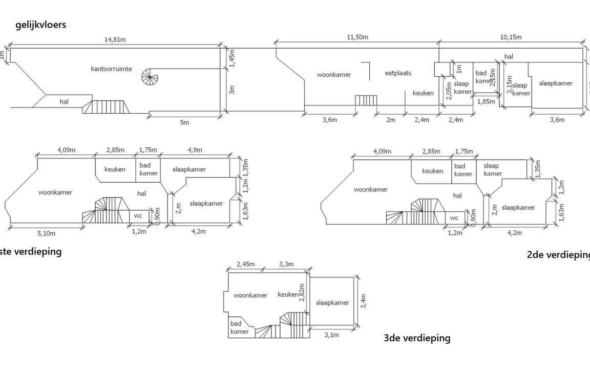
Het gelijkvloers is momenteel ingericht als kantoorruimte aan de voorzijde, met daarachter een appartement. Op de eerste en tweede verdieping bevinden zich elk een appartement, elk met een eigen terras, woonkamer, keuken, badkamer en 2 kamers. De appartementen zijn momenteel verhuurd, wat het gebouw ook aantrekkelijk maakt als opbrengsteigendom.
Het pand is grotendeels uitgerust met dubbele beglazing en verwarming op elektriciteit. De energieprestaties zijn als volgt: 242 kWh/m²/jaar, 717 kWh/m²/jaar, 274 kWh/m²/jaar en label E voor het gelijkvloers. Bovendien beschikt het gebouw over een handige kelder (hoort bij de kantoorruimte).
De ligging is uitstekend: vlakbij het station van Denderleeuw en nabij winkels, scholen en andere voorzieningen. Dankzij de vlotte verbinding met de E40 richting Gent en Brussel is het pand bovendien zeer goed bereikbaar.
Voor meer informatie of het inplannen van een bezoek kunt u contact opnemen met Tijl via 0477 44 86 11.
In detail
Financieel
- prijs
- € 695.000
- beschikbaarheid
- Mits inachtneming huurders
- onder btw stelsel
- nee
- kadastraal inkomen
- € 3.899
- opbrengsteigendom
- ja
Ligging
- ligging
- Nabij station
- omgeving school
- ja
- omgeving openbaar vervoer
- ja
- omgeving winkels
- ja
- omgeving autosnelweg
- ja
- omgeving sportcentrum
- ja
Comfort
- aansluiting riolering
- ja
- aansluiting water
- ja
- kabeltelevisie
- ja
Gebouw
- bewoonbare opp.
- 347,00 m²
- constructie
- Gesloten
- bouwjaar
- 1990
Terrein
- perceel opp.
- 471,00 m²
Energie
- epc
- 717 kWh/m²
- epc unieke code
- 3323030-RES-1
- epc klasse
- F
- dubbel glas
- ja
- elektriciteitskeuring
- ja, niet conform
- verwarming
- Elektrisch
Technieken
- elektriciteit
- ja
- telefoonbekabeling
- ja
Indeling
- kelder
- ja
- slaapkamers
- 5
- slaapkamer 1
- 12 m²
- slaapkamer 2
- 12 m²
- slaapkamer 3
- 12 m²
- slaapkamer 4
- 11 m²
- terras
- ja
- keuken
- ja
Certificaten
- asbestinventarisattest
- Ja
Stedenbouwkundige informatie & ruimtelijke ordening
- bestemming
- Woongebied
- bouwvergunning
- nee
- verkavelingsvergunning
- nee
- voorkooprecht
- nee
- vonnissen
- nee
- g-score
- B
- p-score
- B
- kadaster sectie
- A
- kadaster nummer
- 1104 W
- kadaster opp.
- 471
- renovatieverplichting
- JaDit pand kan onderheven zijn aan de renovatieverplichting die door de vlaamse overheid word opgelegd voor residentiele gebouwen. Voor meer informatie kan u de website van het Vlaams Energie- en Klimaatagentschap contacteren: https://www.vlaanderen.be/een-woning-kopen/renovatieverplichting-voor-residentiele-gebouwen
- bodemattest
- ja



