- 6
- 850 m²
Veelzijdig gebouw in Waver!
Dit veelzijdige gebouw biedt een zee aan ruimte en tal van mogelijkheden. Het pand is gelegen op een gunstige locatie in Waver, met een uitstekende bereikbaarheid.
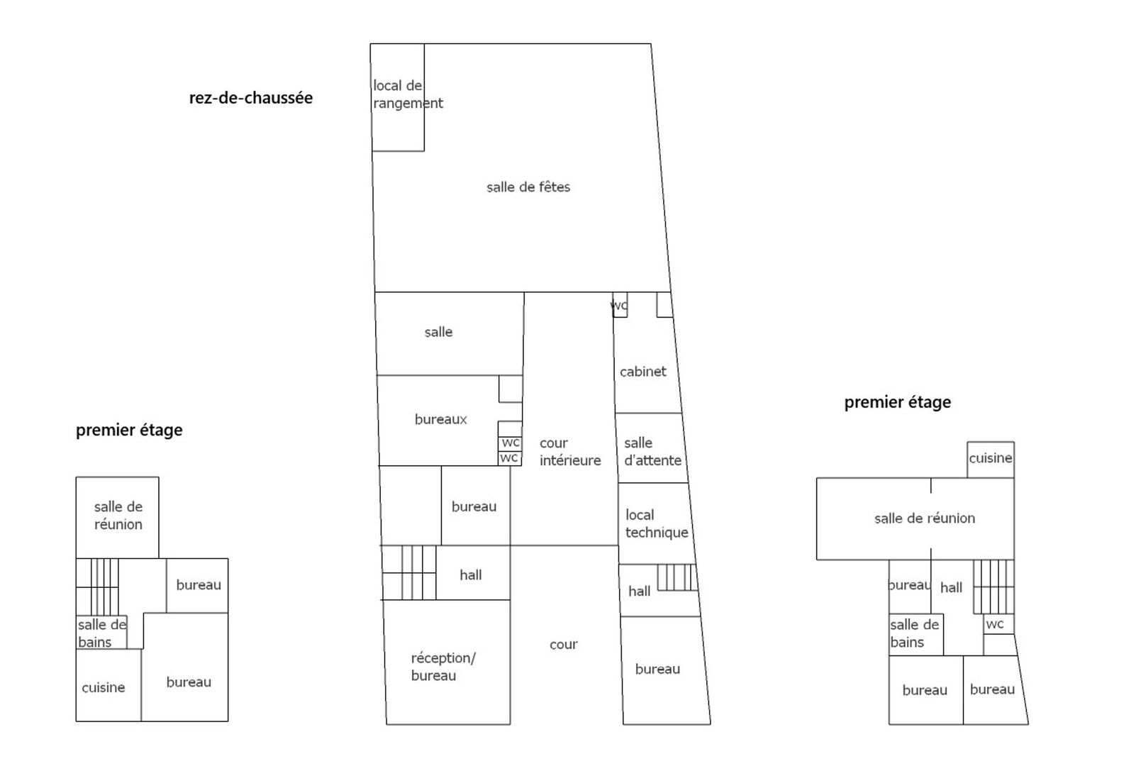
Op het gelijkvloers bevinden zich verschillende bureaus en polyvalente zalen, evenals sanitaire voorzieningen en een praktijk met wachtzaal. Via de binnenkoer heeft u vlotte toegang tot de feestzaal/polyvalente ruimte achteraan het gebouw.
Op de eerste verdieping zijn er meerdere bureauruimtes, vergaderzalen, twee keukens en twee badkamers, en is er directe toegang tot het terras.
Voor kopers met een langetermijnvisie biedt het pand bovendien mogelijk ontwikkelingspotentieel, zoals de creatie van appartementen. Uiteraard dient elke functie- of bestemmingswijziging voorafgaandelijk afgetoetst te worden aan de geldende stedenbouwkundige voorschriften en vergunningsprocedures.
De opgegeven afmetingen zijn louter indicatief en geven derhalve slechts een geschatte oppervlakte weer.
Voor meer info en/of een bezoek, contacteer ons via steven@immotijl.be of 0485 52 55 29.
In detail
Financieel
- prijs
- € 790.000
- beschikbaarheid
- Af te spreken met eigenaar
- onder btw stelsel
- nee
- kadastraal inkomen
- € 6.355
- opbrengsteigendom
- nee
Ligging
- ligging
- Centraal
- omgeving school
- ja
- omgeving openbaar vervoer
- ja
- omgeving winkels
- ja
- omgeving autosnelweg
- ja
- omgeving sportcentrum
- ja
Comfort
- aansluiting riolering
- ja
- aansluiting gas
- ja
- aansluiting water
- ja
- kabeltelevisie
- ja
Gebouw
- bewoonbare opp.
- 850,00 m²
- constructie
- Gesloten
Energie
- dubbel glas
- ja
- verwarming
- Gas
Technieken
- elektriciteit
- ja
- telefoonbekabeling
- ja
Indeling
- bureau
- ja
- keuken
- ja
- terras
- ja
Stedenbouwkundige informatie & ruimtelijke ordening
- bestemming
- Woongebied
- bouwvergunning
- ja
- verkavelingsvergunning
- nee
- voorkooprecht
- nee
- vonnissen
- nee
- overstromingsgevoeliggebied
- Mogelijk overstromingsgevoelig gebied
- kadaster sectie
- G
- kadaster nummer
- 159B
- kadaster opp.
- 700




















