- 690 m²
Ruime bouwgrond voor open bebouwing te Wieze!
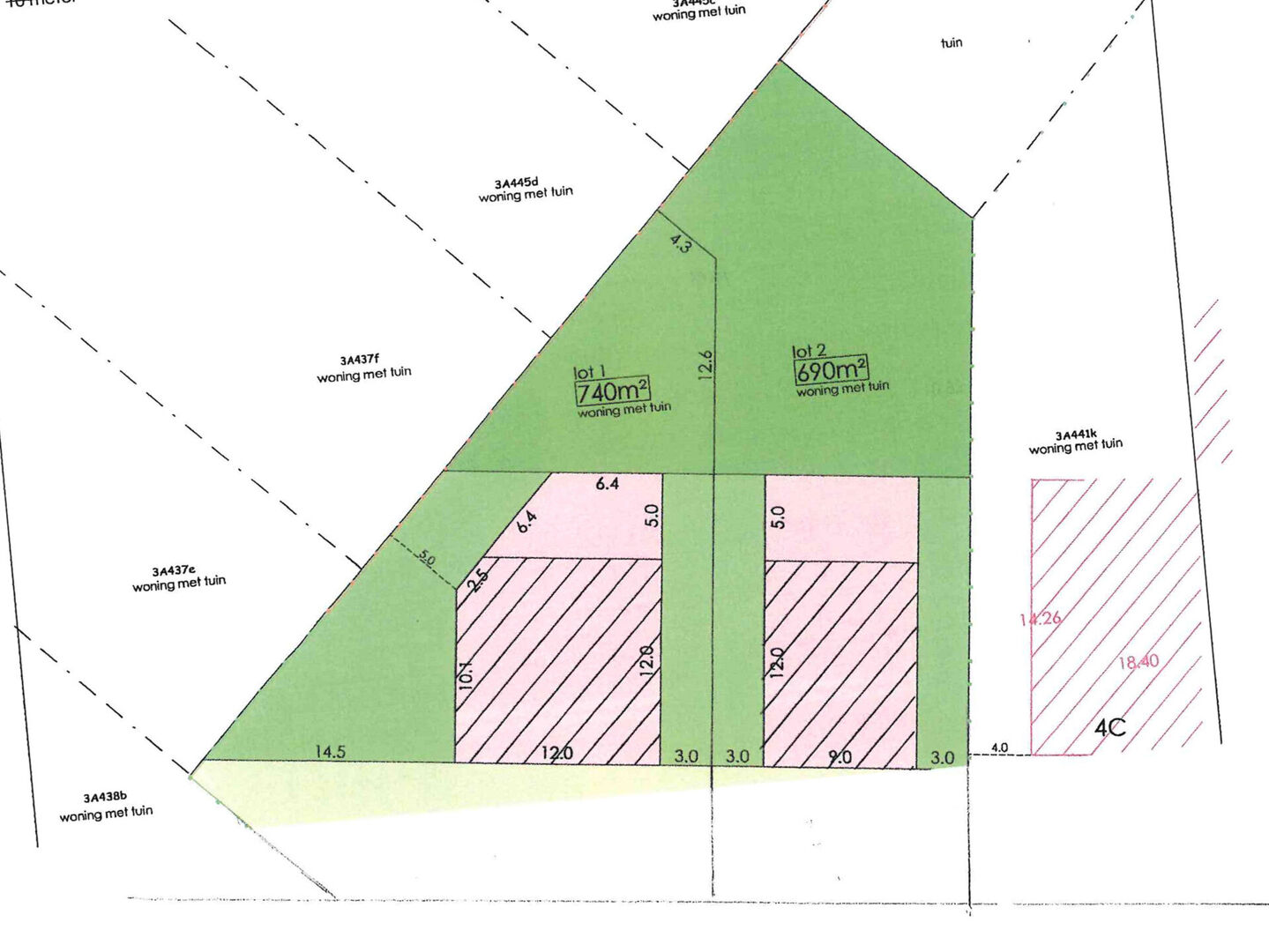
Dit mooi perceel van ongeveer 690 m² (zie plan en luchtfoto, lot 2), de straatbreedte bedraagt ongeveer 15 meter. Deze grond is gelegen in een goedgekeurde verkaveling en biedt een uitstekende kans voor het realiseren van een open bebouwing.
De maximale bouwdiepte bedraagt 17 meter op het gelijkvloers en 12 meter op de verdieping, gemeten vanaf de verplichte voorbouwlijn en rekening houdend met een zijdelingse bouwvrije strook van 3 meter (rechts) en 5 meter (links). Meer info omtrent de bouwmogelijkheden te verkrijgen op kantoor. Het naastgelegen perceel (lot 1) is eveneens beschikbaar!
Goed gelegen in een aangename en rustige omgeving, op een vlot bereikbare locatie nabij het dorpscentrum. Wenst u graag meer info? Neem gerust contact op met Tijl via tijl@immotijl.be of bel 0477 44 86 11.
In detail
Financieel
- prijs
- € 235.000
- beschikbaarheid
- Vanaf akte
- onder btw stelsel
- nee
- opbrengsteigendom
- nee
Ligging
- ligging
- Rustig
- omgeving school
- ja
- omgeving openbaar vervoer
- ja
- omgeving winkels
- ja
- omgeving autosnelweg
- ja
Terrein
- perceel opp.
- 690,00 m²
Downloads
Stedenbouwkundige informatie & ruimtelijke ordening
- bestemming
- Woongebied
- bouwvergunning
- nee
- verkavelingsvergunning
- ja
- voorkooprecht
- nee
- vonnissen
- nee
- p-score
- A
- kadaster opp.
- 690
- bodemattest
- ja




