- 139 m²
Commercieel gelijkvloers te centrum Denderleeuw!
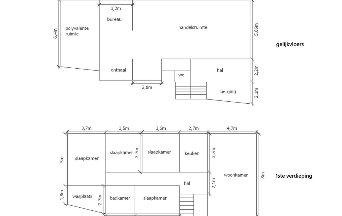
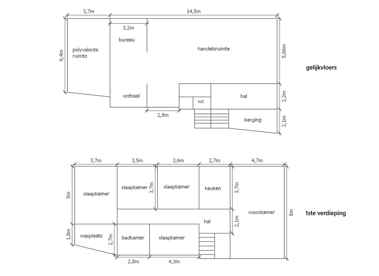
Op een uitstekend zichtbare locatie in het centrum van Denderleeuw, vlak naast het postkantoor en op wandelafstand van het station, bevindt zich dit commerciële gelijkvloers. Het pand is ideaal voor de uitbating van een dagwinkel of voor andere handels- of praktijkactiviteiten.
Het gebouw is asbestveilig en beschikt over een apart toilet.
Parkeren is vlot mogelijk in de onmiddellijke omgeving dankzij meerdere nabijgelegen parkings. Bovendien is een combinatie van wonen en werken perfect haalbaar: het appartement boven de handelsruimte is eveneens beschikbaar.
De ligging biedt een vlotte verbinding naar het op- en afrittencomplex richting Gent en Brussel, terwijl ook Liedekerke en Affligem zich op korte afstand bevinden.
Voor meer info en/of een bezoek ter plaatse, contacteer ons via jonas@immotijl.be of 0477/17 44 20.
In detail
Financieel
- prijs
- € 166.000
- beschikbaarheid
- Vanaf akte
- onder btw stelsel
- nee
- opbrengsteigendom
- nee
Ligging
- ligging
- Nabij station
- omgeving school
- ja
- omgeving openbaar vervoer
- ja
- omgeving winkels
- ja
- omgeving autosnelweg
- ja
- omgeving sportcentrum
- ja
Comfort
- aansluiting riolering
- ja
- aansluiting water
- ja
Gebouw
- bewoonbare opp.
- 139,00 m²
- constructie
- Open
- bouwjaar
- 1966
Energie
- epc unieke code
- 3598471-KNR-1
- epc klasse
- F
- verwarming
- Stookolie
- type verwarming
- Individueel
Technieken
- elektriciteit
- ja
- telefoonbekabeling
- ja
Indeling
- toiletten
- 1
Certificaten
- asbestinventarisattest
- Ja
Downloads
Stedenbouwkundige informatie & ruimtelijke ordening
- bestemming
- Woongebied
- bouwvergunning
- nee
- verkavelingsvergunning
- nee
- voorkooprecht
- nee
- vonnissen
- nee
- g-score
- B
- p-score
- B
- bodemattest
- ja






