Nieuw
Commerciële building
Avenue des Déportés 31-33, 1300 Limal
€ 790.000
  • 850 m²

Groot kantoorgebouw met polyvalente ruimtes in Waver!

Dit veelzijdig commercieel gebouw biedt een zee aan ruimte en tal van mogelijkheden. Het pand is gelegen op een gunstige locatie in Waver, met een uitstekende bereikbaarheid.

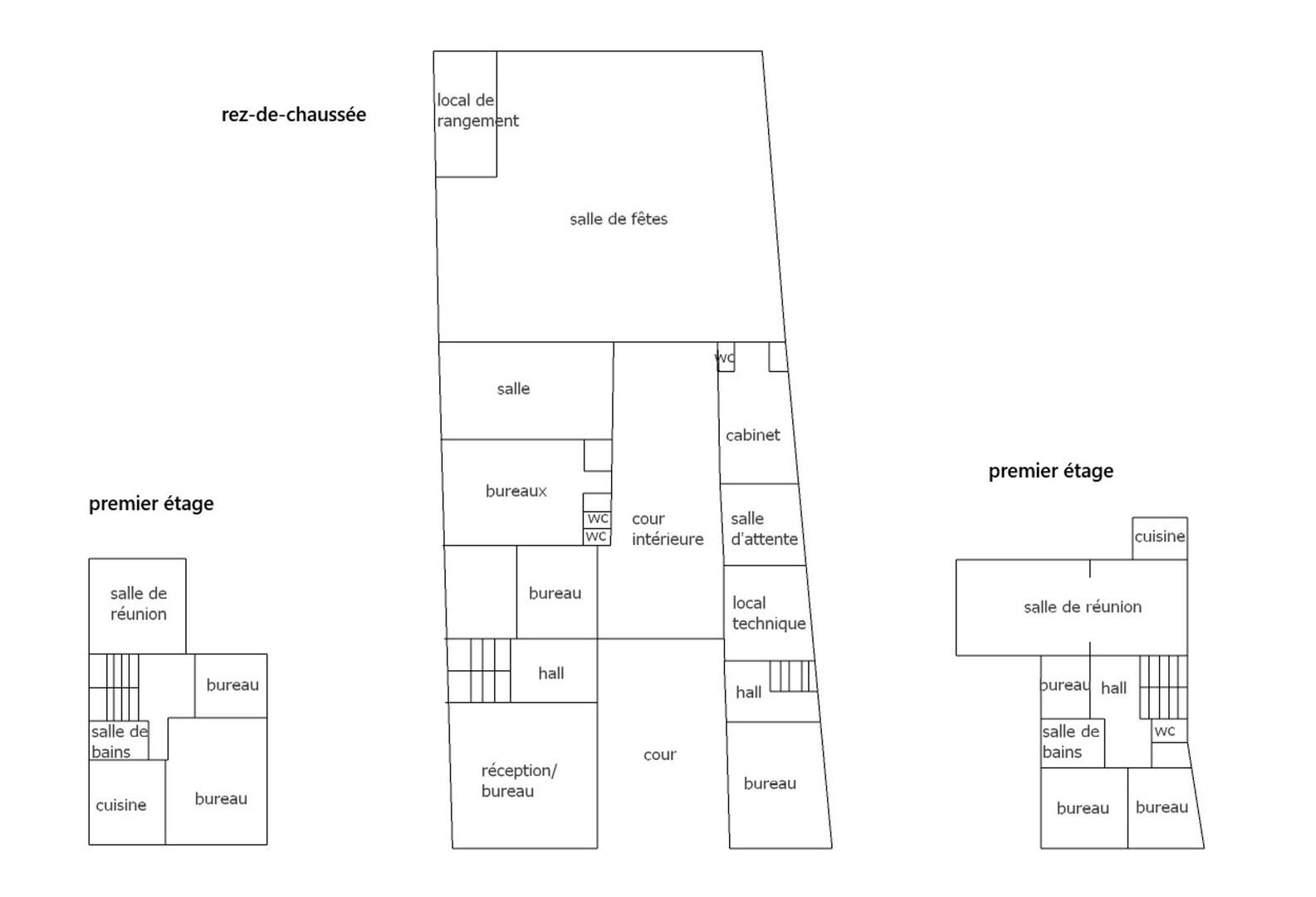
Op het gelijkvloers bevinden zich verschillende bureaus en polyvalente zalen, evenals sanitaire voorzieningen en een praktijk met wachtzaal. Via de binnenkoer heeft u vlotte toegang tot de feestzaal/polyvalente ruimte achteraan het gebouw.

Op de eerste verdieping zijn er meerdere bureauruimtes, vergaderzalen, twee keukens en twee badkamers, en is er directe toegang tot het terras.

Investeringsopportuniteit voor ondernemers, verenigingen die op zoek zijn naar ruimte en potentieel of projectontwikkelaars!

De opgegeven afmetingen zijn louter indicatief en geven derhalve slechts een geschatte oppervlakte weer. Voor meer info en/of een bezoek, contacteer ons via steven@immotijl.be of 0485 52 55 29.

In detail

Financieel

prijs
€ 790.000
beschikbaarheid
Af te spreken met eigenaar
onder btw stelsel
nee
kadastraal inkomen
€ 6.355
opbrengsteigendom
nee

Ligging

ligging
Centraal
omgeving school
ja
omgeving openbaar vervoer
ja
omgeving winkels
ja
omgeving autosnelweg
ja

Comfort

aansluiting riolering
ja
aansluiting gas
ja
aansluiting water
ja

Gebouw

bewoonbare opp.
850,00 m²
constructie
Gesloten

Energie

dubbel glas
ja
verwarming
Gas

Technieken

elektriciteit
ja
telefoonbekabeling
ja

Indeling

bureau
ja
keuken
ja

Stedenbouwkundige informatie & ruimtelijke ordening

bestemming
Woongebied
bouwvergunning
ja
verkavelingsvergunning
nee
voorkooprecht
nee
vonnissen
nee
overstromingsgevoeliggebied
Mogelijk overstromingsgevoelig gebied
kadaster sectie
G
kadaster nummer
159B
kadaster opp.
700
Uw makelaar
515 982
Steven De Petter
0485 52 55 29