- 2
- 133 m²
- garages
Ruim duplex appartement met staanplaats!
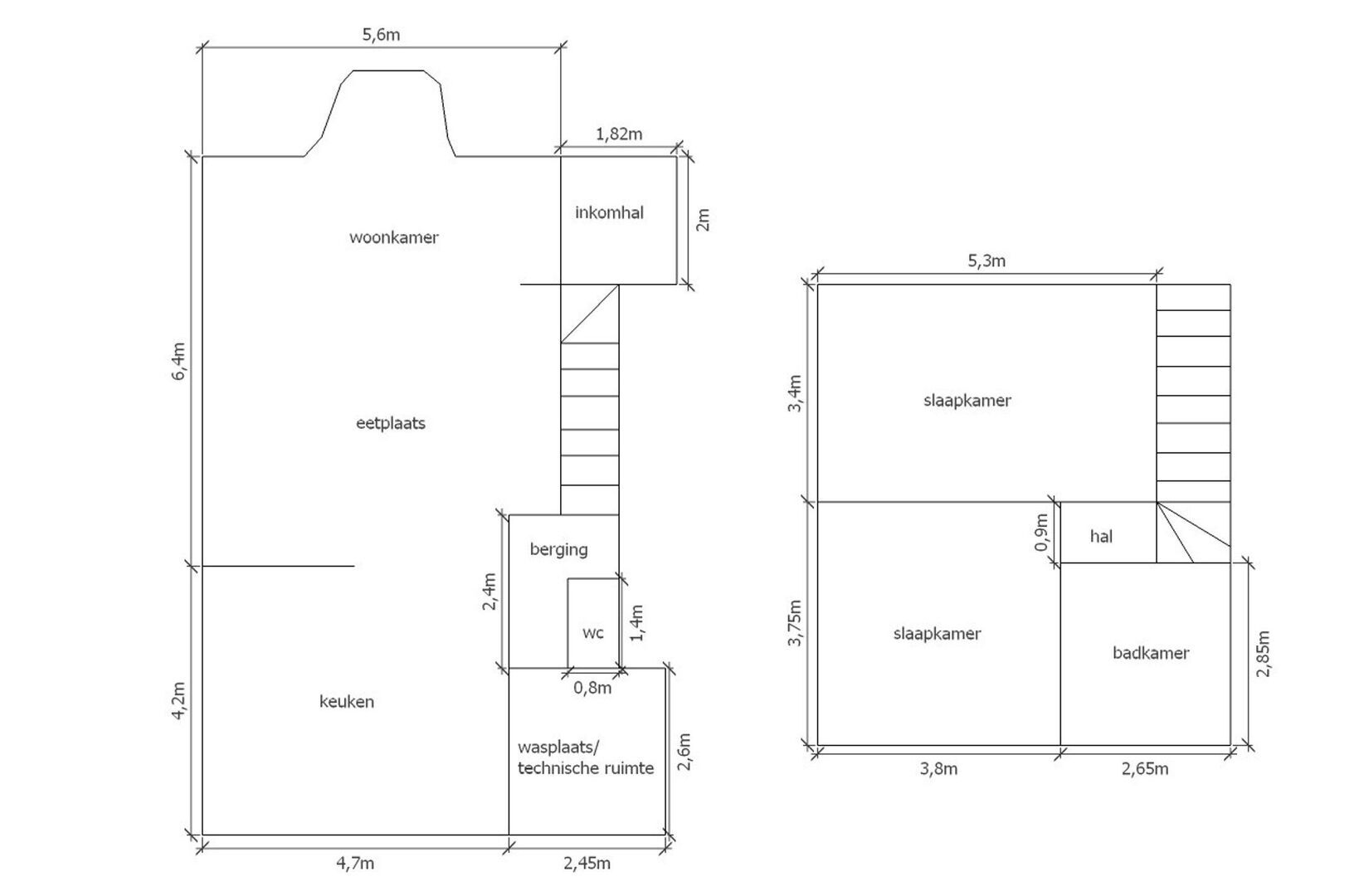
Dit instapklaar appartement bevindt zich op de 3e en 4e verdieping van een recent gebouw met lift. Het beschikt over een inkomhal, een lichtrijke woonkamer met open, ingerichte keuken (inclusief toestellen). Aansluitend aan de keuken vindt u een berging en technische ruimte (met aansluitingen voor wasmachine), evenals een apart toilet.
De woonkamer heeft directe toegang tot het mooi, west-georiënteerde terras.
De bovenste verdieping biedt twee ruime slaapkamers en een badkamer met douche in bad, dubbele lavabo en toilet.
Een extra troef is de bijhorende autostaanplaats, gelegen in de ondergrondse parking. Men beschikt tevens over een handige kelderberging.
Het appartement is voorzien van centrale verwarming op aardgas, dubbele beglazing, conforme elektriciteit en een videofoon, en is daarmee ideaal voor starters of als investering, aangezien het in het verleden succesvol werd verhuurd. Via de virtuele rondleiding kan u alvast een eerste indruk krijgen!
Centraal gelegen te Denderleeuw, vlakbij winkels, station en verbindingswegen! Voor meer info en/of een bezoek, contacteer Jonas via jonas@immotijl.be of 0477 17 44 20.
In detail
Financieel
- prijs
- € 254.000
- beschikbaarheid
- Vanaf akte
- onder btw stelsel
- nee
- kadastraal inkomen
- € 1.233
- opbrengsteigendom
- nee
Ligging
- ligging
- Woonkern
- omgeving school
- ja
- omgeving openbaar vervoer
- ja
- omgeving winkels
- ja
- omgeving autosnelweg
- ja
- omgeving sportcentrum
- ja
Comfort
- videofoon
- ja
- lift
- ja
- aansluiting riolering
- ja
- aansluiting gas
- ja
- aansluiting water
- ja
Gebouw
- bewoonbare opp.
- 133,00 m²
- bouwjaar
- 2007
- verdieping
- 3
Energie
- epc
- 104 kWh/m²
- epc unieke code
- 3550914-RES-1
- epc klasse
- B
- dubbel glas
- ja
- elektriciteitskeuring
- ja, conform
- type verwarming
- Individueel
Technieken
- elektriciteit
- ja
- telefoonbekabeling
- ja
Garages / parking
- binnenparking
- 1
Indeling
- kelder
- ja
- slaapkamers
- 2
- slaapkamer 1
- 18 m²
- slaapkamer 2
- 14 m²
- badkamers
- 1
- badkamer
- 7 m², type: Douche in bad
- toiletten
- 2
- terras
- ja
- woonkamer
- 35 m²
- keuken
- 19 m², Volledig geïnstalleerd
Downloads
Stedenbouwkundige informatie & ruimtelijke ordening
- bestemming
- Woongebied
- bouwvergunning
- ja
- verkavelingsvergunning
- nee
- voorkooprecht
- nee
- vonnissen
- nee
- g-score
- A
- p-score
- A
- kadaster sectie
- A
- kadaster nummer
- 166 R















