- 8
- 674 m²
- garages
Unieke & ruime eigendom te centrum Aalst!
Uniek handelspand met karaktervol herenhuis op toplocatie in Aalst
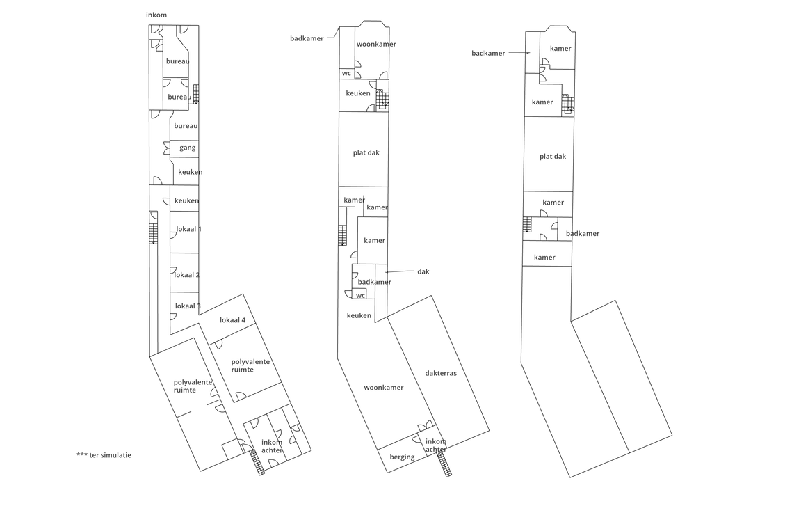
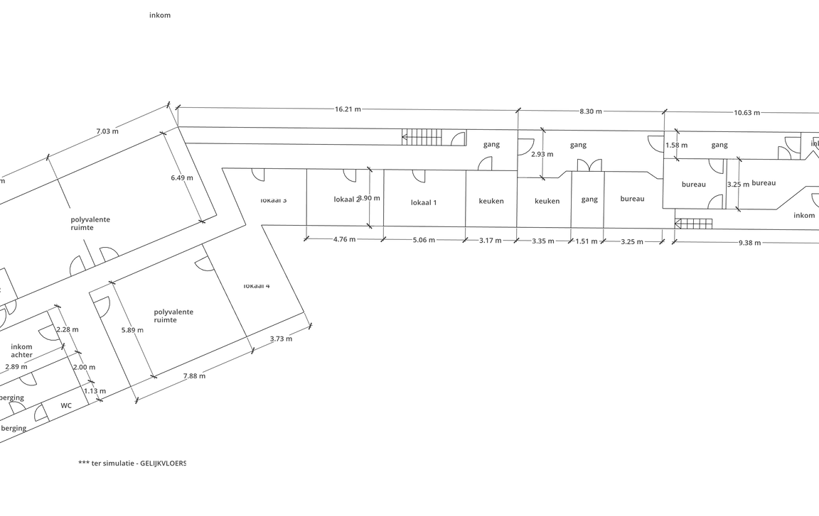
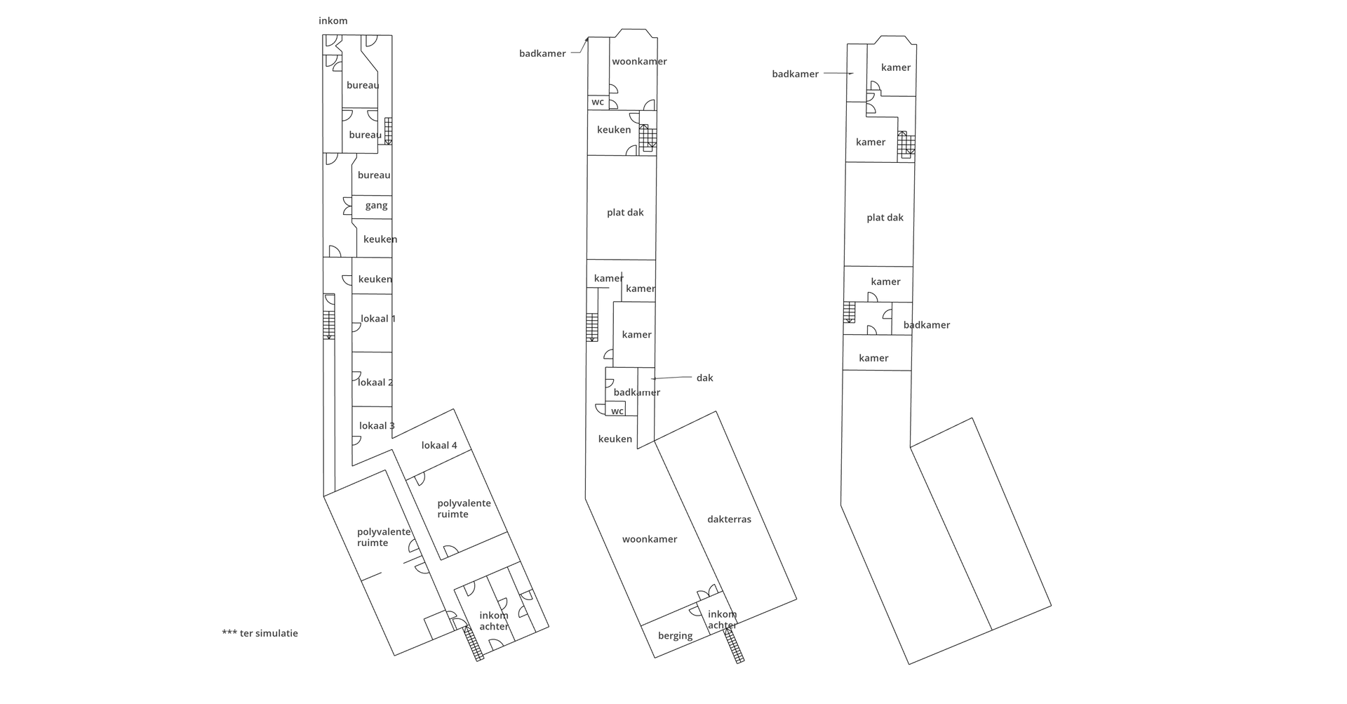
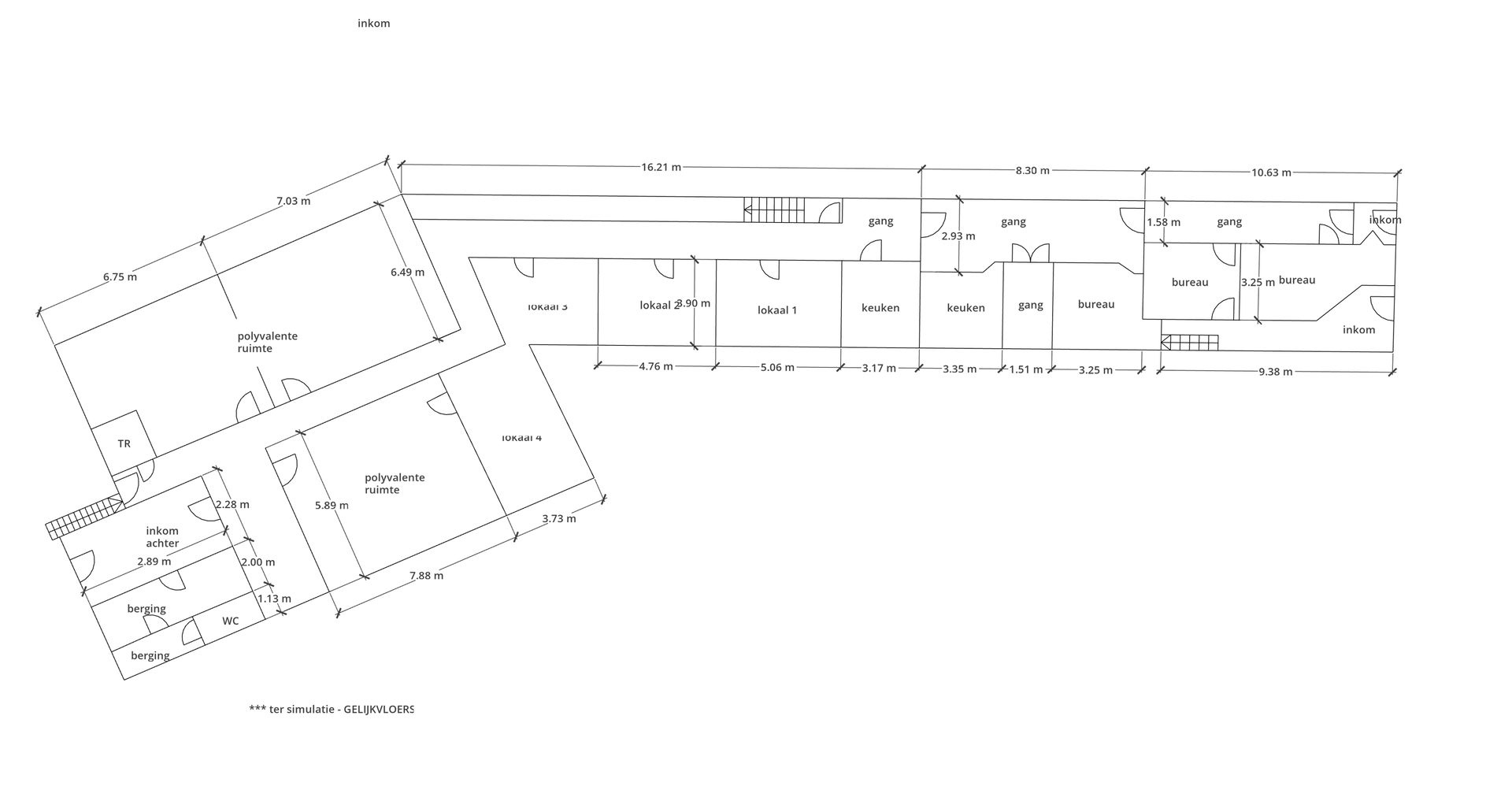
Op een uitstekende locatie met hoge visibiliteit op de Heilig Hartlaan te Aalst bevindt zich dit uitzonderlijke en veelzijdige pand met tal van mogelijkheden. Langs de straatzijde bevindt zich een prachtig herenhuis met authentieke elementen, wat het pand een unieke uitstraling en karakter geeft. Het gelijkvloers beschikt over twee aparte ingangen en een vitrine, ideaal voor commerciële doeleinden of een combinatie van wonen en werken. Achteraan het herenhuis bevinden zich meerdere bureauruimtes, een keuken en diverse kamers die volledig naar eigen wens kunnen ingericht worden.
Het gebouw loopt verder door in een ruime gang die toegang geeft tot verschillende lokalen, die vroeger ingericht waren als crèche:
Lokaal 1: ca. 19 m², lokaal 2: ca. 18 m², lokaal 3: ca. 19 m², lokaal 4: ca. 22 m²
Aansluitend bevinden zich nog drie ruime polyvalente zalen van ca. 46 m², 45 m² en 43 m², ideaal voor diverse professionele of creatieve invullingen.
Achteraan het perceel, bereikbaar via de Weverijstraat 52, bevindt zich een derde, aparte inkom die toegang geeft tot een ruime inkomsas, en de polyvalente zalen. Daarnaast beschikt dit gedeelte over een aangenaam tuintje met terras en parkeermogelijkheid voor meerdere wagens, wat een enorme meerwaarde biedt.
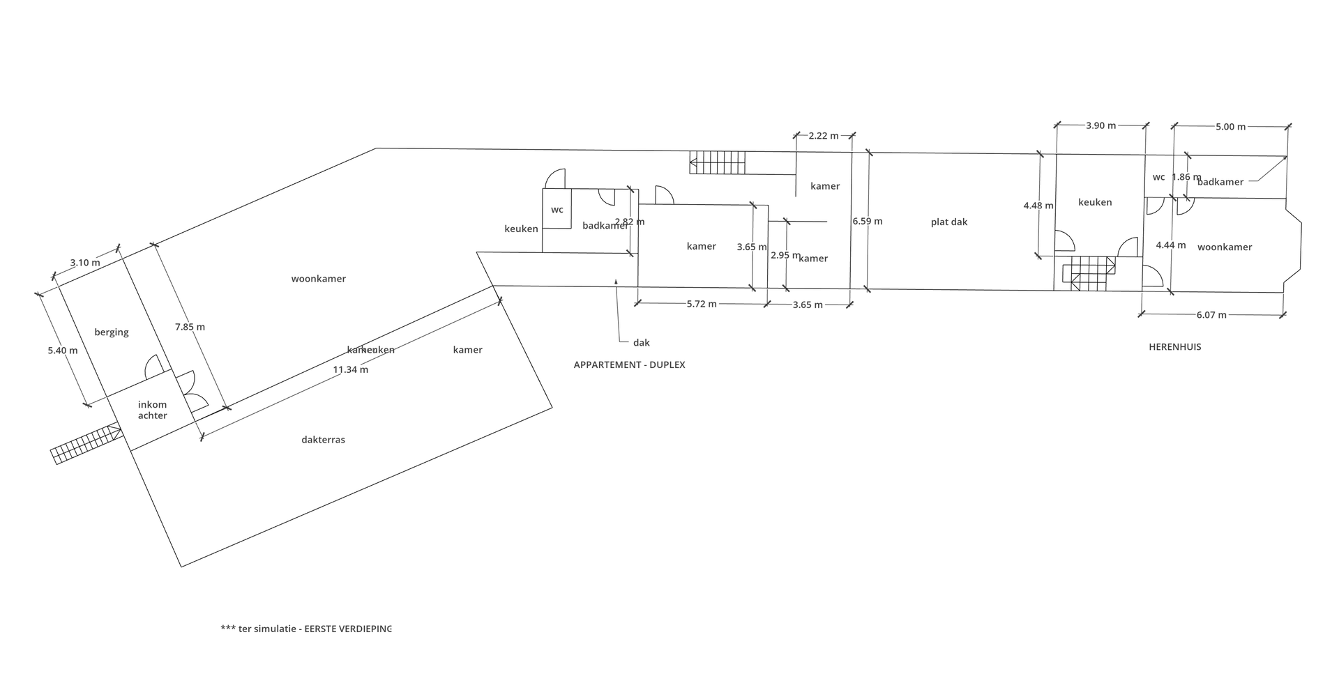
Indeling woonst herenhuis:
Op de eerste verdieping bevindt zich een ruime woonkamer, een keuken, een badkamer en een apart toilet.
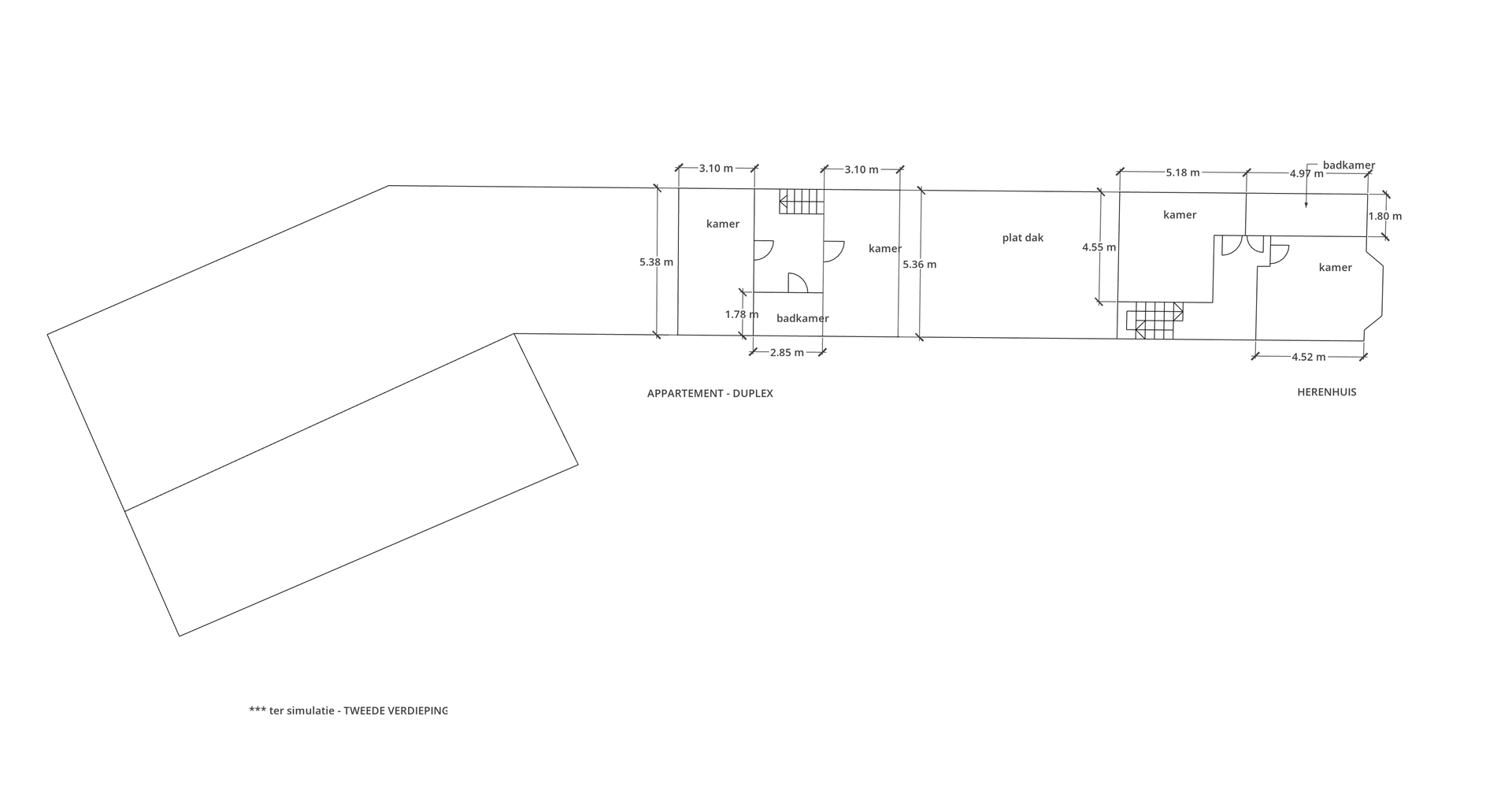
De tweede verdieping omvat twee ruime slaapkamers en een tweede badkamer.
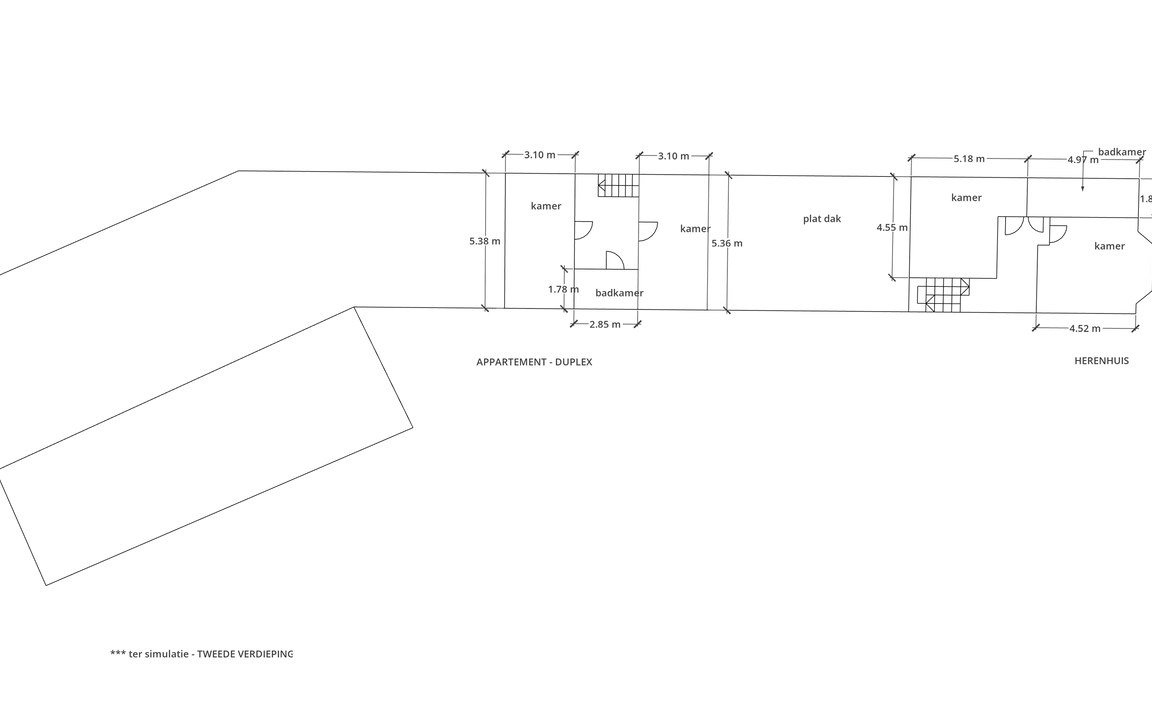
Extra woongelegenheid boven de polyvalente zalen:
Boven de achterliggende ruimtes bevindt zich een volwaardige en zeer ruime woning/duplex appartement met 4 slaapkamers, 2 badkamers, een apart toilet, een keuken en een lichtrijke, ruime woonkamer die uitgeeft op een aangenaam imens dakterras. Deze woonst is bovendien ook toegankelijk via de achterzijde via een buitentrap.
Kijk op onze website voor meer detail plannen
Dankzij de uitzonderlijke oppervlakte, meerdere toegangen en flexibele indeling biedt dit pand enorm veel potentieel voor diverse doeleinden zoals kantoor, praktijk, co-working, handel, meergezinswoning of combinatie wonen/werken.
Een unieke opportuniteit op een topligging in Aalst!
Voor meer info of een bezoek: steffen@immotijl.be of 053 42 46 99.
In detail
Financieel
- prijs
- € 699.000
- onder btw stelsel
- nee
- kadastraal inkomen
- € 3.344
- opbrengsteigendom
- ja
Ligging
- ligging
- Centraal
- omgeving school
- ja
- omgeving openbaar vervoer
- ja
- omgeving winkels
- ja
- omgeving autosnelweg
- ja
- omgeving sportcentrum
- ja
Comfort
- aansluiting riolering
- ja
- aansluiting water
- ja
- kabeltelevisie
- ja
Gebouw
- constructie
- Gesloten
- gevelbreedte
- 7,00 m
- oriëntatie achtergevel
- Zuid
- oriëntatie voorgevel
- Noord
Terrein
- perceel opp.
- 674,00 m²
- breedte aan de straatkant
- 7,00 m
- tuin
- ja
Energie
- epc
- 731 kWh/m²
- epc unieke code
- 20201030-0002334387-RES-1
- epc klasse
- F
Technieken
- elektriciteit
- ja
- telefoonbekabeling
- ja
Garages / parking
- garages / parking
- nee
- binnenparking
- nee
- buitenparking
- 3
Indeling
- kelder
- ja
- terras
- ja
Stedenbouwkundige informatie & ruimtelijke ordening
- bestemming
- Woongebied
- bouwvergunning
- ja
- verkavelingsvergunning
- nee
- voorkooprecht
- nee
- vonnissen
- nee
- g-score
- A
- p-score
- C
- bestuursmaatregelen in het maatregelenregister
- nee
- kadaster sectie
- D
- kadaster nummer
- 733 A4 N7 P7
- kadaster opp.
- 6A74
- renovatieverplichting
- JaDit pand kan onderheven zijn aan de renovatieverplichting die door de vlaamse overheid word opgelegd voor residentiele gebouwen. Voor meer informatie kan u de website van het Vlaams Energie- en Klimaatagentschap contacteren: https://www.vlaanderen.be/een-woning-kopen/renovatieverplichting-voor-residentiele-gebouwen


































