- 4
- 341 m²
- 185 m²
Centraal gelegen handelspand met ruim appartement!
Deze ruime eigendom biedt u de perfecte gelegenheid om uw commerciële activiteiten te combineren met comfortabel wonen.
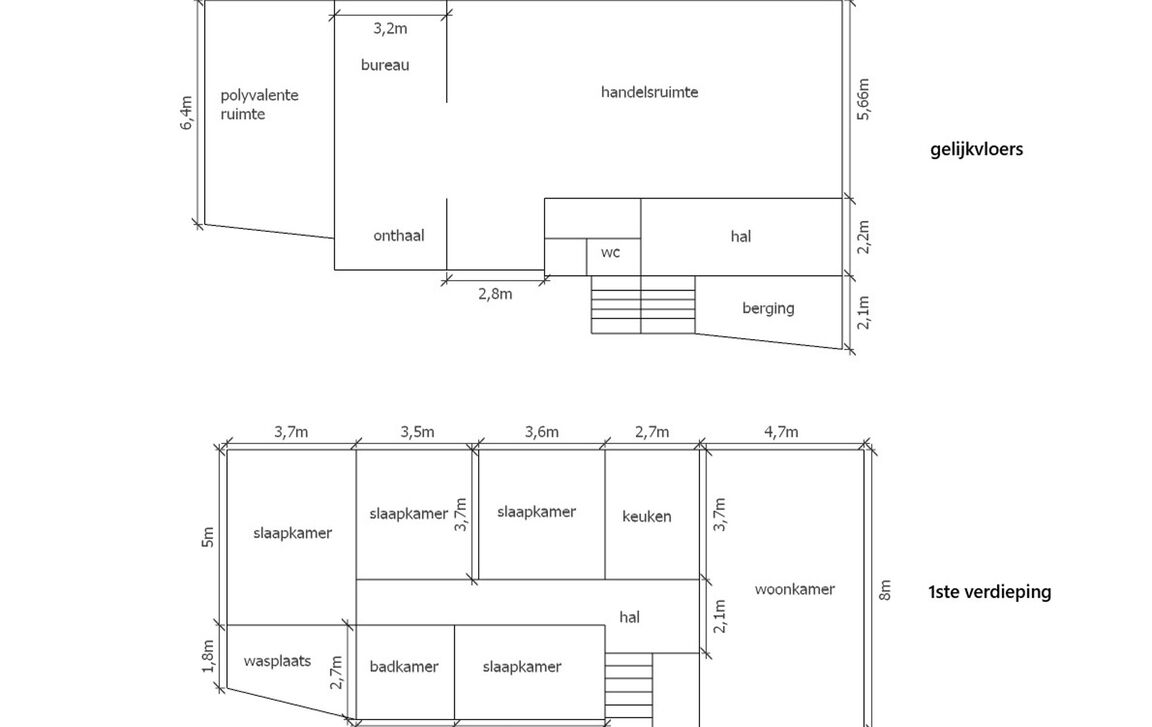
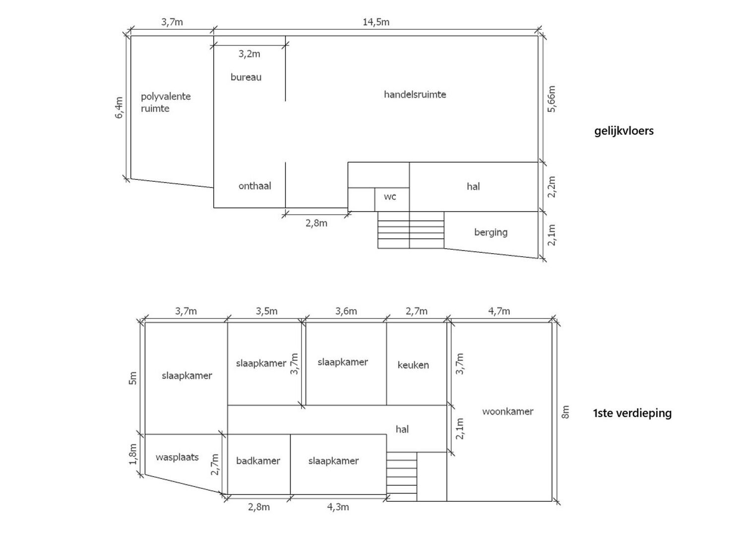
Op het gelijkvloers bevindt zich momenteel een handelsruimte, ideaal als winkel en/of kantoor. Daarnaast zijn er een bureauruimte, vergaderzaal en een afzonderlijk toilet aanwezig.
Het appartement op de eerste verdieping heeft een aparte inkom en biedt uitzonderlijk veel ruimte. Het omvat een woonkamer met eetplaats, vier slaapkamers, een ruime keuken, een badkamer (met douche in bad, lavabo en toilet) en een berging/wasplaats die aansluit op de badkamer. Vanuit de woonkamer heeft u toegang tot een westgericht terras.
De ligging is een grote troef: centraal in een handelsbuurt, met uitstekende zichtbaarheid voor commerciële activiteiten en een vlotte bereikbaarheid via openbaar vervoer en invalswegen. Winkels, scholen en andere voorzieningen liggen op wandelafstand. Dit maakt het pand niet alleen interessant voor ondernemers, maar ook voor gezinnen.
Het gebouw is deels voorzien van dubbele beglazing. Het appartement beschikt over centrale verwarming op aardgas en een EPC van 349 kWh/m²/jaar (label D). Het gelijkvloers wordt verwarmd op stookolie en heeft een energielabel F. Het dak werd reeds volledig vernieuwd!
Momenteel is het volledige pand verhuurd, wat het bijzonder aantrekkelijk maakt voor investeerders.
Voor meer informatie of een bezoek, contacteer Jonas via jonas@immotijl.be of op 0477 17 44 20.
In detail
Financieel
- prijs
- € 365.000
- beschikbaarheid
- Mits inachtneming huurders
- onder btw stelsel
- nee
- kadastraal inkomen
- € 1.970
- opbrengsteigendom
- nee
Ligging
- ligging
- Woonkern
- omgeving school
- ja
- omgeving openbaar vervoer
- ja
- omgeving winkels
- ja
- omgeving autosnelweg
- ja
- omgeving sportcentrum
- ja
Comfort
- aansluiting riolering
- ja
- aansluiting water
- ja
- kabeltelevisie
- ja
Gebouw
- bewoonbare opp.
- 341,00 m²
- constructie
- Open
- bouwjaar
- 1966
Terrein
- perceel opp.
- 185,00 m²
Energie
- epc unieke code
- 3598471-KNR-1
- epc klasse
- F
- dubbel glas
- ja
- verwarming
- Gas
- type verwarming
- Individueel
Technieken
- elektriciteit
- ja
- telefoonbekabeling
- ja
Indeling
- bureau
- ja
- woonkamer
- 37 m²
- keuken
- 10 m²
- slaapkamers
- 4
- slaapkamer 1
- 18 m²
- slaapkamer 2
- 13 m²
- slaapkamer 3
- 13 m²
- slaapkamer 4
- 11 m²
- terras
- ja
Stedenbouwkundige informatie & ruimtelijke ordening
- bestemming
- Woongebied
- bouwvergunning
- ja
- verkavelingsvergunning
- nee
- voorkooprecht
- nee
- vonnissen
- nee
- g-score
- B
- p-score
- B
- kadaster sectie
- A
- kadaster nummer
- 651 S
- kadaster opp.
- 185
- renovatieverplichting
- JaDit pand kan onderheven zijn aan de renovatieverplichting die door de vlaamse overheid word opgelegd voor residentiele gebouwen. Voor meer informatie kan u de website van het Vlaams Energie- en Klimaatagentschap contacteren: https://www.vlaanderen.be/een-woning-kopen/renovatieverplichting-voor-residentiele-gebouwen
- bodemattest
- ja








