- 5
- 283 m²
- 1.340 m²
- garages
Authentieke villa met 5 slaapkamers op ruim perceel!
Bent u op zoek naar een vrijstaande villa met ruimte voor een eigen zaak, praktijk of kantoor? Deze eigendom biedt een unieke kans om comfortabel wonen te combineren met professioneel werken.
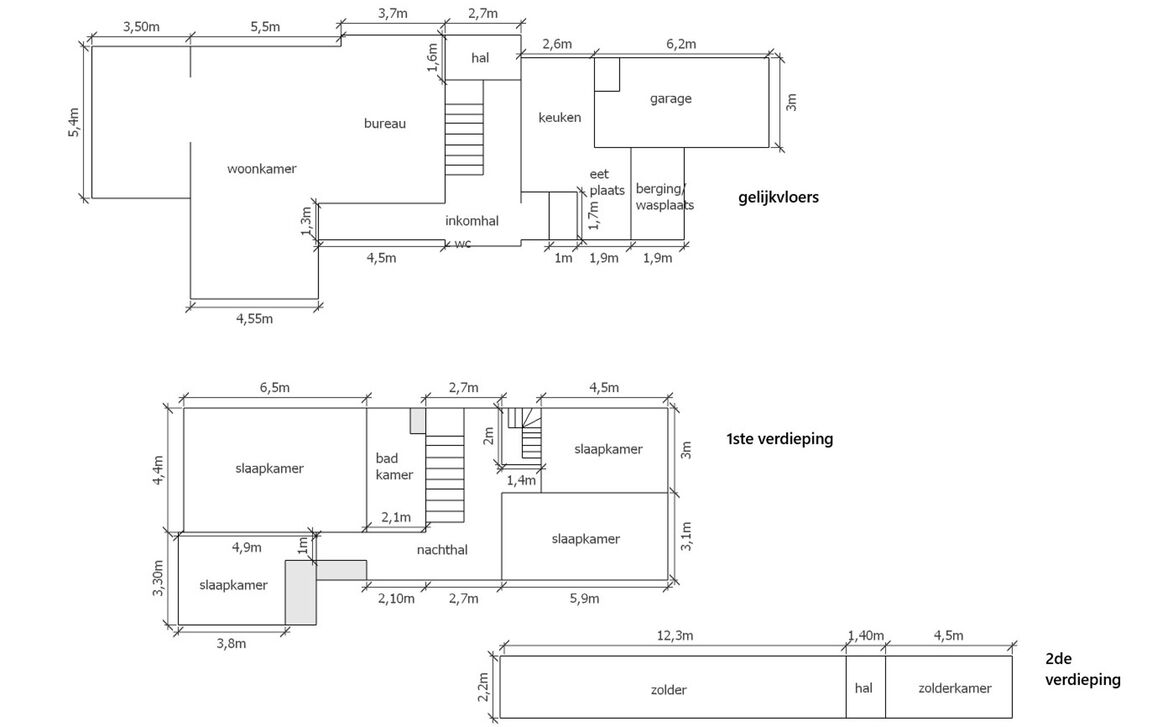
U wordt op het gelijkvloers verwelkomd in een imposante inkomhal met gastentoilet. De ruime, lichtrijke leefruimte met geïntegreerde bureauruimte is afgewerkt met een hoogwaardige parketvloer. Aansluitend bevindt zich de keuken met eetplaats en een praktische berging/wasplaats. Een extra troef is de inpandige garage met automatische poort. Dankzij de ligging en de ruime parkeermogelijkheden voor klanten is het gelijkvloers uitstekend geschikt voor commerciële doeleinden (mits verkrijgen van de nodige vergunningen/bestemmingswijziging).
Op de eerste verdieping vindt u vier ruime slaapkamers, elk voorzien van handige ingemaakte kasten. De moderne badkamer is uitgerust met een ligbad, douche, dubbele lavabo en toilet.
Via de woonkamer heeft u toegang tot het brede terras dat uitkijkt op de aangelegde tuin met westelijke oriëntatie. De absolute blikvanger van deze villa is de indrukwekkende orangerie (veranda) aan de zuidzijde van het perceel, waar u het hele jaar door in alle comfort van het buitenleven kunt genieten.
Een vaste trap leidt naar de zolderverdieping, waar zich nog een extra slaapkamer bevindt. Bovendien biedt deze zolder nog bijkomende uitbreidingsmogelijkheden.
De woning wordt verwarmd via centrale verwarming op stookolie en beschikt over airconditioning in zowel de master bedroom als de orangerie. De renovatieverplichting is van toepassing.
Bovendien geniet u van een uitstekende ligging in Geraardsbergen, dicht bij alle voorzieningen en invalswegen.
Voor meer informatie of een bezichtiging, neem contact op met Nadia via nadia@immotijl.be of 0486 79 73 19.
In detail
Financieel
- prijs
- € 675.000
- beschikbaarheid
- Af te spreken met eigenaar
- onder btw stelsel
- nee
- kadastraal inkomen
- € 1.516
- opbrengsteigendom
- nee
Ligging
- ligging
- Centraal
- omgeving school
- ja
- omgeving openbaar vervoer
- ja
- omgeving winkels
- ja
- omgeving sportcentrum
- ja
Comfort
- intercom
- ja
- aansluiting riolering
- ja
- aansluiting water
- ja
- kabeltelevisie
- ja
Gebouw
- bewoonbare opp.
- 283,00 m²
- constructie
- Open
- oriëntatie achtergevel
- West
Terrein
- perceel opp.
- 1.340,00 m²
- tuin
- 300,00 m²
Energie
- epc
- 584 kWh/m²
- epc unieke code
- 3120478-RES-1
- epc klasse
- F
- dubbel glas
- ja
- elektriciteitskeuring
- ja, niet conform
- verwarming
- Stookolie
Technieken
- elektriciteit
- ja
- telefoonbekabeling
- ja
Garages / parking
- garages / parking
- 1
- binnenparking
- 1
- buitenparking
- 4
Indeling
- kelder
- ja
- slaapkamers
- 5
- slaapkamer 1
- 28 m²
- slaapkamer 2
- 12 m²
- slaapkamer 3
- 17 m²
- slaapkamer 4
- 13 m²
- slaapkamer 5
- 10 m²
- terras
- ja
- bureau
- ja
- woonkamer
- 54 m²
- keuken
- 12 m², Geïnstalleerd
- veranda
- ja
Certificaten
- asbestinventarisattest
- Ja
Downloads
Stedenbouwkundige informatie & ruimtelijke ordening
- bestemming
- Woongebied
- bouwvergunning
- nee
- verkavelingsvergunning
- nee
- voorkooprecht
- nee
- vonnissen
- nee
- g-score
- A
- p-score
- B
- kadaster sectie
- A
- kadaster nummer
- 122 L
- kadaster opp.
- 1340
- renovatieverplichting
- JaDit pand kan onderheven zijn aan de renovatieverplichting die door de vlaamse overheid word opgelegd voor residentiele gebouwen. Voor meer informatie kan u de website van het Vlaams Energie- en Klimaatagentschap contacteren: https://www.vlaanderen.be/een-woning-kopen/renovatieverplichting-voor-residentiele-gebouwen
- bodemattest
- ja






















