- 3
- 164 m²
- 368 m²
- garages
Karaktervol pand met handelsruimte en appartement!
Karaktervol pand met handelsruimte en appartement!
Deze veelzijdige eigendom biedt u de ideale kans om commerciële activiteiten te combineren met comfortabel wonen.
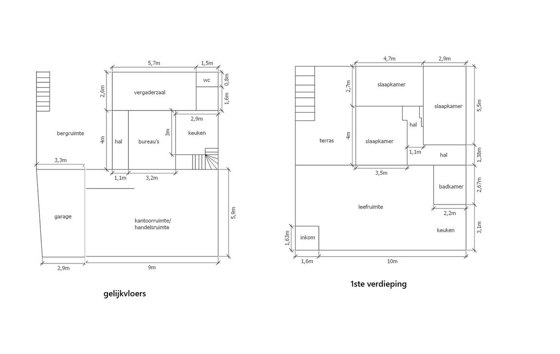
Op het gelijkvloers bevindt zich een handelsruimte, perfect geschikt als winkel of kantoor. Daarnaast zijn er een bureau, ruimte voor een keuken, een vergaderzaal en een afzonderlijk toilet aanwezig. De inpandige garage zorgt voor extra comfort en praktische parkeermogelijkheid. Voor het gebouw is er bovendien voldoende parkeerruimte aanwezig, wat het geheel nog aantrekkelijker maakt voor klanten en bezoekers.
Het appartement op de eerste verdieping heeft een aparte inkom en biedt uitzonderlijk veel ruimte. Het omvat een grote woonkamer met eetplaats, drie slaapkamers, een ingerichte keuken en een moderne badkamer met ruime inloopdouche, lavabo en toilet. Vanuit de woonkamer heeft u toegang tot een zuidwestgericht terras.
De ligging is een absolute troef: centraal gelegen met uitstekende zichtbaarheid voor commerciële activiteiten en een vlotte bereikbaarheid via openbaar vervoer en invalswegen. Winkels, scholen en andere voorzieningen bevinden zich op wandelafstand. Dit maakt het pand interessant voor zowel ondernemers als gezinnen.
Het gebouw is deels voorzien van dubbele beglazing. Het appartement beschikt over centrale verwarming op aardgas en een EPC van 449 kWh/m²/jaar (label E). Het gelijkvloers wordt deels verwarmd op aardgas en heeft een energielabel C.
Interesse of graag een bezichtiging? Contacteer june@immotijl.be of bel naar 0486 17 07 61.
In detail
Financieel
- prijs
- € 300.000
- beschikbaarheid
- Vanaf akte
- onder btw stelsel
- nee
- kadastraal inkomen
- € 1.597
- opbrengsteigendom
- nee
Ligging
- ligging
- Woonkern
- omgeving school
- ja
- omgeving openbaar vervoer
- ja
- omgeving winkels
- ja
- omgeving autosnelweg
- ja
- omgeving sportcentrum
- ja
Comfort
- aansluiting riolering
- ja
- aansluiting gas
- ja
- aansluiting water
- ja
- kabeltelevisie
- ja
Gebouw
- bewoonbare opp.
- 164,00 m²
- constructie
- Gesloten
- bouwjaar
- 1979
- verdieping(en)
- 1
- oriëntatie achtergevel
- Zuidwest
Terrein
- perceel opp.
- 368,00 m²
Energie
- epc
- 449 kWh/m²
- epc unieke code
- 3669154-RES-1
- epc klasse
- E
- dubbel glas
- ja
- verwarming
- Gas
Technieken
- elektriciteit
- ja
- telefoonbekabeling
- ja
Garages / parking
- garages / parking
- 1
- binnenparking
- 1
- buitenparking
- 5
Indeling
- kelder
- ja
- slaapkamers
- 3
- slaapkamer 1
- 12 m²
- slaapkamer 2
- 14 m²
- slaapkamer 3
- 16 m²
- terras
- ja
- bureau
- 12 m²
- woonkamer
- 58 m²
- keuken
- 6 m², Volledig geïnstalleerd
Certificaten
- asbestinventarisattest
- Ja
Downloads
Stedenbouwkundige informatie & ruimtelijke ordening
- bestemming
- Woongebied
- bouwvergunning
- ja
- verkavelingsvergunning
- nee
- voorkooprecht
- nee
- vonnissen
- nee
- g-score
- B
- p-score
- B
- kadaster sectie
- B
- kadaster nummer
- 129 P/ 129 N
- kadaster opp.
- 368
- renovatieverplichting
- JaDit pand kan onderheven zijn aan de renovatieverplichting die door de vlaamse overheid word opgelegd voor residentiele gebouwen. Voor meer informatie kan u de website van het Vlaams Energie- en Klimaatagentschap contacteren: https://www.vlaanderen.be/een-woning-kopen/renovatieverplichting-voor-residentiele-gebouwen
- bodemattest
- ja


















