- 3
- 120 m²
- 591 m²
- garages
Ruime handelswoning met duplexappartement en tuin!
Dit uniek gebouw biedt de perfecte combinatie van een instapklaar appartement en een ruime, functionele handelsruimte met tal van mogelijkheden, ideaal voor wie wonen en werken wil combineren! Beide delen hebben bovendien een afzonderlijke ingang.
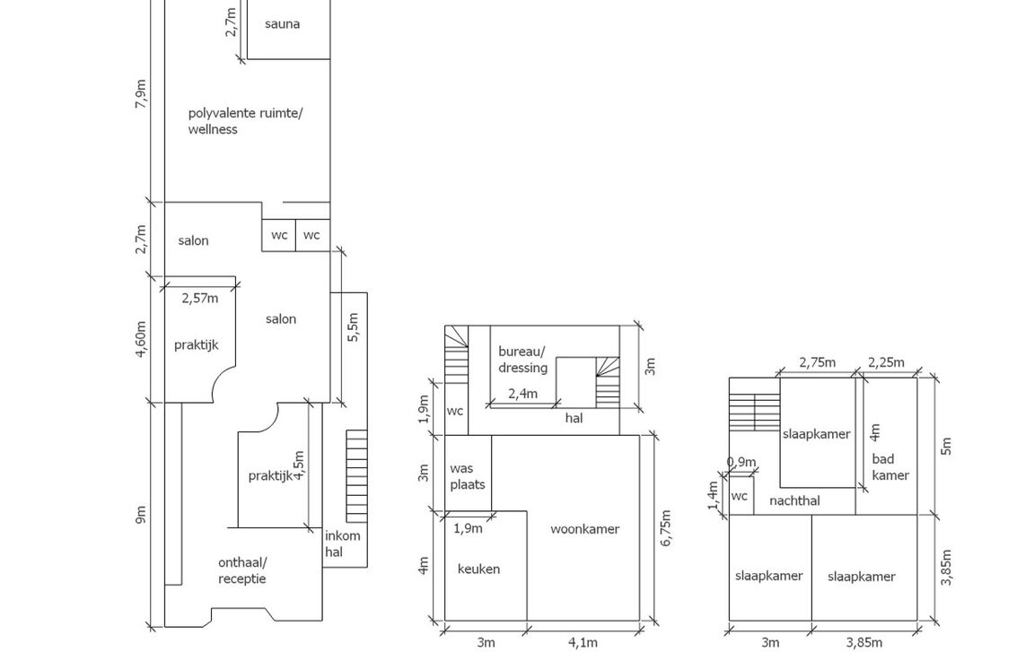
Op het gelijkvloers bevindt zich de handelsruimte, momenteel ingericht als kapsalon, schoonheidsinstituut en wellnessgedeelte. De ruimte beschikt over een verzorgd onthaal, meerdere toiletten en een volledig uitgeruste wellnesszone met sauna, douche en massageruimte. Dankzij de gunstige indeling, de oppervlakte en de uitstekende zichtbaarheid leent dit gelijkvloers zich perfect voor uiteenlopende professionele activiteiten. De EPC-score van de handelsruimte bedraagt label C.
De eerste en tweede verdieping vormen samen een aangenaam, licht en praktisch ingericht appartement. Via een aparte inkomhal met gastentoilet komt men in de gezellige woonkamer met eetplaats en uitgeruste keuken, aansluitend op een handige berging/wasplaats. Op de bovenste verdieping bevinden zich drie comfortabele slaapkamers, apart toilet en een ruime badkamer met ligbad, lavabo en douche. De EPC-score van het appartement bedraagt 253kWh/m², label C. Neem alvast een kijkje via de virtuele rondleiding!
Achteraan geniet men van een diepe, zuidgerichte tuin met een terras, een heerlijke plek om tot rust te komen.
Dankzij de verzorgde afwerking en de praktische indeling is dit pand bijzonder geschikt als werk- en woonplek. Bovendien zijn er voor het gebouw voldoende parkeermogelijkheden, wat zowel voor klanten als medewerkers een groot voordeel is.
De ligging is bijzonder gunstig, met een vlotte verbinding naar het stadscentrum en nabijgelegen steden zoals Aalst en Denderleeuw. Ook de bereikbaarheid met de wagen en het openbaar vervoer is uitstekend.
Voor meer informatie of een bezoek, contacteer Nadia via 0486 79 73 19 of nadia@immotijl.be.
In detail
Financieel
- prijs
- € 799.000
- beschikbaarheid
- Vanaf akte
- onder btw stelsel
- nee
- kadastraal inkomen
- € 2.357
- opbrengsteigendom
- nee
Ligging
- ligging
- Centraal
- omgeving school
- ja
- omgeving openbaar vervoer
- ja
- omgeving winkels
- ja
- omgeving autosnelweg
- ja
Comfort
- intercom
- ja
- aansluiting riolering
- ja
- aansluiting water
- ja
- kabeltelevisie
- ja
Gebouw
- bewoonbare opp.
- 120,00 m²
- constructie
- Gesloten
- bouwjaar
- 1994
- oriëntatie achtergevel
- Zuid
Terrein
- perceel opp.
- 591,00 m²
- tuin
- 320,00 m²
Energie
- epc
- 253 kWh/m²
- epc unieke code
- 3636255-RES-1
- epc klasse
- C
- dubbel glas
- ja
- elektriciteitskeuring
- ja, conform, 15 juni 2015
- verwarming
- Elektrisch
Technieken
- elektriciteit
- ja
- telefoonbekabeling
- ja
Garages / parking
- buitenparking
- 3
Indeling
- bureau
- 7 m²
- woonkamer
- 31 m²
- keuken
- 12 m², Volledig geïnstalleerd
- slaapkamers
- 3
- slaapkamer 1
- 15 m²
- slaapkamer 2
- 12 m²
- slaapkamer 3
- 11 m²
- terras
- ja
Certificaten
- asbestinventarisattest
- Ja, 26 augustus 2025, asbestveilig
Stedenbouwkundige informatie & ruimtelijke ordening
- bestemming
- Woongebied
- bouwvergunning
- ja
- verkavelingsvergunning
- nee
- voorkooprecht
- nee
- vonnissen
- nee
- g-score
- A
- p-score
- A
- kadaster sectie
- B
- kadaster nummer
- 144 C2
- kadaster opp.
- 5a 91ca
- bodemattest
- ja






















