- 5
- 236 m²
- 170 m²
Karaktervol herenhuis met 5 slpks en tuin in hartje Aalst!
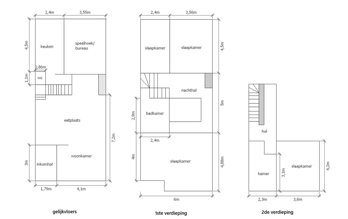
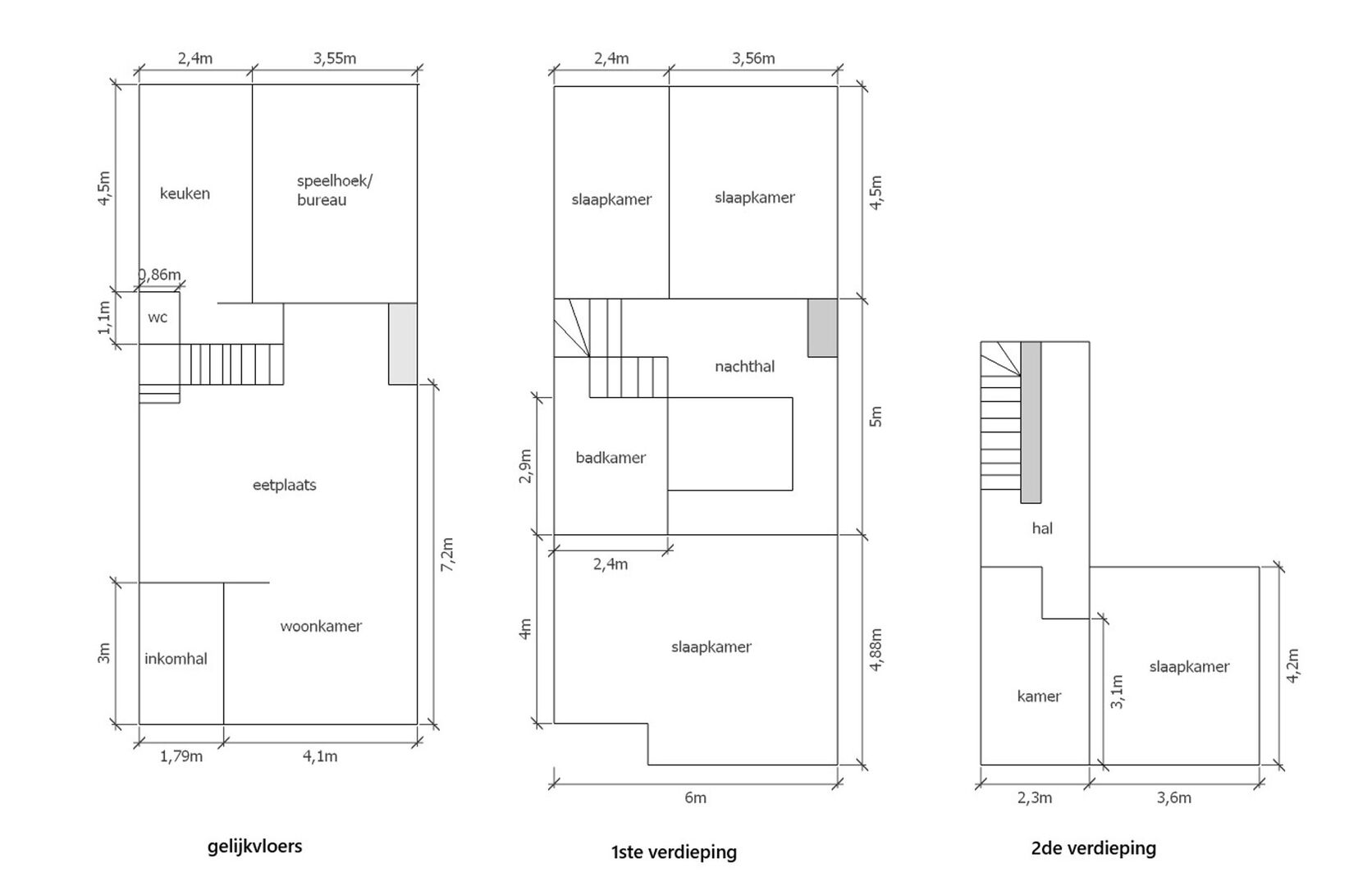
Deze unieke woning beschikt op het gelijkvloers over een inkomhal, een ruime woonkamer met eetplaats, een gezellige zithoek (ook ideaal als bureau of speelkamer) een ingerichte keuken en een apart toilet. Een bijzonder element is het grote dakraam centraal in de woning dat zorgt voor een aangename, natuurlijke lichtinval in vrijwel alle ruimtes.
Op de eerste verdieping vindt men drie slaapkamers en een badkamer (douche-in-bad, dubbele lavabo en toilet). De bovenste verdieping biedt nog twee bijkomende (slaap)kamers en een prachtig dakterras.
Achteraan bevindt zich het terras met aansluitend een gezellige stadstuin.
Als extra troef is er een handige kelder, ideaal als opbergruimte.
De woning is voorzien van centrale verwarming op aardgas en (grotendeels) hoogrendementsbeglazing. al houdt u best rekening met het feit dat de woning een opfrissing kan gebruiken.
Authentieke elementen zoals de karaktervolle gevel, hoge plafonds, sfeervolle indeling, grote raampartijen, ... zorgen voor een unieke uitstraling.
Gelegen in het centrum van Aalst, vlakbij de winkelstraten, Grote Markt, Vredeplein, scholen en op wandelafstand van het station. Bovendien is er een vlotte verbinding met belangrijke invalswegen zoals de E40. Voor meer informatie en/of een bezoek, contacteer Tijl via tijl@immotijl.be of 0477 44 86 11.
Disclaimer: Bepaalde foto’s bevatten AI-gegenereerde virtuele inrichting. Deze projecties zijn louter illustratief en geven geen weergave van de actuele staat van de woning.
In detail
Financieel
- prijs
- € 544.000
- beschikbaarheid
- Vanaf akte
- onder btw stelsel
- nee
- kadastraal inkomen
- € 1.207
- opbrengsteigendom
- nee
Ligging
- ligging
- Stadskern
- omgeving school
- ja
- omgeving openbaar vervoer
- ja
- omgeving winkels
- ja
- omgeving autosnelweg
- ja
- omgeving sportcentrum
- ja
Comfort
- rolluiken
- ja
- aansluiting riolering
- ja
- aansluiting gas
- ja
- aansluiting water
- ja
- kabeltelevisie
- ja
Gebouw
- bewoonbare opp.
- 236,00 m²
- constructie
- Gesloten
- verdieping(en)
- 2
Terrein
- perceel opp.
- 170,00 m²
- tuin
- 50,00 m²
Energie
- epc
- 316 kWh/m²
- epc unieke code
- 3558728-RES-1
- epc klasse
- D
- dubbel glas
- ja
- elektriciteitskeuring
- ja, niet conform
- verwarming
- Gas
Technieken
- elektriciteit
- ja
- telefoonbekabeling
- ja
Indeling
- kelder
- ja
- slaapkamers
- 5
- slaapkamer 1
- 26 m²
- slaapkamer 2
- 16 m²
- slaapkamer 3
- 10 m²
- slaapkamer 4
- 15 m²
- slaapkamer 5
- 9 m²
- terras
- ja
- bureau
- 15 m²
- woonkamer
- 36 m²
- keuken
- 10 m², Gedeeltelijk geïnstalleerd
Stedenbouwkundige informatie & ruimtelijke ordening
- bestemming
- Woongebied met een cult., hist. en/of esthetische waarde
- bouwvergunning
- nee
- verkavelingsvergunning
- nee
- voorkooprecht
- nee
- vonnissen
- nee
- g-score
- A
- p-score
- A
- kadaster sectie
- A
- kadaster nummer
- 981 B3
- kadaster opp.
- 170
- bodemattest
- ja


















