Horeca
Esplanadeplein 14, 9300 Aalst
€ 395.000
- 251 m²
- 100 m²
Veelzijdig pand met met woonst te koop in hartje Aalst!
Bent u op zoek naar een unieke horecazaak, een stijlvolle kantoorruimte of een handelspand met woonst? Dit pand op het Esplanadeplein in Aalst biedt tal van mogelijkheden!
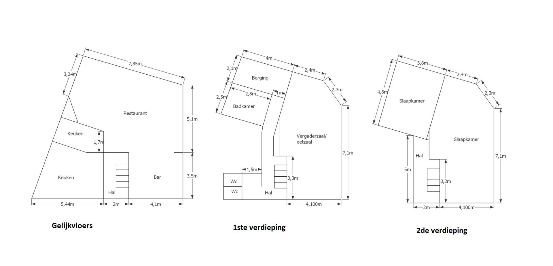
Op het gelijkvloers bevindt zich een moderne, uitnodigende ruimte met bar en ingerichte keuken, perfect voor een restaurant, café of andere commerciële invulling. De eerste verdieping beschikt over een extra zaal, ideaal als eetruimte, vergaderzaal of coworking space. Verder zijn er aparte toiletten (man/vrouw), een berging en een badkamer met douche-in-bad, lavabomeubel en toilet.
De bovenverdieping biedt twee ruime slaapkamers met de optie om een derde kamer te creëren, wat het pand ook geschikt maakt voor een combinatie van werken en wonen. Extra troeven zijn de zolder (bereikbaar via vaste trap) en een kelder, ideaal als opslagruimte. Buiten is er een ruim terras en ook op de verdieping kan een extra terras gecreëerd worden.
De ligging is ongeëvenaard: in het hart van Aalst, pal naast de winkelstraten, met scholen, het station en parkeergelegenheid op het Esplanadeplein op wandelafstand. Dankzij de centrale verwarming op aardgas en deels dubbele beglazing is dit een energiezuinige keuze.
Aankoop via aandeeloverdracht mogelijk!
Voor meer info en/of een bezoek, contacteer ons via tijl@immotijl.be of 0477 44 86 11.
Op het gelijkvloers bevindt zich een moderne, uitnodigende ruimte met bar en ingerichte keuken, perfect voor een restaurant, café of andere commerciële invulling. De eerste verdieping beschikt over een extra zaal, ideaal als eetruimte, vergaderzaal of coworking space. Verder zijn er aparte toiletten (man/vrouw), een berging en een badkamer met douche-in-bad, lavabomeubel en toilet.
De bovenverdieping biedt twee ruime slaapkamers met de optie om een derde kamer te creëren, wat het pand ook geschikt maakt voor een combinatie van werken en wonen. Extra troeven zijn de zolder (bereikbaar via vaste trap) en een kelder, ideaal als opslagruimte. Buiten is er een ruim terras en ook op de verdieping kan een extra terras gecreëerd worden.
De ligging is ongeëvenaard: in het hart van Aalst, pal naast de winkelstraten, met scholen, het station en parkeergelegenheid op het Esplanadeplein op wandelafstand. Dankzij de centrale verwarming op aardgas en deels dubbele beglazing is dit een energiezuinige keuze.
Aankoop via aandeeloverdracht mogelijk!
Voor meer info en/of een bezoek, contacteer ons via tijl@immotijl.be of 0477 44 86 11.
In detail
Financieel
- prijs
- € 395.000
- beschikbaarheid
- Vanaf akte
- onder btw stelsel
- nee
- kadastraal inkomen
- € 3.574
- opbrengsteigendom
- nee
Ligging
- ligging
- Stadskern
- omgeving school
- ja
- omgeving openbaar vervoer
- ja
- omgeving winkels
- ja
- omgeving autosnelweg
- ja
- omgeving sportcentrum
- ja
Comfort
- aansluiting riolering
- ja
- aansluiting gas
- ja
- aansluiting water
- ja
Gebouw
- bewoonbare opp.
- 251,00 m²
- constructie
- Gesloten
Terrein
- perceel opp.
- 100,00 m²
Energie
- epc unieke code
- 0003060092-KNR-2
- epc klasse
- D
- dubbel glas
- ja
- verwarming
- Gas
- type verwarming
- Individueel
Technieken
- elektriciteit
- ja
- telefoonbekabeling
- ja
Indeling
- kelder
- ja
- keuken
- 25 m²
Stedenbouwkundige informatie & ruimtelijke ordening
- bestemming
- Woongebied
- bouwvergunning
- ja
- verkavelingsvergunning
- nee
- voorkooprecht
- nee
- vonnissen
- nee
- overstromingsgevoeliggebied
- Niet gelegen in een overstromingsgevoelig gebied
- g-score
- A
- p-score
- A
- kadaster sectie
- C
- kadaster nummer
- 997 D4
- kadaster opp.
- 100
- renovatieverplichting
- JaDit pand kan onderheven zijn aan de renovatieverplichting die door de vlaamse overheid word opgelegd voor residentiele gebouwen. Voor meer informatie kan u de website van het Vlaams Energie- en Klimaatagentschap contacteren: https://www.vlaanderen.be/een-woning-kopen/renovatieverplichting-voor-residentiele-gebouwen

















