- 2
- 108 m²
Instapklare burgerwoning met terras in centrum Aalst!
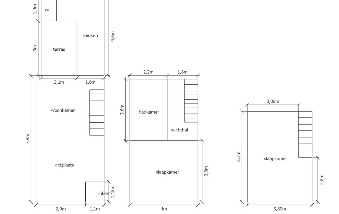
Deze gerenoveerde woning biedt op het gelijkvloers een inkomhal, een gezellige woonkamer met eetplaats een uitgeruste keuken en een apart toilet. Vanuit de keuken is er directe toegang tot een mooi terras.
Op de eerste verdieping bevinden zich een ruime slaapkamer en een moderne badkamer met douche-in-bad, wastafelmeubel en toilet. De tweede verdieping, bereikbaar via een vaste trap, omvat nog een volwaardige slaapkamer.
De woning is voorzien van een combinatie van dubbel glas en hoogrendementsbeglazing, en wordt verwarmd op gas. De elektriciteit is volledig conform de huidige normen, waardoor de woning instapklaar is. Bovendien is ze asbestveilig! Perfect als investering of starterswoning! Ontdek de woning alvast via onze virtuele rondleiding.
Vlakbij het centrum van Aalst, biedt deze locatie alle voorzieningen binnen handbereik. Winkels, scholen, het station en diverse horecazaken bevinden zich op wandelafstand, wat het bruisende stadsleven binnen bereik brengt.
Interesse of graag een bezichtiging? Contacteer june@immotijl.be of bel naar 0486 17 07 61.
In detail
Financieel
- prijs
- € 225.000
- beschikbaarheid
- Vanaf akte
- onder btw stelsel
- nee
- kadastraal inkomen
- € 366
- opbrengsteigendom
- nee
Ligging
- ligging
- Stadskern
- omgeving school
- ja
- omgeving openbaar vervoer
- ja
- omgeving winkels
- ja
- omgeving autosnelweg
- ja
- omgeving sportcentrum
- ja
Comfort
- aansluiting riolering
- ja
- aansluiting gas
- ja
- aansluiting water
- ja
- kabeltelevisie
- ja
Gebouw
- bewoonbare opp.
- 108,00 m²
- constructie
- Gesloten
Energie
- epc
- 291 kWh/m²
- epc unieke code
- 3662700-RES-2
- epc klasse
- C
- dubbel glas
- ja
- elektriciteitskeuring
- ja, conform
- verwarming
- Gas
Technieken
- elektriciteit
- ja
- telefoonbekabeling
- ja
Indeling
- woonkamer
- 27 m²
- keuken
- 7 m², Gedeeltelijk geïnstalleerd
- slaapkamers
- 2
- slaapkamer 1
- 14 m²
- slaapkamer 2
- 18 m²
- terras
- ja
- terras 1
- 6,00 m²
Certificaten
- asbestinventarisattest
- Ja
Stedenbouwkundige informatie & ruimtelijke ordening
- bestemming
- Woongebied
- bouwvergunning
- nee
- verkavelingsvergunning
- nee
- voorkooprecht
- nee
- vonnissen
- nee
- g-score
- B
- p-score
- B
- kadaster sectie
- D
- kadaster nummer
- 900 V2
- kadaster opp.
- 60
- bodemattest
- ja