- 3
- 135 m²
- 280 m²
- garages
Te renoveren woning met veel potentieel en gunstige ligging!
Te renoveren woning met veel potentieel en gunstige ligging nabij het centrum van Aalst!
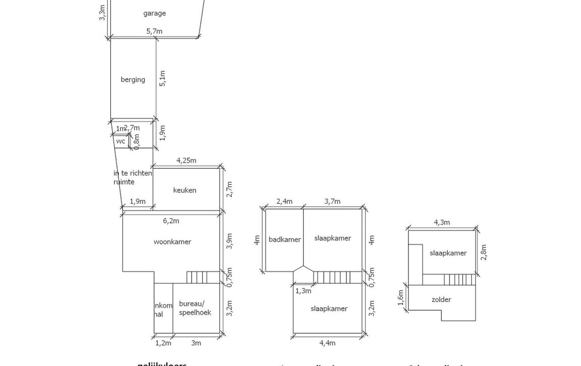
Op het gelijkvloers vindt u een inkomhal, een polyvalente ruimte (bureau, eetkamer of extra slaapkamer), een aangename leefruimte, een keuken, en een bijkomende ruimte met apart toilet.
Op de eerste verdieping bevinden zich twee ruime slaapkamers en een badkamer (ligbad, lavabo en toilet). Via een vaste trap bereikt u de tweede verdieping, waar nog een derde slaapkamer en een zolderruimte aanwezig zijn.
Extra troeven zijn de zuidgerichte tuin en garage.
De renovatieverplichting is van toepassing, maar dankzij de flexibele indeling en verschillende ruimtes zijn er volop mogelijkheden.
Gelegen vlakbij centrum Aalst. Winkels, openbaar vervoer en belangrijke invalswegen bevinden zich op korte afstand. Een ideale opportuniteit voor starters of doe-het-zelvers! Neem gerust contact op met Steven via 0485 52 55 29 of steven@immotijl.be.
In detail
Financieel
- prijs
- € 189.000
- beschikbaarheid
- Vanaf akte
- onder btw stelsel
- nee
- kadastraal inkomen
- € 418
- opbrengsteigendom
- nee
Ligging
- ligging
- Centraal
- omgeving school
- ja
- omgeving openbaar vervoer
- ja
- omgeving winkels
- ja
- omgeving autosnelweg
- ja
- omgeving sportcentrum
- ja
Comfort
- rolluiken
- ja
- aansluiting riolering
- ja
- aansluiting gas
- ja
- aansluiting water
- ja
- kabeltelevisie
- ja
Gebouw
- bewoonbare opp.
- 135,00 m²
- constructie
- Halfopen
- oriëntatie achtergevel
- Zuidoost
Terrein
- perceel opp.
- 280,00 m²
- tuin
- 70,00 m²
Energie
- epc
- 763 kWh/m²
- epc unieke code
- 3635527-RES-1
- epc klasse
- F
- dubbel glas
- ja
- verwarming
- Gas
Technieken
- elektriciteit
- ja
- telefoonbekabeling
- ja
Garages / parking
- garages / parking
- 1
Indeling
- bureau
- 10 m²
- woonkamer
- 25 m²
- keuken
- 11 m², Gedeeltelijk geïnstalleerd
- slaapkamers
- 3
- slaapkamer 1
- 14 m²
- slaapkamer 2
- 14 m²
- slaapkamer 3
- 10 m²
Certificaten
- asbestinventarisattest
- Ja
Downloads
Stedenbouwkundige informatie & ruimtelijke ordening
- bestemming
- Woongebied
- bouwvergunning
- nee
- verkavelingsvergunning
- nee
- voorkooprecht
- nee
- vonnissen
- nee
- g-score
- B
- p-score
- C
- kadaster sectie
- D
- kadaster nummer
- 719 H3
- kadaster opp.
- 280
- renovatieverplichting
- JaDit pand kan onderheven zijn aan de renovatieverplichting die door de vlaamse overheid word opgelegd voor residentiele gebouwen. Voor meer informatie kan u de website van het Vlaams Energie- en Klimaatagentschap contacteren: https://www.vlaanderen.be/een-woning-kopen/renovatieverplichting-voor-residentiele-gebouwen
- bodemattest
- ja











