- 3
- 148 m²
- 190 m²
Vernieuwde woning met tuin te Aalst!
Op zoek naar een instapklare gezinswoning op een toplocatie?
Deze smaakvol gerenoveerde woning combineert comfort, stijl en een gezellige stadstuin.
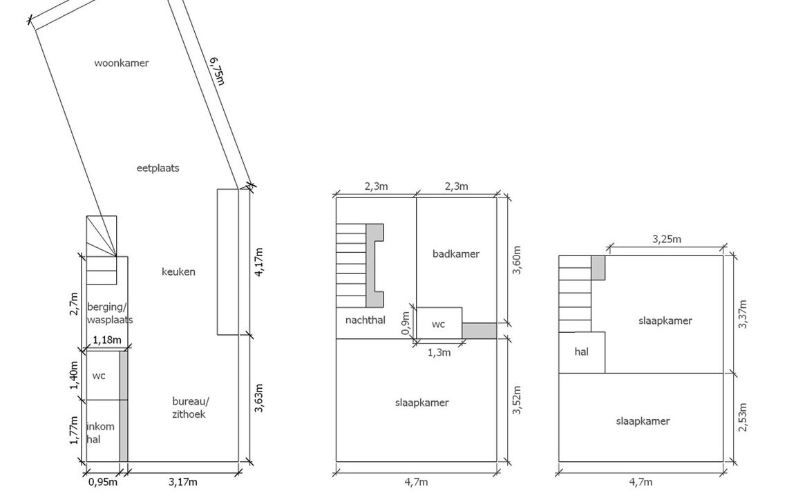
Het gelijkvloers omvat een inkomhal met gastentoilet, een ruime en lichtrijke leefruimte met eetplaats en een open, volledig ingerichte en recent vernieuwde keuken. Aansluitend bevindt zich een praktische bureauhoek, ideaal voor thuiswerk of hobby’s, evenals een berging met aansluiting voor wasmachine.
Op de eerste verdieping bevinden zich een eerste slaapkamer, een badkamer met douche, bad en lavabo, en een apart toilet. De tweede verdieping telt nog twee volwaardige slaapkamers.
Achteraan is er een onderhoudsvriendelijke stadstuin waar het aangenaam vertoeven is.
Gelegen aan de stadsrand van Aalst, op wandelafstand van het station en het centrum, en met een vlotte aansluiting naar verschillende verbindingswegen (E40, Gentsesteenweg).
Bovendien werd de woning volledig gerenoveerd met oog voor detail en hedendaags comfort: hoogrendementsbeglazing, elektriciteit conform AREI, zonnepanelen … dit alles resulteert in een energiezuinig EPC-label A. Neem alvast een kijkje via de virtuele rondleiding!
In detail
Financieel
- prijs
- € 349.000
- beschikbaarheid
- Vanaf akte
- onder btw stelsel
- nee
- opbrengsteigendom
- nee
Ligging
- ligging
- Stadskern
- omgeving school
- ja
- omgeving openbaar vervoer
- ja
- omgeving winkels
- ja
- omgeving autosnelweg
- ja
- omgeving sportcentrum
- ja
Comfort
- videofoon
- ja
- aansluiting riolering
- ja
- aansluiting gas
- ja
- aansluiting water
- ja
- kabeltelevisie
- ja
Gebouw
- bewoonbare opp.
- 148,00 m²
- constructie
- Gesloten
Terrein
- perceel opp.
- 190,00 m²
- tuin
- 90,00 m²
Energie
- epc
- 49 kWh/m²
- epc unieke code
- EP20917
- epc klasse
- A
- dubbel glas
- ja
- elektriciteitskeuring
- ja, conform
- verwarming
- Gas
- type verwarming
- Individueel
- zonnepanelen
- ja,
Technieken
- elektriciteit
- ja
- telefoonbekabeling
- ja
Indeling
- bureau
- 11 m²
- woonkamer
- 25 m²
- keuken
- 13 m², Volledig geïnstalleerd
- slaapkamers
- 3
- slaapkamer 1
- 16 m²
- slaapkamer 2
- 11 m²
- slaapkamer 3
- 11 m²
Stedenbouwkundige informatie & ruimtelijke ordening
- bouwvergunning
- ja
- verkavelingsvergunning
- nee
- voorkooprecht
- nee
- vonnissen
- nee
- g-score
- C
- p-score
- C

















