- 3
- 1.180 m²
- garages
Te renoveren woning met veel potentieel en een grote tuin!
Deze woning, gelegen in een rustige straat nabij het centrum van Gijzegem, biedt een ideale combinatie van een rustige omgeving en een vlotte bereikbaarheid van belangrijke invalswegen.
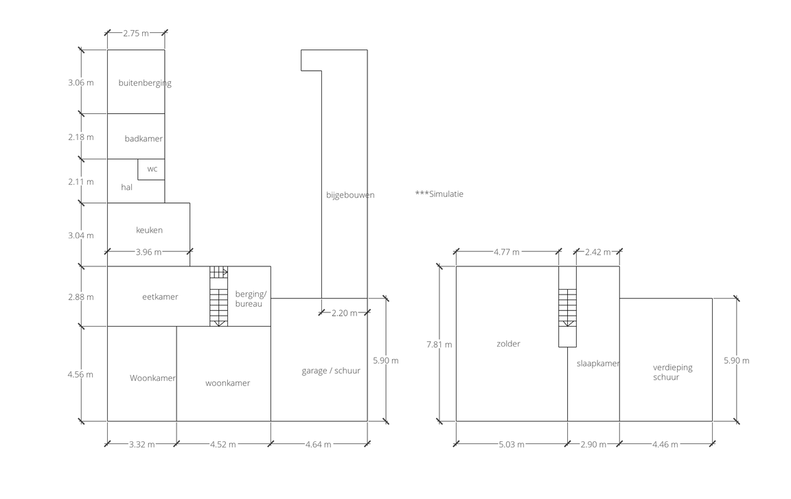
Op het gelijkvloers kom je binnen in een lichtrijke woonkamer die naadloos overgaat in de eetplaats met keuken. Aansluitend bevindt zich een extra ruimte met een apart toilet en een badkamer (lavabo en douche). Daarnaast is er een handige buitenberging, perfect voor fietsen en opslag.
Op de eerste verdieping zijn er twee ruime slaapkamers, met de mogelijkheid om een derde slaapkamer te creëren. Aangrenzend aan de woning bevindt zich een ruime schuur/garage met een extra verdiep, wat tal van mogelijkheden biedt als opslag, werkruimte of hobbyruimte. Verder zijn er nog extra bijgebouwen achter de schuur, ideaal voor bijkomende stockage. De diepe, zonnige tuin maakt het geheel compleet.
Neem alvast een kijkje binnenin via onze virtuele rondleiding!
Op zoek naar een woning met veel mogelijkheden? Plan vandaag nog je bezoek!
Contacteer ons via niels@immotijl.be of 0474 12 56 41.
In detail
Financieel
- prijs
- € 269.000
- beschikbaarheid
- Vanaf akte
- onder btw stelsel
- nee
- kadastraal inkomen
- € 389
- opbrengsteigendom
- nee
Ligging
- ligging
- Rustig
Gebouw
- constructie
- Gesloten
- bouwjaar
- 1918
- gevelbreedte
- 13,50 m
- oriëntatie achtergevel
- Zuid
- oriëntatie voorgevel
- Oost
Terrein
- perceel opp.
- 1.180,00 m²
- breedte aan de straatkant
- 13,50 m
- tuin
- 1.040,00 m²
Energie
- epc
- 762 kWh/m²
- epc unieke code
- 0002601611-RES-1
- epc klasse
- F
- verwarming
- Gaskachels
- type verwarming
- Individueel
Garages / parking
- garages / parking
- 1
- binnenparking
- nee
- buitenparking
- 1
Indeling
- kelder
- ja
- slaapkamers
- 3
- slaapkamer 1
- 18 m²
- slaapkamer 2
- 35 m²
- terras
- ja
- bureau
- ja
- woonkamer
- 35 m²
- eetkamer
- 14 m²
- keuken
- 12 m², Gedeeltelijk geïnstalleerd
Stedenbouwkundige informatie & ruimtelijke ordening
- bouwvergunning
- ja
- verkavelingsvergunning
- nee
- voorkooprecht
- nee
- vonnissen
- nee
- g-score
- B
- p-score
- D
- kadaster sectie
- A
- kadaster nummer
- 41019P2
- kadaster opp.
- 1180
- renovatieverplichting
- JaDit pand kan onderheven zijn aan de renovatieverplichting die door de vlaamse overheid word opgelegd voor residentiele gebouwen. Voor meer informatie kan u de website van het Vlaams Energie- en Klimaatagentschap contacteren: https://www.vlaanderen.be/een-woning-kopen/renovatieverplichting-voor-residentiele-gebouwen


























