Nieuw
Huis
Sint Jobstraat 91, 9300 Aalst
€ 345.000
- 3
- 220 m²
Volledig instapklare woning met tuin in centrum Aalst!
Volledig instapklare woning met tuin te centrum Aalst!
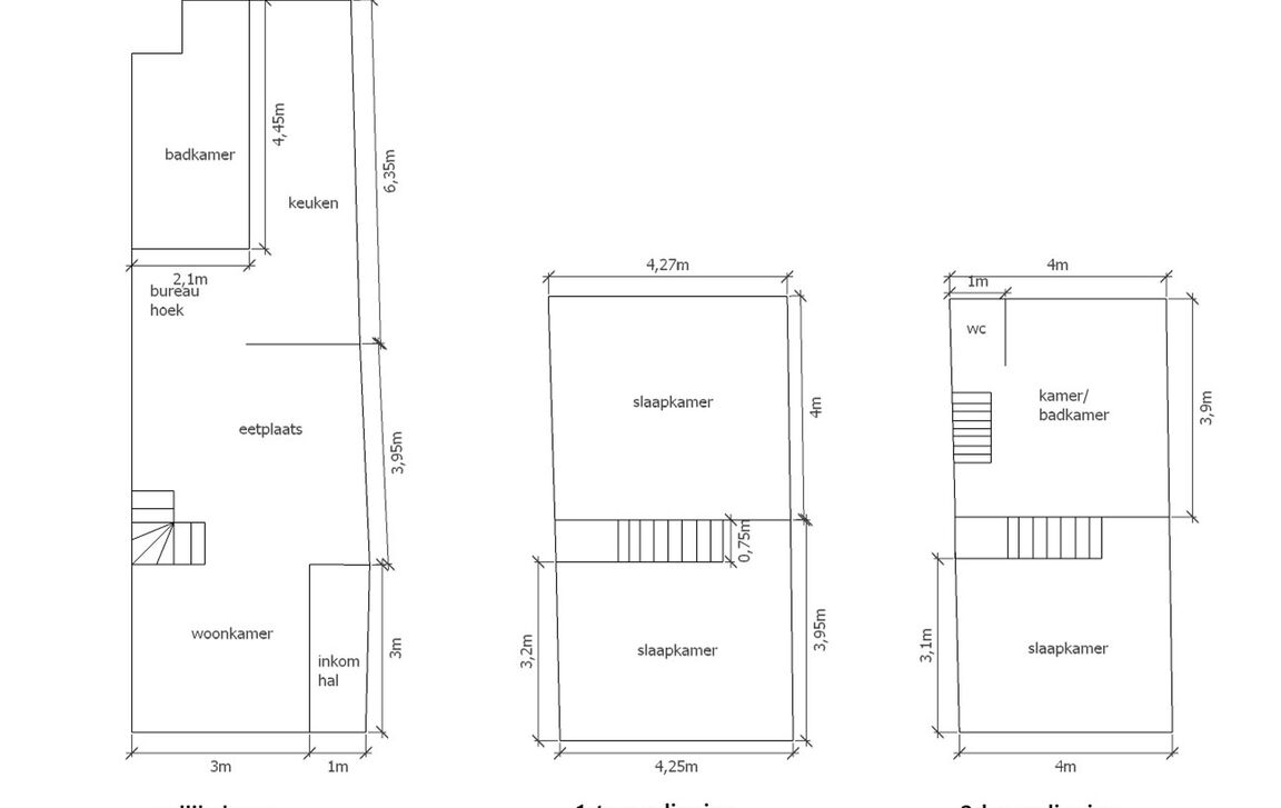
Deze recent vernieuwde woning beschikt op het gelijkvloers over een inkomhal, gezellige woonkamer met eetplaats en bureau, volledig ingerichte keuken en een moderne badkamer (inloopdouche met regendouche, lavabomeubel, toilet en aansluiting wasmachine/droogkast). Op de 1ste verdieping vindt men 2 ruime slaapkamers. Op de tweede verdieping is nog een extra slaapkamer en een 2de badkamer (bad en toilet) terug te vinden.
Achteraan bevindt zich de diepe tuin met charmant terras.
Deze woning is voorzien van alle hedendaags comfort; hoogrendementsbeglazing, CV op aardgas, gunstig EPC, elektriciteit conform AREI, ...
Ideaal gelegen op wandelafstand van het stadscentrum. Alle belangrijke voorzieningen zoals winkels, scholen, openbaar vervoer en recreatiemogelijkheden bevinden zich in de onmiddellijke nabijheid. Dankzij de vlotte verbinding met de N9 en de E40 geniet je van een uitstekende bereikbaarheid richting Brussel, Gent en de omliggende gemeenten.
Voor meer info en/of een bezoek, contacteer ons via steffen@immotijl.be of 053/42 46 99.
Deze recent vernieuwde woning beschikt op het gelijkvloers over een inkomhal, gezellige woonkamer met eetplaats en bureau, volledig ingerichte keuken en een moderne badkamer (inloopdouche met regendouche, lavabomeubel, toilet en aansluiting wasmachine/droogkast). Op de 1ste verdieping vindt men 2 ruime slaapkamers. Op de tweede verdieping is nog een extra slaapkamer en een 2de badkamer (bad en toilet) terug te vinden.
Achteraan bevindt zich de diepe tuin met charmant terras.
Deze woning is voorzien van alle hedendaags comfort; hoogrendementsbeglazing, CV op aardgas, gunstig EPC, elektriciteit conform AREI, ...
Ideaal gelegen op wandelafstand van het stadscentrum. Alle belangrijke voorzieningen zoals winkels, scholen, openbaar vervoer en recreatiemogelijkheden bevinden zich in de onmiddellijke nabijheid. Dankzij de vlotte verbinding met de N9 en de E40 geniet je van een uitstekende bereikbaarheid richting Brussel, Gent en de omliggende gemeenten.
Voor meer info en/of een bezoek, contacteer ons via steffen@immotijl.be of 053/42 46 99.
In detail
Financieel
- prijs
- € 345.000
- beschikbaarheid
- Vanaf akte
- onder btw stelsel
- nee
- kadastraal inkomen
- € 354
- opbrengsteigendom
- nee
Ligging
- ligging
- Stadskern
- omgeving school
- ja
- omgeving openbaar vervoer
- ja
- omgeving winkels
- ja
- omgeving autosnelweg
- ja
- omgeving sportcentrum
- ja
Comfort
- aansluiting riolering
- ja
- aansluiting gas
- ja
- aansluiting water
- ja
- kabeltelevisie
- ja
Gebouw
- constructie
- Gesloten
Terrein
- perceel opp.
- 220,00 m²
- tuin
- ja
Energie
- epc
- 195 kWh/m²
- epc unieke code
- 3709903-RES-1
- epc klasse
- B
- dubbel glas
- ja
- elektriciteitskeuring
- ja, conform
- verwarming
- Gas
- type verwarming
- Individueel
Technieken
- elektriciteit
- ja
- telefoonbekabeling
- ja
Indeling
- bureau
- ja
- woonkamer
- 25 m²
- keuken
- 9 m², Volledig geïnstalleerd
- slaapkamers
- 3
- slaapkamer 1
- 17 m²
- slaapkamer 2
- 14 m²
- slaapkamer 3
- 12 m²
- terras
- ja
Stedenbouwkundige informatie & ruimtelijke ordening
- bestemming
- Woongebied
- bouwvergunning
- ja
- verkavelingsvergunning
- nee
- voorkooprecht
- nee
- vonnissen
- nee
- g-score
- A
- p-score
- A
- kadaster sectie
- A
- kadaster nummer
- 2219 G
- kadaster opp.
- 220





















