- 4
- 120 m²
- 73 m²
Instapklare woning met 4 slpks nabij centrum Aalst!
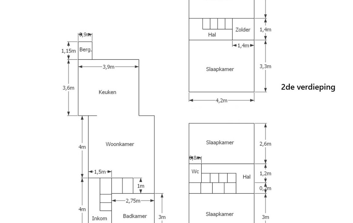
Deze vernieuwde woning beschikt op het gelijkvloers over een inkomhal, gezellige woonkamer, open volledig ingerichte keuken, een berging en badkamer (douche-in-bad, toilet en lavabo). Op de 1ste verdieping bevinden zich 2 ruime slaapkamers en een extra toilet. Op de bovenste verdieping vindt men nog 2 volwaardige slaapkamers en een opbergruimte.
De keuken geeft uit op het zonnige terras, tevens bereikbaar via een doorgang naar achtergelegen baantje. De woning is voorzien van alle comfort; elektriciteit conform AREI, dubbele beglazing, centrale verwarming op aardgas, ...
Deze woning is ideaal als starterswoning of investering!
Gelegen aan de stadsrand van Aalst, doch vlakbij verbindingswegen en met bushalte en station in de nabijheid. De ligging biedt bovendien snelle toegang tot het op- en afrittencomplex richting Ninove, Gent en Brussel. Voor meer info en/of een bezoek ter plaatse, contacteer ons via jonas@immotijl.be of 0477/17 44 20.
In detail
Financieel
- prijs
- € 259.000
- beschikbaarheid
- Af te spreken met eigenaar
- onder btw stelsel
- nee
- kadastraal inkomen
- € 290
- opbrengsteigendom
- nee
Ligging
- ligging
- Centraal
- omgeving school
- ja
- omgeving openbaar vervoer
- ja
- omgeving winkels
- ja
- omgeving autosnelweg
- ja
Comfort
- aansluiting riolering
- ja
- aansluiting gas
- ja
- aansluiting water
- ja
- kabeltelevisie
- ja
Gebouw
- bewoonbare opp.
- 120,00 m²
- constructie
- Gesloten
- oriëntatie achtergevel
- West
Terrein
- perceel opp.
- 73,00 m²
Energie
- epc
- 221 kWh/m²
- epc unieke code
- 3754552-RES-1
- epc klasse
- C
- dubbel glas
- ja
- elektriciteitskeuring
- ja, conform, 08 september 2013
- verwarming
- Gas
Technieken
- elektriciteit
- ja
- telefoonbekabeling
- ja
Indeling
- woonkamer
- 17 m²
- keuken
- 14 m², Volledig geïnstalleerd
- slaapkamers
- 4
- slaapkamer 1
- 13 m²
- slaapkamer 2
- 11 m²
- slaapkamer 3
- 14 m²
- slaapkamer 4
- 12 m²
- terras
- ja
Downloads
Stedenbouwkundige informatie & ruimtelijke ordening
- bestemming
- Woongebied
- bouwvergunning
- ja
- verkavelingsvergunning
- nee
- voorkooprecht
- nee
- vonnissen
- nee
- g-score
- C
- p-score
- C
- kadaster sectie
- D
- kadaster nummer
- 664 W
- kadaster opp.
- 73ca
- bodemattest
- ja












