- 2
- 108 m²
Mooi vernieuwde woning in hartje Aalst!
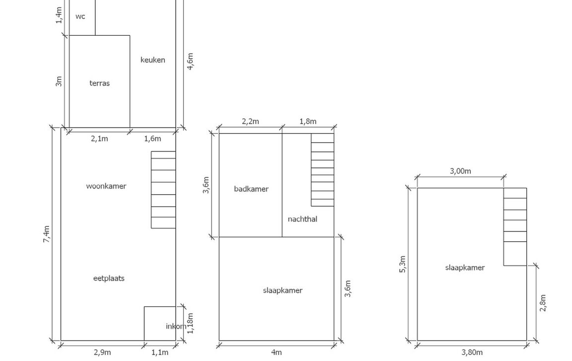
Deze volledig instapklare woning beschikt op het gelijkvloers een inkomhal, een gezellige woonkamer met eetplaats, een ingerichte keuken en een apart toilet. Op de eerste verdieping vindt men een ruime slaapkamer en een moderne badkamer (douche-in-bad, wastafelmeubel en toilet). Op de bovenste verdieping bevindt zich de extra slaapkamer (eventueel op te splitsen in 2 kinderkamers).
Grenzend aan de keuken en woonkamer vindt men het charmant terras.
Deze woning is voorzien van o.a. dubbele beglazing en hoogrendementsbeglazing, verwarming op aardgas, elektriciteit conform AREI, asbestveilig attest, ... Neem gerust al eens een kijkje binnenin via onze virtuele rondleiding.
Deze woning is gunstig gelegen op wandelafstand van het centrum van Aalst, met in de directe omgeving winkels, scholen, het station en gezellige horecazaken. Zo geniet je van het bruisende stadsleven binnen handbereik — ideaal als investering of als starterswoning! Interesse of graag een bezichtiging gewenst? Contacteer june@immotijl.be of bel naar 0486 17 07 61.
In detail
Financieel
- prijs
- € 215.000
- beschikbaarheid
- Vanaf akte
- onder btw stelsel
- nee
- kadastraal inkomen
- € 366
- opbrengsteigendom
- nee
Ligging
- ligging
- Stadskern
- omgeving school
- ja
- omgeving openbaar vervoer
- ja
- omgeving winkels
- ja
- omgeving autosnelweg
- ja
- omgeving sportcentrum
- ja
Comfort
- aansluiting riolering
- ja
- aansluiting gas
- ja
- aansluiting water
- ja
- kabeltelevisie
- ja
Gebouw
- bewoonbare opp.
- 108,00 m²
- constructie
- Gesloten
Energie
- epc
- 291 kWh/m²
- epc unieke code
- 3662700-RES-2
- epc klasse
- C
- dubbel glas
- ja
- elektriciteitskeuring
- ja, conform
- verwarming
- Gas
- type verwarming
- Individueel
Technieken
- elektriciteit
- ja
- telefoonbekabeling
- ja
Indeling
- woonkamer
- 27 m²
- keuken
- 7 m², Gedeeltelijk geïnstalleerd
- slaapkamers
- 2
- slaapkamer 1
- 14 m²
- slaapkamer 2
- 18 m²
- terras
- ja
Certificaten
- asbestinventarisattest
- Ja
Stedenbouwkundige informatie & ruimtelijke ordening
- bestemming
- Woongebied
- bouwvergunning
- nee
- verkavelingsvergunning
- nee
- voorkooprecht
- nee
- vonnissen
- nee
- g-score
- B
- p-score
- B
- kadaster sectie
- D
- kadaster nummer
- 900 V2
- bodemattest
- ja











