- 3
- 142 m²
- 140 m²
Gezinswoning op toplocatie in Aalst!
Deze rustig gelegen gezinswoning biedt tal van mogelijkheden en kan volledig naar eigen smaak worden gerenoveerd.
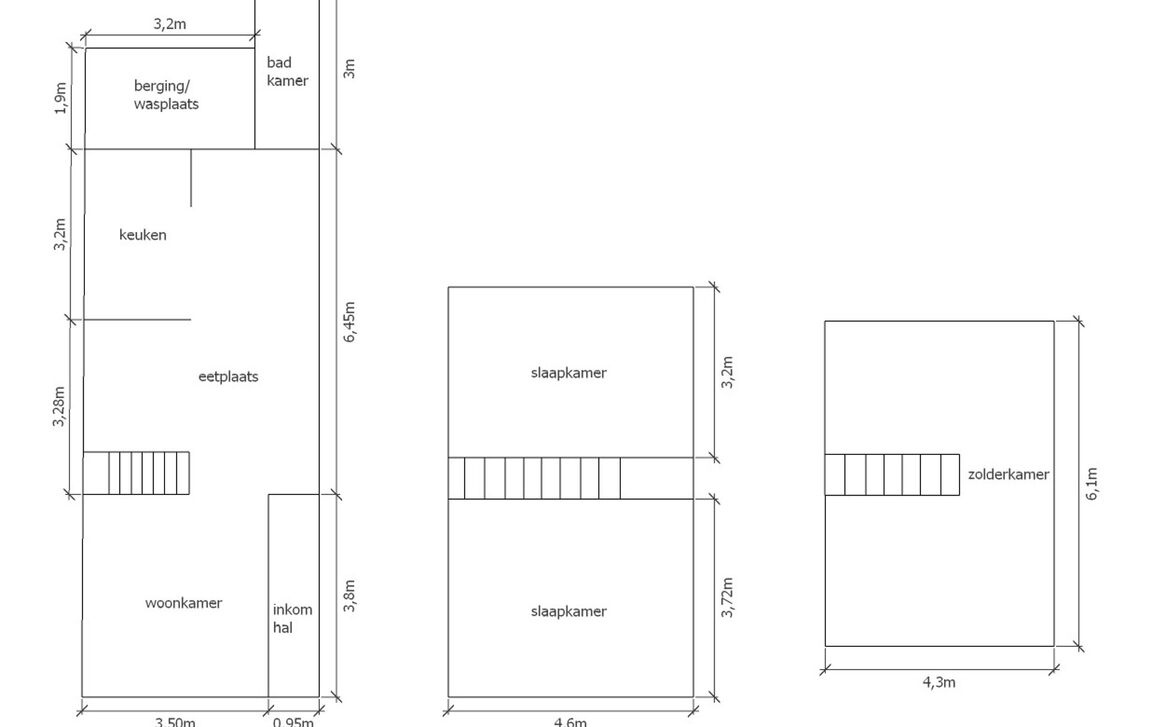
Op het gelijkvloers vindt u een inkomhal, woonkamer met eetplaats, keuken, een berging/wasplaats en een badkamer uitgerust met toilet, lavabo en douche.
De eerste verdieping beschikt over twee ruime slaapkamers. Op de tweede verdieping bevindt zich een derde slaapkamer, bereikbaar via een vaste trap. Deze ruimte kan eenvoudig worden opgesplitst in een slaapkamer met dressing of bureau.
Verder beschikt de woning over een terras, een aangename tuin en een praktische tuinberging. De woning is reeds voorzien van dubbele beglazing en centrale verwarming op aardgas.
De woning beschikt reeds over hoogrendementsbeglazing en rolluiken, wat een mooie meerwaarde is, maar biedt verder nog volop mogelijkheden om naar eigen wensen te mederniseren.
Gelegen in een kindvriendelijke buurt met een speelplein voor de deur, op wandelafstand van het station en op korte afstand van de E40 richting Brussel en Gent. Contacteer ons voor meer informatie of een bezoek ter plaatse via june@immotijl.be of 0486 17 07 61.
In detail
Financieel
- prijs
- € 239.000
- beschikbaarheid
- Vanaf akte
- onder btw stelsel
- nee
- kadastraal inkomen
- € 448
- opbrengsteigendom
- nee
Ligging
- ligging
- Stadsrand
- omgeving school
- ja
- omgeving openbaar vervoer
- ja
- omgeving winkels
- ja
- omgeving autosnelweg
- ja
Comfort
- rolluiken
- ja
- aansluiting riolering
- ja
- aansluiting water
- ja
- kabeltelevisie
- ja
Gebouw
- bewoonbare opp.
- 142,00 m²
- constructie
- Gesloten
Terrein
- perceel opp.
- 140,00 m²
- tuin
- 60,00 m²
Energie
- epc
- 378 kWh/m²
- epc unieke code
- 3787634-RES-1
- epc klasse
- D
- dubbel glas
- ja
- verwarming
- Gaskachels
Technieken
- elektriciteit
- ja
- telefoonbekabeling
- ja
Indeling
- woonkamer
- 26 m²
- keuken
- 14 m², Gedeeltelijk geïnstalleerd
- slaapkamers
- 3
- slaapkamer 1
- 17 m²
- slaapkamer 2
- 14 m²
- slaapkamer 3
- 26 m²
- terras
- ja
Stedenbouwkundige informatie & ruimtelijke ordening
- bestemming
- Woongebied
- bouwvergunning
- nee
- verkavelingsvergunning
- nee
- voorkooprecht
- ja
- vonnissen
- nee
- g-score
- D
- p-score
- D
- kadaster sectie
- C
- kadaster nummer
- 962 E6
- kadaster opp.
- 140
- bodemattest
- ja
















