- 2
- 124 m²
- 225 m²
Woning met in te richten zolder en zonnige westtuin!
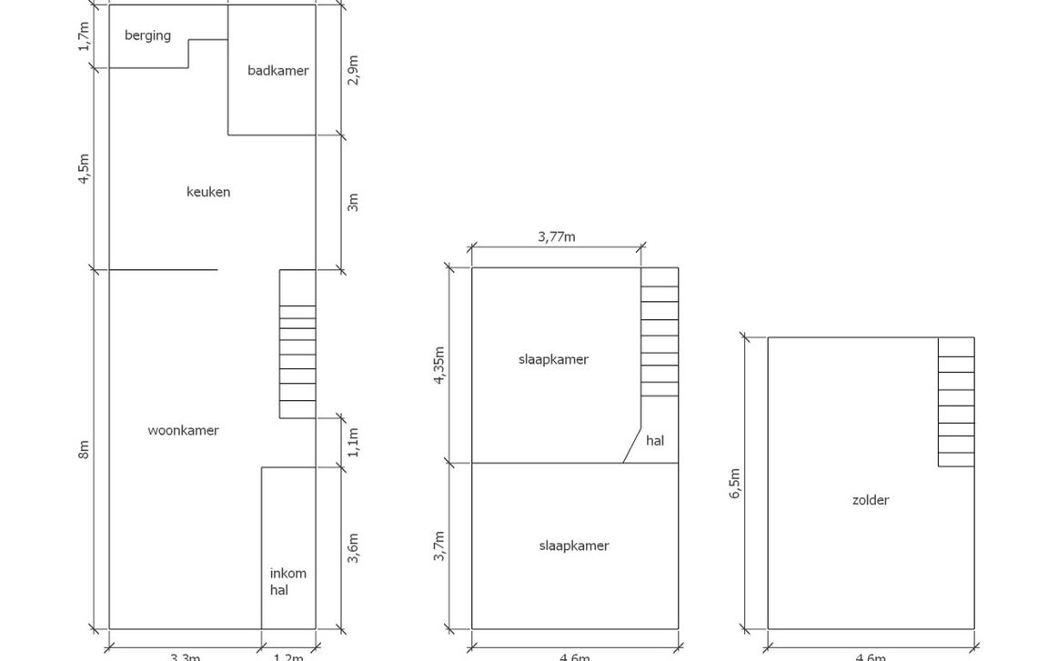
Deze te renoveren woning biedt heel wat potentieel voor wie op zoek is naar een project op een gunstige ligging. Op het gelijkvloers betreedt u de woning via de inkomhal. Verder vindt u een gezellige leefruimte met eetplaats, een ruime keuken en een badkamer uitgerust met bad, toilet en lavabo.
De eerste verdieping omvat twee comfortabele slaapkamers. Via een vaste trap bereikt u de zolderverdieping, die momenteel niet is ingericht maar tal van mogelijkheden biedt voor het creëren van extra slaapkamers, een bureau of hobbyruimte.
De achterliggende tuin geniet van een ideale westoriëntatie, perfect om in de namiddag en avond van de zon te genieten.
De woning beschikt deels over dubbele beglazing en rolluiken en wordt verwarmd met gaskachels. Hoewel de woning renovatie vereist, geldt er geen renovatieverplichting.
Gelegen in een rustige omgeving, op korte afstand van winkels, scholen en het stadscentrum, vormt deze woning een interessante opportuniteit voor wie op zoek is naar een project met potentieel op een gunstige ligging. Bovendien kan u vlot parkeren in de straat en bevindt de woning zich vlakbij een aangenaam stadspark.
Contacteer ons voor meer informatie of een bezoek ter plaatse via june@immotijl.be of 0486 17 07 61.
In detail
Financieel
- prijs
- € 179.000
- beschikbaarheid
- Vanaf akte
- onder btw stelsel
- nee
- kadastraal inkomen
- € 352
- opbrengsteigendom
- nee
Ligging
- ligging
- Stadsrand
Comfort
- rolluiken
- ja
Gebouw
- bewoonbare opp.
- 124,00 m²
- constructie
- Gesloten
- verdieping(en)
- 2
- oriëntatie achtergevel
- West
Terrein
- perceel opp.
- 225,00 m²
- tuin
- 100,00 m²
Energie
- epc
- 340 kWh/m²
- epc unieke code
- 3849231-RES-1
- epc klasse
- D
- dubbel glas
- ja
- verwarming
- Gaskachels
Indeling
- woonkamer
- 26 m²
- keuken
- 15 m², Gedeeltelijk geïnstalleerd
- slaapkamers
- 2
- slaapkamer 1
- 16 m²
- slaapkamer 2
- 17 m²
Downloads
Stedenbouwkundige informatie & ruimtelijke ordening
- bestemming
- Woongebied
- bouwvergunning
- nee
- verkavelingsvergunning
- nee
- voorkooprecht
- nee
- vonnissen
- nee
- g-score
- D
- p-score
- D
- bestuursmaatregelen in het maatregelenregister
- nee
- kadaster sectie
- E
- kadaster nummer
- 43 Z4
- kadaster opp.
- 225
- renovatieverplichting
- JaDit pand kan onderheven zijn aan de renovatieverplichting die door de vlaamse overheid word opgelegd voor residentiele gebouwen. Voor meer informatie kan u de website van het Vlaams Energie- en Klimaatagentschap contacteren: https://www.vlaanderen.be/een-woning-kopen/renovatieverplichting-voor-residentiele-gebouwen
- bodemattest
- ja









