- 3
- 154 m²
- 245 m²
Woning met zonnige tuin te Hofstade - Aalst!
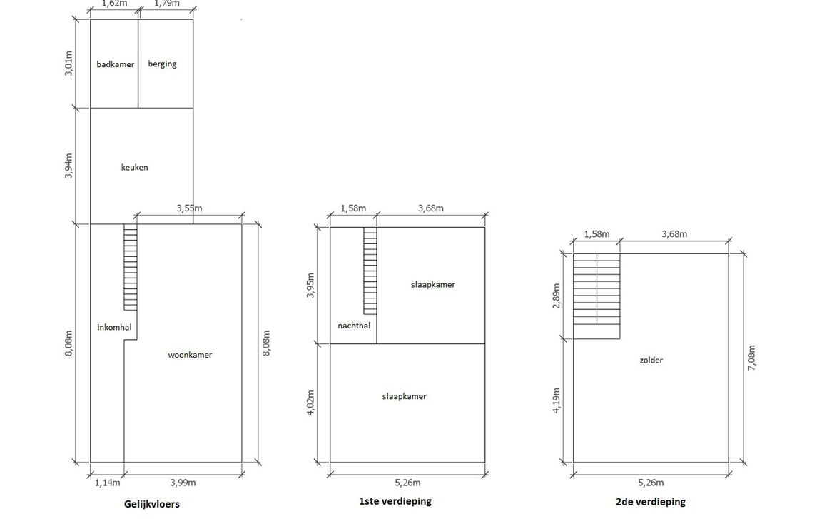
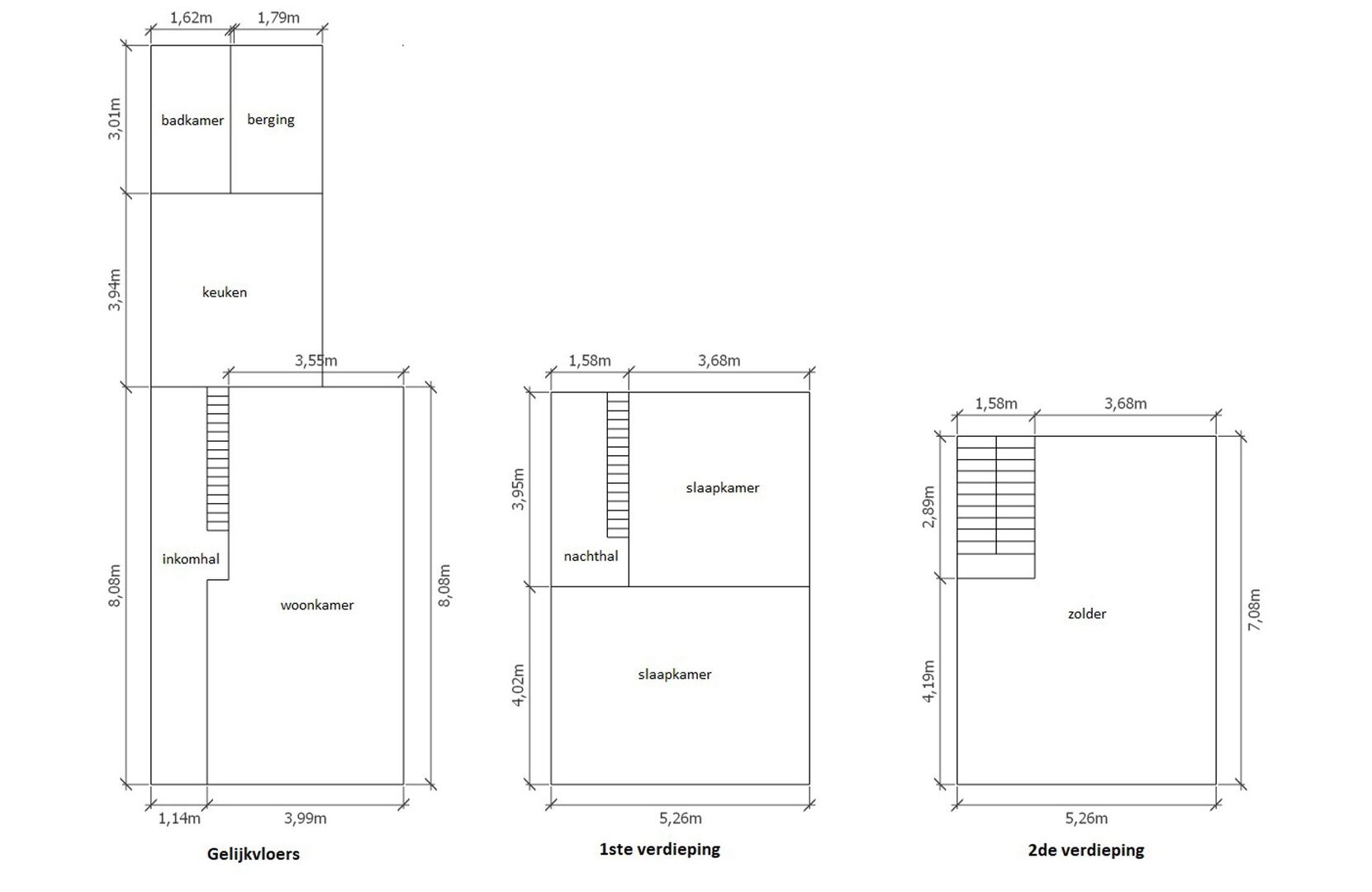
Deze charmante woning beschikt op het gelijkvloers over een inkomhal, gezellige woonkamer met eetplaats, ruime keuken, badkamer (douche-in-bad, lavabo en toilet) en handige berging.
Op de 1ste verdieping vindt men 2 mooie slaapkamers. Er is tevens een zolder aanwezig (bereikbaar via vaste trap) die nog extra uitbreidingsmogelijkheden biedt. Verder is er een praktische kelder, ideaal als opslagruimte.
Achteraan is er een terras met aansluitend een ruime, zuidgerichte tuin. De tuin is bovendien ook bereikbaar via een achterliggende doorgang met uitweg naar de straat, wat een praktische meerwaarde biedt.
De woning vereist renovatie, maar biedt een mooie opportuniteit om ze volledig naar eigen smaak en wensen in te richten.
Ideaal gelegen, vlakbij het centrum van Hofstade en in de directe nabijheid van scholen, winkels en andere voorzieningen. Bovendien bevindt de woning zich op korte afstand van Aalst en het station, met een vlotte verbinding richting Brussel en Gent. Ook de bereikbaarheid naar Dendermonde en Aalst is een extra troef.
Wenst u graag een bezoek of meer informatie? Contacteer ons gerust via lara@immotijl.be of 0489 59 18 87.
In detail
Financieel
- prijs
- € 225.000
- beschikbaarheid
- Vanaf akte
- onder btw stelsel
- nee
- kadastraal inkomen
- € 436
- opbrengsteigendom
- nee
Ligging
- ligging
- Woonkern
- omgeving school
- ja
- omgeving openbaar vervoer
- ja
- omgeving winkels
- ja
- omgeving autosnelweg
- ja
- omgeving sportcentrum
- ja
Comfort
- rolluiken
- ja
- aansluiting riolering
- ja
- aansluiting gas
- ja
- aansluiting water
- ja
- kabeltelevisie
- ja
Gebouw
- bewoonbare opp.
- 154,00 m²
- constructie
- Gesloten
- oriëntatie achtergevel
- Zuid
Terrein
- perceel opp.
- 245,00 m²
- tuin
- 145,00 m²
Energie
- epc
- 499 kWh/m²
- epc unieke code
- 0003824078-RES-1
- epc klasse
- E
- dubbel glas
- ja
- verwarming
- Gaskachels
Technieken
- elektriciteit
- ja
- telefoonbekabeling
- ja
Indeling
- kelder
- ja
- slaapkamers
- 3
- slaapkamer 1
- 21 m²
- slaapkamer 2
- 14 m²
- terras
- ja
- woonkamer
- 30 m²
- keuken
- 14 m²
Stedenbouwkundige informatie & ruimtelijke ordening
- bestemming
- Woongebied
- bouwvergunning
- nee
- verkavelingsvergunning
- nee
- voorkooprecht
- nee
- vonnissen
- nee
- g-score
- A
- p-score
- A
- bestuursmaatregelen in het maatregelenregister
- nee
- kadaster sectie
- B
- kadaster nummer
- 506 C2
- kadaster opp.
- 245
- renovatieverplichting
- JaDit pand kan onderheven zijn aan de renovatieverplichting die door de vlaamse overheid word opgelegd voor residentiele gebouwen. Voor meer informatie kan u de website van het Vlaams Energie- en Klimaatagentschap contacteren: https://www.vlaanderen.be/een-woning-kopen/renovatieverplichting-voor-residentiele-gebouwen
- bodemattest
- ja














