Nieuw
Huis
Jetsesteenweg 312, 1000 Brussel
€ 349.000
  • 4
  • 161 m²
  • 79 m²

Veelzijdige woning met potentieel op topligging!

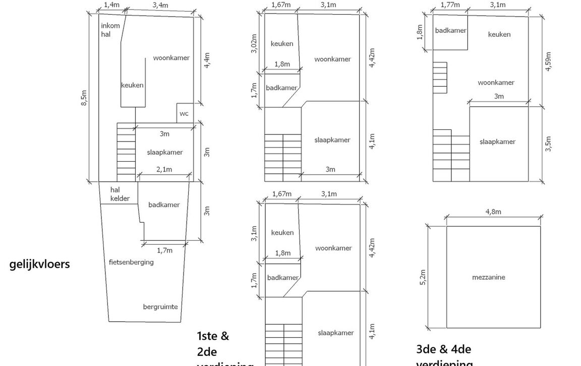
Op het gelijkvloers van deze woning bevindt zich een inkomhal, leefruimte met open keuken, een badkamer, een apart toilet en één slaapkamer.
Achteraan is er bovendien een handige berging/fietsenstalling voorzien en het pand beschikt eveneens over een ruime kelder.

De eerste verdieping en tweede verdieping beschikken elk over een volwaardige leefruimte met eigen keuken, badkamer en slaapkamer.

De bovenste verdieping biedt nog een bijkomende leefruimte, één slaapkamer, een keuken en een badkamer, aangevuld met een gezellige mezzanine.

Dankzij de flexibele indeling, het ruime woonvolume en de aanwezigheid van voorzieningen op elke verdieping, biedt deze woning tal van mogelijkheden!

Het gebouw is momenteel opgedeeld in 4 niet-vergunde wooneenheden (verhuurd).

De energieprestaties bedragen respectievelijk 503 kWh/m²/jaar, 275 kWh/m²/jaar, 258 kWh/m²/jaar en 1279 kWh/m²/jaar.


Ideaal gelegen vlakbij het station Simonis, in de nabijheid van talrijke winkels, scholen, en op korte afstand van het stadscentrum.

Voor meer info en/of een bezoek, contacteer Steven via steven@immotijl.be of 0485 52 55 29.

In detail

Financieel

prijs
€ 349.000
beschikbaarheid
Vanaf akte
onder btw stelsel
nee
kadastraal inkomen
€ 798
opbrengsteigendom
nee

Ligging

ligging
Stadskern
omgeving school
ja
omgeving openbaar vervoer
ja
omgeving winkels
ja
omgeving autosnelweg
ja
omgeving sportcentrum
ja

Comfort

intercom
ja
aansluiting riolering
ja
aansluiting water
ja
kabeltelevisie
ja

Gebouw

bewoonbare opp.
161,00 m²
constructie
Gesloten
verdieping(en)
3

Terrein

perceel opp.
79,00 m²

Energie

A< 45
B46 - 95
C96 - 150
D151 - 210
gem.
E211 - 275
F276 - 345
G> 345
G
epc
1279 kWh/m²
epc unieke code
748824-01-1
epc klasse
G
dubbel glas
ja
elektriciteitskeuring
ja, niet conform
type verwarming
Collectief

Technieken

elektriciteit
ja
telefoonbekabeling
ja

Indeling

kelder
ja
slaapkamers
4
slaapkamer 1
12 m²
slaapkamer 2
12 m²
slaapkamer 3
12 m²
slaapkamer 4
9 m²
keuken
ja

Stedenbouwkundige informatie & ruimtelijke ordening

bouwvergunning
nee
verkavelingsvergunning
nee
voorkooprecht
nee
vonnissen
nee
kadaster sectie
B
kadaster nummer
62 3GP
kadaster opp.
79
renovatieverplichting
JaDit pand kan onderheven zijn aan de renovatieverplichting die door de vlaamse overheid word opgelegd voor residentiele gebouwen. Voor meer informatie kan u de website van het Vlaams Energie- en Klimaatagentschap contacteren: https://www.vlaanderen.be/een-woning-kopen/renovatieverplichting-voor-residentiele-gebouwen
bodemattest
ja
Uw makelaar
515 982
Steven De Petter
0485 52 55 29