- 2
- 182 m²
- 290 m²
- garages
Instapklare gezinswoning met terras en tuin!
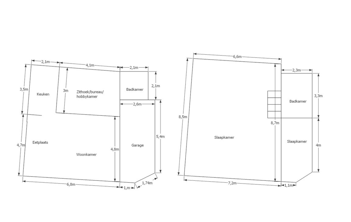
Deze halfopen woning beschikt op het gelijkvloers over een gezellige woonkamer met eetplaats, volledig ingerichte keuken, een zithoek of bureau/hobbyruimte en een badkamer met douche, lavabo en toilet. Een extra troef is de inpandige garage!
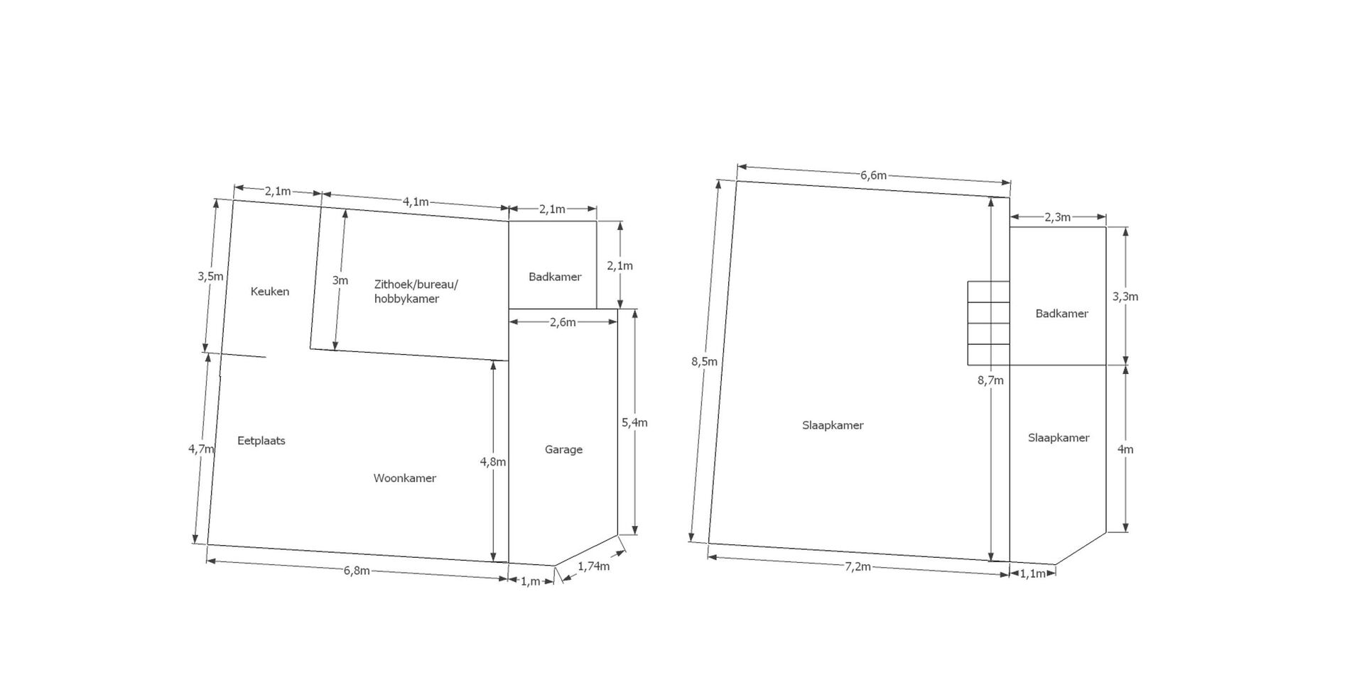
Op de eerste verdieping bevindt zich de ruime masterbedroom van net geen 60 m², die ideaal is om eventueel op te delen in meerdere slaapkamers. Daarnaast zijn er op deze verdieping nog een extra slaapkamer en een tweede badkamer met bad, lavabo en toilet.
Achteraan beschikt de woning over een terras met aansluitend een diepe, zuidgerichte tuin en tuinberging. De tuin is bovendien toegankelijk via een zijpoort, wat handig is voor het rechtstreeks binnenbrengen van fietsen of tuinmateriaal.
De woning is voorzien van centrale verwarming op aardgas, hoogrendementsbeglazing, gunstig EPC, en is asbestveilig met een conforme elektrische installatie. Het gelijkvloers is bovendien uitgerust met elektrische rolluiken.
Goed gelegen in Denderleeuw, nabij belangrijke invalswegen en met een vlotte bereikbaarheid naar Liedekerke, Aalst en Ninove.
Voor meer info en/of een bezoek, contacteer Jonas via jonas@immotijl.be of 0477/17 44 20.
In detail
Financieel
- prijs
- € 279.000
- beschikbaarheid
- 01 februari 2026
- onder btw stelsel
- nee
- kadastraal inkomen
- € 290
- opbrengsteigendom
- nee
Ligging
- ligging
- Centraal
- omgeving school
- ja
- omgeving openbaar vervoer
- ja
- omgeving winkels
- ja
- omgeving autosnelweg
- ja
Comfort
- rolluiken
- ja
- aansluiting riolering
- ja
- aansluiting gas
- ja
- aansluiting water
- ja
- kabeltelevisie
- ja
Gebouw
- bewoonbare opp.
- 182,00 m²
- constructie
- Halfopen
- renovatiejaar
- 2012
- oriëntatie achtergevel
- Zuid
Terrein
- perceel opp.
- 290,00 m²
- tuin
- 105,00 m²
Energie
- epc
- 222 kWh/m²
- epc unieke code
- 0002733751-RES-1
- epc klasse
- C
- dubbel glas
- ja
- elektriciteitskeuring
- ja, conform
- verwarming
- Gas
- type verwarming
- Individueel
Technieken
- elektriciteit
- ja
- telefoonbekabeling
- ja
Garages / parking
- garages / parking
- 1
- binnenparking
- 1
Indeling
- kelder
- ja
- slaapkamers
- 2
- slaapkamer 1
- 57 m²
- slaapkamer 2
- 12 m²
- slaapkamer 3
- 10 m²
- terras
- ja
- bureau
- ja
- woonkamer
- 32 m²
- keuken
- 7 m², Geïnstalleerd
Certificaten
- asbestinventarisattest
- Ja
Downloads
Stedenbouwkundige informatie & ruimtelijke ordening
- bestemming
- Woongebied
- bouwvergunning
- nee
- verkavelingsvergunning
- nee
- voorkooprecht
- nee
- vonnissen
- nee
- overstromingsgevoeliggebied
- Niet gelegen in een overstromingsgevoelig gebied
- g-score
- A
- p-score
- A
- kadaster sectie
- A
- kadaster nummer
- 639 F
- kadaster opp.
- 290