Nieuw
Huis
J. Verhavertstraat 41, 9470 Denderleeuw
€ 650.000
- 4
- 379 m²
- 446 m²
- garages
Ruime, luxueus afgewerkte woning met 4kamers te Denderleeuw!
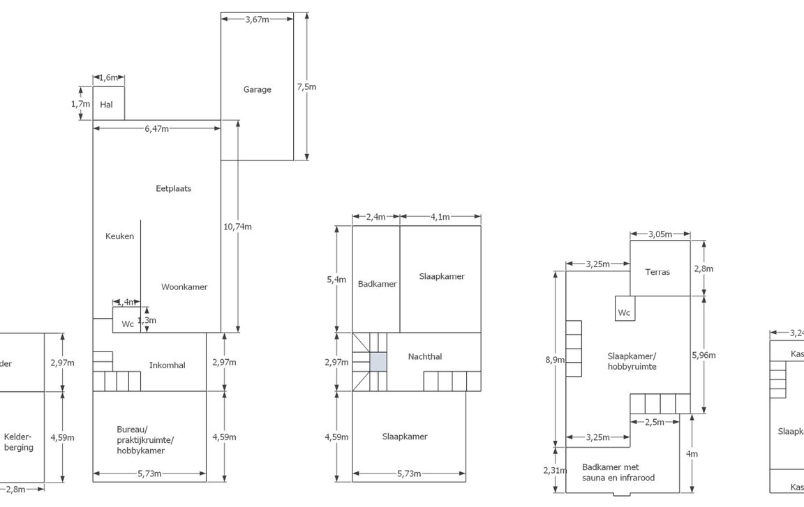
Deze unieke woning beschikt op het gelijkvloers over een imposante inkomhal met gastentoilet, een ruime woonkamer voorzien van sfeerhaard met aansluitend de lichtrijke eetplaats en volledig ingerichte open keuken. Hier geniet je van duurzame, hoogwaardige toestellen (AEG, Bosch), waaronder een inductiekookplaat, vaatwas en ingebouwde oven. Er is tevens een bureau/hobbykamer aanwezig, ideaal voor thuiswerk of voor het uitoefenen van een vrij of zelfstandig beroep.
Op de 1ste verdieping (voorzien van een prachtige parketvloer) vindt men 2 ruime slaapkamers en een badkamer met inloopdouche, lavabomeubel en toilet. De 2de verdieping is ingericht als luxueuze ontspanningsruimte of derde slaapkamer, voorzien van een sfeerhaard, een extra toilet en een complete wellnessbadkamer (incl. infrarooddouche met zonnebankfunctie, een sauna, een massagebad en een stijlvol lavabomeubel.
Op de bovenste verdieping bevindt zich nog een extra slaapkamer op mezzanine-niveau, die ook als hobbyruimte of logeerkamer kan dienen.
Buiten biedt deze woning eveneens tal van troeven: een ruime oprit met plaats voor drie wagens, een inpandige garage met automatische poort en een aangelegde tuin met een ruim zonneterras waar het aangenaam vertoeven is.
Op de 1ste verdieping (voorzien van een prachtige parketvloer) vindt men 2 ruime slaapkamers en een badkamer met inloopdouche, lavabomeubel en toilet. De 2de verdieping is ingericht als luxueuze ontspanningsruimte of derde slaapkamer, voorzien van een sfeerhaard, een extra toilet en een complete wellnessbadkamer (incl. infrarooddouche met zonnebankfunctie, een sauna, een massagebad en een stijlvol lavabomeubel.
Op de bovenste verdieping bevindt zich nog een extra slaapkamer op mezzanine-niveau, die ook als hobbyruimte of logeerkamer kan dienen.
Buiten biedt deze woning eveneens tal van troeven: een ruime oprit met plaats voor drie wagens, een inpandige garage met automatische poort en een aangelegde tuin met een ruim zonneterras waar het aangenaam vertoeven is.
Technische pluspunten zijn er in overvloed: domotica, automatische rolluiken, buitenverlichting met timer, ingebouwd surroundsysteem, vloerverwarming in de leefruimte met afwerking in blauwe steen, centrale verwarming op aardgas en maar liefst 46 zonnepanelen, inclusief groenestroomcertificaten. Tot slot is er een droge, praktische kelder.
Dankzij de indeling, het aantal kamers en de aanwezige voorzieningen is deze woning bijzonder geschikt voor wie op zoek is naar ruimte voor thuiswerk, een praktijk of bureau aan huis, een zorgsituatie of een toekomstgerichte woonvorm.
Goed gelegen in een rustige straat nabij het centrum van Denderleeuw! Voor meer info en/of een bezoek, contacteer Tijl via tijl@immotijl.be of 0477 44 86 11.
In detail
Financieel
- prijs
- € 650.000
- beschikbaarheid
- Vanaf akte
- onder btw stelsel
- nee
- opbrengsteigendom
- nee
Ligging
- ligging
- Woonkern
- omgeving school
- ja
- omgeving openbaar vervoer
- ja
- omgeving winkels
- ja
- omgeving autosnelweg
- ja
- omgeving sportcentrum
- ja
Comfort
- videofoon
- ja
- rolluiken
- ja
- aansluiting riolering
- ja
- aansluiting water
- ja
- kabeltelevisie
- ja
Gebouw
- bewoonbare opp.
- 379,00 m²
- constructie
- Halfopen
- bouwjaar
- 1959
- verdieping(en)
- 3
Terrein
- perceel opp.
- 446,00 m²
- tuin
- ja
Energie
- epc
- 131 kWh/m²
- epc unieke code
- 3671466-RES-1
- epc klasse
- B
- dubbel glas
- ja
- zonnepanelen
- ja, Fotovoltaïsche
Technieken
- elektriciteit
- ja
- telefoonbekabeling
- ja
Garages / parking
- garages / parking
- 1
- binnenparking
- 1
- buitenparking
- 3
Beveiliging
- bewaking
- ja
Indeling
- kelder
- ja
- slaapkamers
- 4
- slaapkamer 1
- 22 m²
- slaapkamer 2
- 26 m²
- slaapkamer 3
- 45 m²
- slaapkamer 4
- 17 m²
- terras
- ja
- bureau
- 26 m²
- woonkamer
- 55 m²
- keuken
- 10 m², Volledig geïnstalleerd
Certificaten
- asbestinventarisattest
- Ja
Downloads
Stedenbouwkundige informatie & ruimtelijke ordening
- bestemming
- Woongebied
- bouwvergunning
- ja
- verkavelingsvergunning
- ja
- voorkooprecht
- nee
- vonnissen
- nee
- g-score
- A
- p-score
- A
- kadaster sectie
- A
- kadaster nummer
- 170 G
- kadaster opp.
- 446
- bodemattest
- ja































