- 3
- 150 m²
- 175 m²
- garages
Gezinswoning met terras en garage te Denderleeuw!
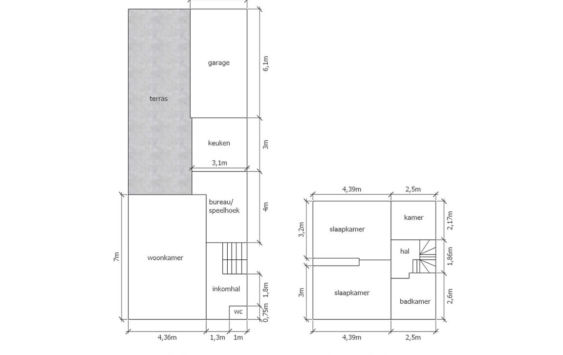
Deze op te frissen woning beschikt op het gelijkvloers over een inkomhal met gastentoilet, een lichtrijke woonkamer met eetruimte, een bureau of speelhoek en een keuken. Vanuit de keuken is er toegang tot het aangelegd terras en tot de ruime inpandige garage met automatische poort. De garage is bereikbaar via de achterzijde, en bovendien is er extra parkeergelegenheid vóór de garage.
Op de eerste verdieping bevinden zich drie (slaap)kamers en een badkamer met bad, toilet en lavabo. Via een valluik is de zolder bereikbaar. Een bijkomende troef is de kelder, ideaal als extra opslagruimte.
De woning is uitgerust met dubbele beglazing (deels voorzien van vliegenramen), centrale verwarming op aardgas en rolluiken. Het dak werd recent vernieuwd. Bovendien geldt hier géén renovatieverplichting.
Dankzij de topligging in Denderleeuw bevinden station, winkels en scholen zich op wandelafstand.
Voor meer informatie of om een bezoek in te plannen, contacteer ons via jonas@immotijl.be of bel 0477 17 44 20.
In detail
Financieel
- prijs
- € 249.000
- beschikbaarheid
- Vanaf akte
- onder btw stelsel
- nee
- kadastraal inkomen
- € 637
- opbrengsteigendom
- nee
Ligging
- ligging
- Woonkern
- omgeving school
- ja
- omgeving openbaar vervoer
- ja
- omgeving winkels
- ja
- omgeving autosnelweg
- ja
- omgeving sportcentrum
- ja
Comfort
- rolluiken
- ja
- aansluiting riolering
- ja
- aansluiting gas
- ja
- aansluiting water
- ja
- kabeltelevisie
- ja
Gebouw
- bewoonbare opp.
- 150,00 m²
- constructie
- Gesloten
- bouwjaar
- 1960
Terrein
- perceel opp.
- 175,00 m²
Energie
- epc
- 370 kWh/m²
- epc unieke code
- 2489827-RES-1
- epc klasse
- D
- dubbel glas
- ja
- verwarming
- Gas
Technieken
- elektriciteit
- ja
- telefoonbekabeling
- ja
Garages / parking
- garages / parking
- 1
- binnenparking
- 1
- buitenparking
- 1
Indeling
- kelder
- ja
- slaapkamers
- 3
- slaapkamer 1
- 14 m²
- slaapkamer 2
- 13 m²
- slaapkamer 3
- 5 m²
- terras
- ja
- terras 1
- 22,00 m²
- bureau
- 10 m²
- woonkamer
- 30 m²
- keuken
- 9 m², Gedeeltelijk geïnstalleerd
Stedenbouwkundige informatie & ruimtelijke ordening
- bestemming
- Woongebied
- bouwvergunning
- nee
- verkavelingsvergunning
- nee
- voorkooprecht
- nee
- vonnissen
- nee
- g-score
- A
- p-score
- A
- kadaster sectie
- A
- kadaster nummer
- 644 C5/2
- kadaster opp.
- 175
















