- 3
- 147 m²
- 344 m²
- garages
Gezinswoning met garage en veranda op topligging!
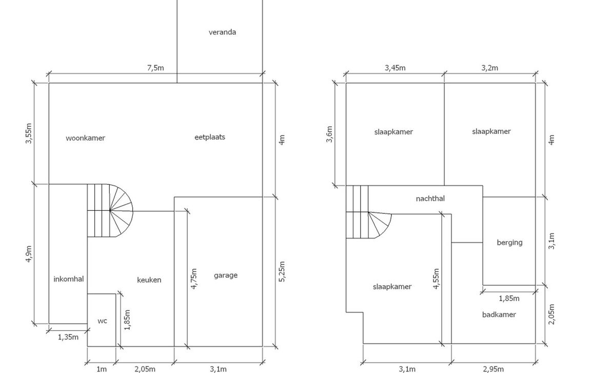
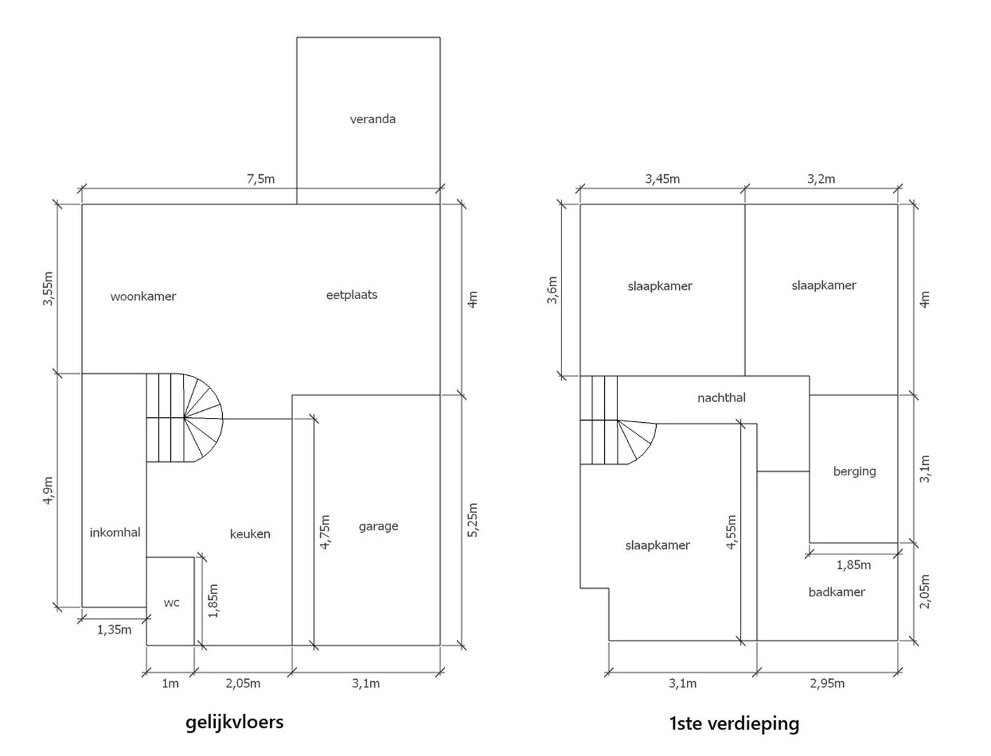
Deze uitstekend onderhouden halfopen bebouwing verwelkomt u via de inkomhal met gastentoilet. De ruime en lichtrijke leefruimte met eetplaats vormt het hart van de woning en sluit naadloos aan op de volledig ingerichte keuken. Aansluitend bevindt zich de veranda, een aangename extra leefruimte waar u het hele jaar door kan genieten van het zicht op de tuin.
Op de eerste verdieping bevinden zich drie volwaardige slaapkamers en een badkamer uitgerust met douche in bad, lavabomeubel en toilet. Daarnaast is er een bijkomende opbergruimte die toegang biedt tot de praktische zolder.
Achteraan geniet u van een onderhoudsvriendelijke tuin met overdekt terras en tuinberging. De tuin is bovendien bereikbaar via de zijkant van de woning, bijzonder handig voor tuinonderhoud of het stallen van fietsen.
Een extra troef zijn de ruime oprit en de inpandige garage met automatische poort. De oprit wordt bovendien afgesloten met een automatische toegangspoort, wat zorgt voor extra comfort, privacy en veiligheid.
De woning beschikt over alle hedendaagse comfort, waaronder alarminstallatie, waterverzachter, dubbele beglazing, zonnepanelen, warmtepompen en airconditioning, en behaalt bovendien een gunstig EPC. Ontdek deze woning alvast via het virtueel bezoek!
De ligging vormt een absolute meerwaarde: op wandelafstand van het station, nabij scholen en winkels, op een boogscheut van de E40 en met een vlotte verbinding richting Aalst en Ninove.
Voor meer info en/of een bezoek ter plaatse, contacteer Jonas via jonas@immotijl.be of 0477 17 44 20.
In detail
Financieel
- prijs
- € 389.000
- beschikbaarheid
- Vanaf akte
- onder btw stelsel
- nee
- kadastraal inkomen
- € 1.132
- opbrengsteigendom
- nee
Ligging
- ligging
- Woonkern
- omgeving school
- ja
- omgeving openbaar vervoer
- ja
- omgeving winkels
- ja
- omgeving autosnelweg
- ja
Comfort
- videofoon
- ja
- air conditioning
- ja
- aansluiting riolering
- ja
- aansluiting water
- ja
- kabeltelevisie
- ja
Gebouw
- bewoonbare opp.
- 147,00 m²
- constructie
- Halfopen
- bouwjaar
- 1992
Terrein
- perceel opp.
- 344,00 m²
- tuin
- ja
Energie
- epc
- 178 kWh/m²
- epc unieke code
- 3793864-RES-1
- epc klasse
- B
- elektriciteitskeuring
- ja, niet conform
- verwarming
- warmtepomp
- zonnepanelen
- ja, Fotovoltaïsche
Technieken
- elektriciteit
- ja
- telefoonbekabeling
- ja
Garages / parking
- garages / parking
- 1
- buitenparking
- 2
Indeling
- woonkamer
- 28 m²
- keuken
- 10 m², Volledig geïnstalleerd
- veranda
- ja
- slaapkamers
- 3
- slaapkamer 1
- 12 m²
- slaapkamer 2
- 12 m²
- slaapkamer 3
- 14 m²
- terras
- ja
Stedenbouwkundige informatie & ruimtelijke ordening
- bestemming
- Woongebied
- bouwvergunning
- ja
- verkavelingsvergunning
- nee
- voorkooprecht
- nee
- vonnissen
- nee
- g-score
- A
- p-score
- A
- kadaster sectie
- B
- kadaster nummer
- 739 P
- kadaster opp.
- 344
- bodemattest
- ja



















