- 2
- 142 m²
- 160 m²
- garages
Woning met zuid gerichte tuin en uitbreidingsmogelijkheden!
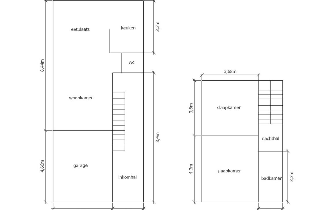
Deze op te frissen woning beschikt op het gelijkvloers over een inkomhal met gastentoilet, een lichtrijke woonkamer met eetplaats en een volledig ingerichte keuken. Een bijkomende troef is de inpandige garage met automatische poort.
Via de woonkamer heeft men toegang tot de aangename tuin met zuidwestelijke oriëntatie, voorzien van een terras en tuinberging.
Op de eerste verdieping bevinden zich twee ruime slaapkamers en een moderne badkamer uitgerust met bad, lavabo en toilet.
Via een vaste trap bereikt men de zolderverdieping, die nog verder afgewerkt kan worden en mogelijkheden biedt voor het creëren van één of twee extra slaapkamers.
De kelder biedt extra bergruimte.
De woning is reeds uitgerust met dubbele beglazing, een videofoon en centrale verwarming op gas (condenserende ketel). De renovatieverplichting is van toepassing.
Gelegen in het centrum van Denderleeuw, met scholen, winkels en openbaar vervoer in de onmiddellijke nabijheid.
Voor meer info en/of een bezoek, contacteer Jonas via jonas@immotijl.be of 0477 17 44 20.
In detail
Financieel
- prijs
- € 270.000
- beschikbaarheid
- Vanaf akte
- onder btw stelsel
- nee
- kadastraal inkomen
- € 736
- opbrengsteigendom
- ja
Ligging
- ligging
- Centraal
- omgeving school
- ja
- omgeving openbaar vervoer
- ja
- omgeving winkels
- ja
- omgeving autosnelweg
- ja
- omgeving sportcentrum
- ja
Comfort
- videofoon
- ja
- aansluiting riolering
- ja
- aansluiting gas
- ja
- aansluiting water
- ja
- kabeltelevisie
- ja
Gebouw
- bewoonbare opp.
- 142,00 m²
- constructie
- Halfopen
- verdieping(en)
- 2
- oriëntatie achtergevel
- Zuid
Terrein
- perceel opp.
- 160,00 m²
- tuin
- 70,00 m²
Energie
- epc
- 502 kWh/m²
- epc unieke code
- 2583549-RES-1
- epc klasse
- F
- dubbel glas
- ja
- elektriciteitskeuring
- ja, conform
- verwarming
- Gas
Technieken
- elektriciteit
- ja
- telefoonbekabeling
- ja
Garages / parking
- garages / parking
- 1
- binnenparking
- 1
Indeling
- kelder
- ja
- slaapkamers
- 2
- slaapkamer 1
- 13 m²
- slaapkamer 2
- 16 m²
- terras
- ja
- woonkamer
- 32 m²
- keuken
- 9 m², Volledig geïnstalleerd
Certificaten
- asbestinventarisattest
- Ja
Downloads
Stedenbouwkundige informatie & ruimtelijke ordening
- bestemming
- Woongebied
- bouwvergunning
- nee
- verkavelingsvergunning
- nee
- voorkooprecht
- nee
- vonnissen
- nee
- kadaster sectie
- B
- kadaster nummer
- 1045 Y
- kadaster opp.
- 160
- renovatieverplichting
- JaDit pand kan onderheven zijn aan de renovatieverplichting die door de vlaamse overheid word opgelegd voor residentiele gebouwen. Voor meer informatie kan u de website van het Vlaams Energie- en Klimaatagentschap contacteren: https://www.vlaanderen.be/een-woning-kopen/renovatieverplichting-voor-residentiele-gebouwen
- bodemattest
- ja













