- 3
- 193 m²
- 328 m²
- garages
HOB met tuin te Grembergen!
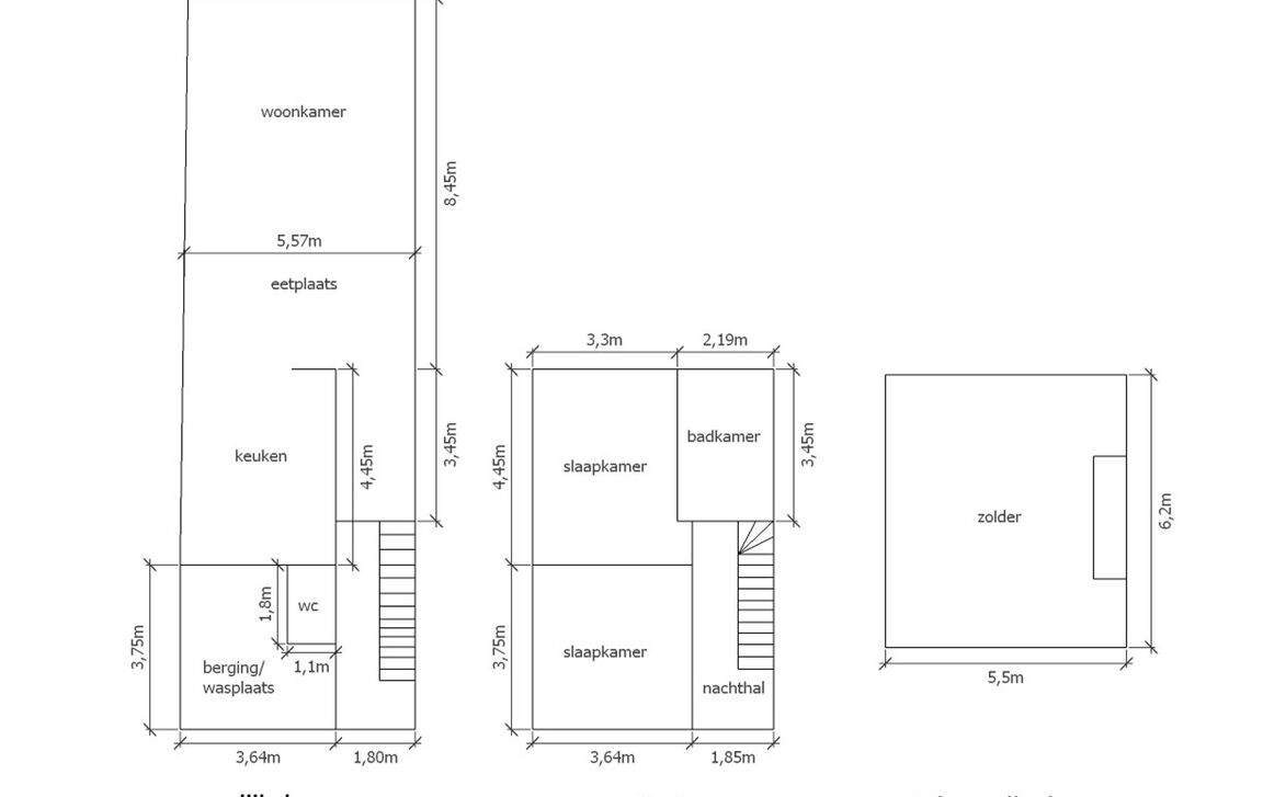
Deze recent gerenoveerde woning biedt op het gelijkvloers een ruime inkomhal, een lichtrijke woonkamer van ca. 70 m² en een open keuken, volledig uitgerust met hoogwaardige AEG-toestellen. Aansluitend vindt u een praktische berging/wasplaats, een apart gastentoilet en toegang tot de kelder.
Op de eerste verdieping bevinden zich twee comfortabele slaapkamers en een badkamer met ligbad, douche, lavabomeubel en toilet. De tweede verdieping biedt een ruime zolder die eenvoudig kan worden opgesplitst in twee extra kamers.
Achteraan geniet men van een mooi aangelegde tuin met terras en tuinberging. Langs de woning is er een ruime oprit met plaats voor meerdere wagens en de mogelijkheid tot het plaatsen van een carport.
De renovatie werd uitgevoerd met oog voor energiezuinigheid en modern comfort: centrale verwarming op aardgas, vloerverwarming op het gelijkvloers, airconditioning op de verdieping, hoogrendementsbeglazing, vliegenramen, elektrische rolluiken en domotica. De elektriciteit is volledig conform de huidige normen.
Ontdek deze prachtige woning via het virtuele bezoek op onze website!
Voor meer informatie of een bezoek kunt u contact opnemen met Steffen via steffen@immotijl.be of 053 43 46 99.
In detail
Financieel
- prijs
- € 399.000
- beschikbaarheid
- Vanaf akte
- onder btw stelsel
- nee
- kadastraal inkomen
- € 589
- opbrengsteigendom
- nee
Ligging
- ligging
- Woonkern
- omgeving school
- ja
- omgeving openbaar vervoer
- ja
- omgeving winkels
- ja
- omgeving autosnelweg
- ja
- omgeving sportcentrum
- ja
Comfort
- videofoon
- ja
- rolluiken
- ja
- aansluiting riolering
- ja
- aansluiting gas
- ja
- aansluiting water
- ja
- kabeltelevisie
- ja
Gebouw
- bewoonbare opp.
- 193,00 m²
- constructie
- Halfopen
Terrein
- perceel opp.
- 328,00 m²
- tuin
- 118,00 m²
Energie
- epc
- 257 kWh/m²
- epc unieke code
- 3167835-RES-1
- epc klasse
- C
- elektriciteitskeuring
- ja, conform
- verwarming
- Gas
Technieken
- elektriciteit
- ja
- telefoonbekabeling
- ja
Garages / parking
- buitenparking
- 3
Indeling
- kelder
- ja
- slaapkamers
- 3
- slaapkamer 1
- 14 m²
- slaapkamer 2
- 14 m²
- terras
- ja
- woonkamer
- 70 m²
- keuken
- 15 m², Volledig geïnstalleerd
Certificaten
- asbestinventarisattest
- Ja
Stedenbouwkundige informatie & ruimtelijke ordening
- bestemming
- Woongebied
- bouwvergunning
- nee
- verkavelingsvergunning
- nee
- voorkooprecht
- nee
- vonnissen
- nee
- g-score
- B
- p-score
- B
- kadaster sectie
- A
- kadaster nummer
- 506W2
- kadaster opp.
- 328
- bodemattest
- ja














