- 2
- 137 m²
- 262 m²
- garages
Mooie woning met tuin en garage te Oudegem!
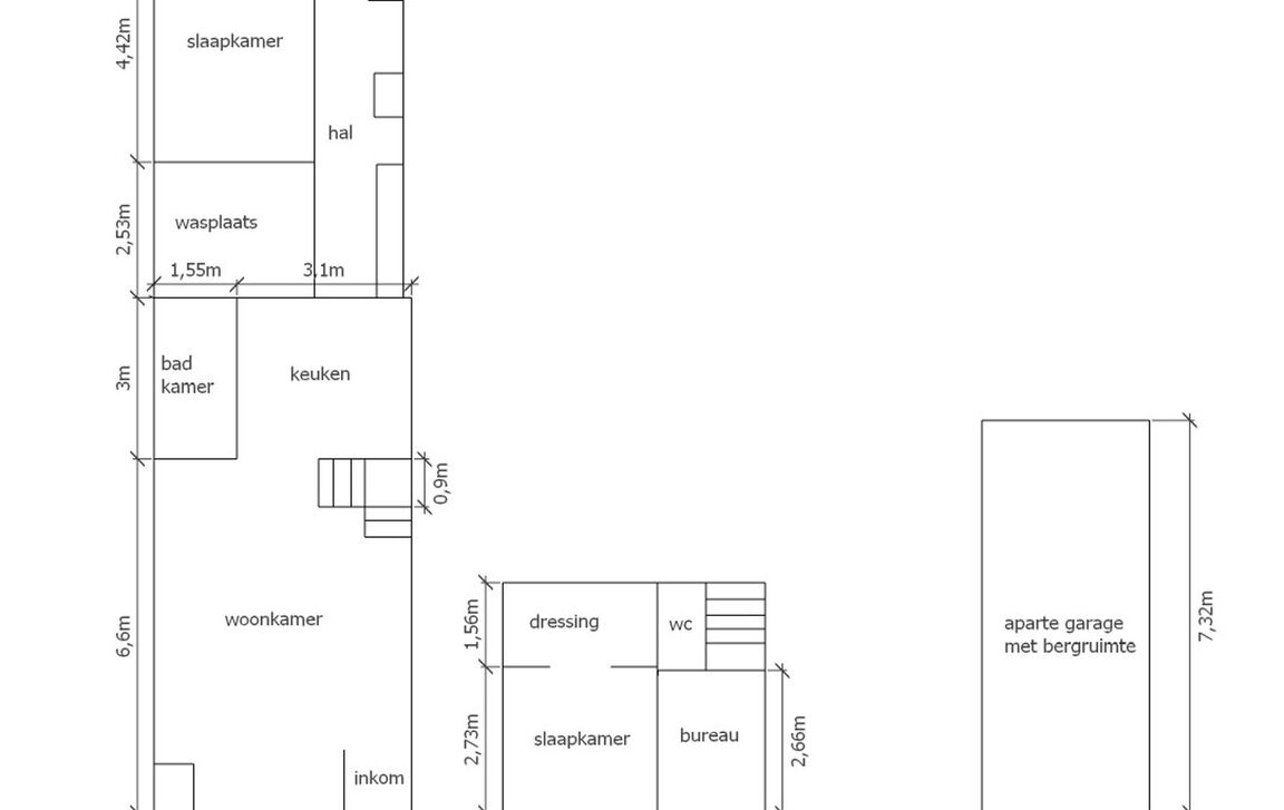
Deze recent vernieuwde woning beschikt op het gelijkvloers over een inkom, lichtrijke, moderne woonkamer met gezellige sierhaard, eetplaats, ingerichte keuken en een handige berging/wasplaats. Daarnaast vindt men er tevens een ruime slaapkamer, verzorgde badkamer (inloopdouche en lavabomeubel) en een apart toilet. In de hal richting tuin is tevens voldoende opbergruimte.
Op de verdieping vindt men een 2de ruime slaapkamer met dressing, een bureau en een extra toilet.
Achteraan bevindt zich de charmante tuin met (overdekt) terras, een aangename plek om in alle rust te ontspannen.
Een extra troef is de bijhorende garage, gelegen op ongeveer 20 meter van de woning.
Deze volledig instapklare woning is modern en hedendaags ingericht en is voorzien van o.a. CV op aardgas, dubbele beglazing/hoogrendementsbeglazing, conforme elektrische installatie, ... Neem gerust al eens een kijkje binnenin via onze virtuele rondleiding!
De woning is gunstig gelegen te Oudegem, op wandelafstand van het centrum en nabij het station. Dankzij de vlotte verbindingen richting Dendermonde en Aalst is de bereikbaarheid uitstekend. Voor meer info en/of een bezoek, contacteer Steven via steven@immotijl.be of 0485 52 55 29.
In detail
Financieel
- prijs
- € 295.000
- beschikbaarheid
- Vanaf akte
- onder btw stelsel
- nee
- kadastraal inkomen
- € 300
- opbrengsteigendom
- nee
Ligging
- ligging
- Centraal
- omgeving school
- ja
- omgeving openbaar vervoer
- ja
- omgeving winkels
- ja
- omgeving autosnelweg
- ja
Comfort
- aansluiting riolering
- ja
- aansluiting gas
- ja
- aansluiting water
- ja
- kabeltelevisie
- ja
Gebouw
- bewoonbare opp.
- 137,00 m²
- constructie
- Halfopen
Terrein
- perceel opp.
- 262,00 m²
- tuin
- ja
Energie
- epc
- 249 kWh/m²
- epc unieke code
- 3809785-RES-1
- epc klasse
- C
- dubbel glas
- ja
- elektriciteitskeuring
- ja, conform
- verwarming
- Gas
Technieken
- elektriciteit
- ja
- telefoonbekabeling
- ja
Garages / parking
- garages / parking
- 1
- binnenparking
- 1
Indeling
- bureau
- 5 m²
- woonkamer
- 31 m²
- keuken
- 9 m², Geïnstalleerd
- slaapkamers
- 2
- slaapkamer 1
- 13 m²
- slaapkamer 2
- 12 m²
- terras
- ja
Certificaten
- asbestinventarisattest
- Ja
Stedenbouwkundige informatie & ruimtelijke ordening
- bestemming
- Woongebied met landelijk karakter
- bouwvergunning
- nee
- verkavelingsvergunning
- nee
- voorkooprecht
- ja
- vonnissen
- nee
- g-score
- B
- p-score
- D
- bestuursmaatregelen in het maatregelenregister
- nee
- kadaster sectie
- A
- kadaster nummer
- 447 F/2, H/2
- kadaster opp.
- 262
- bodemattest
- ja



















