- 3
- 192 m²
- 647 m²
- garages
Rustig gelegen halfopen gezinswoning met garage!
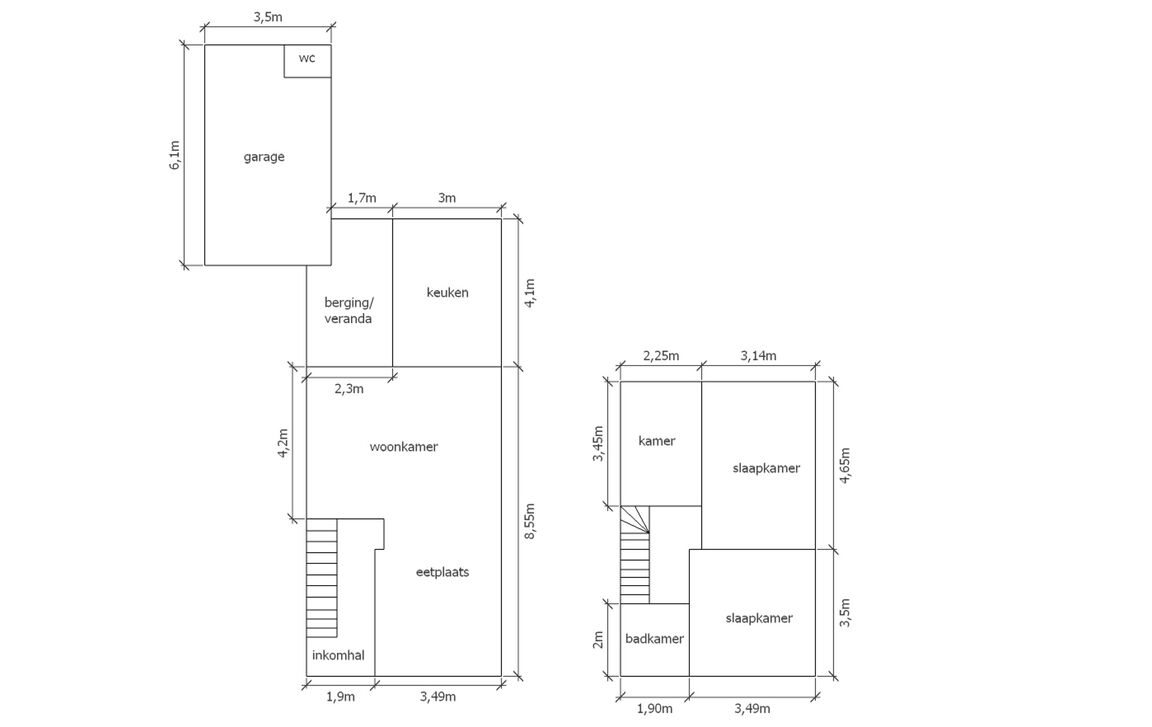
Deze te moderniseren woning biedt op het gelijkvloers een inkomhal, een ruime woonkamer met eetplaats en een vernieuwde keuken (voorzien van kwaliteitstoestellen van Miele) met directe toegang tot de veranda/wasplaats.
Op de eerste verdieping bevinden zich twee slaapkamers, een extra kamer en een badkamer met bad, lavabo en toilet. De zolder (bereikbaar via een valluik) en de kelder zorgen voor bijkomende opslagmogelijkheden.
De woning is reeds uitgerust met rolluiken, centrale verwarming op aardgas en zonnepanelen. Achteraan ligt een rustige tuin met tuinberging, waar het aangenaam vertoeven is.
De oprit in combinatie met de garage (met automatische poort en aparte wc) biedt voldoende parkeergelegenheid. De ligging is bovendien kindvriendelijk, met voornamelijk plaatselijk verkeer. Daarnaast is de bereikbaarheid uitstekend, met winkels, scholen en openbaar vervoer in de nabije omgeving en vlotte verbindingen naar Aalst, Brussel en Gent.
Voor meer info of een bezoek, contacteer June via june@immotijl.be of bel 0486 17 07 61.
In detail
Financieel
- prijs
- € 295.000
- beschikbaarheid
- Vanaf akte
- onder btw stelsel
- nee
- kadastraal inkomen
- € 731
- opbrengsteigendom
- nee
Ligging
- ligging
- Rustig
- omgeving school
- ja
- omgeving openbaar vervoer
- ja
- omgeving winkels
- ja
- omgeving autosnelweg
- ja
- omgeving sportcentrum
- ja
Comfort
- rolluiken
- ja
- aansluiting riolering
- ja
- aansluiting gas
- ja
- aansluiting water
- ja
- kabeltelevisie
- ja
Gebouw
- bewoonbare opp.
- 192,00 m²
- constructie
- Halfopen
- bouwjaar
- 1965
Terrein
- perceel opp.
- 647,00 m²
- tuin
- 360,00 m²
Energie
- epc
- 492 kWh/m²
- epc unieke code
- 3747017-RES-1
- epc klasse
- E
- dubbel glas
- ja
- verwarming
- Gas
- zonnepanelen
- ja, Fotovoltaïsche
Technieken
- elektriciteit
- ja
- telefoonbekabeling
- ja
Garages / parking
- garages / parking
- 1
- binnenparking
- 1
- buitenparking
- 3
Indeling
- kelder
- ja
- slaapkamers
- 3
- slaapkamer 1
- 12 m²
- slaapkamer 2
- 14 m²
- slaapkamer 3
- 7 m²
- woonkamer
- 37 m²
- keuken
- 12 m², Volledig geïnstalleerd
- veranda
- ja
Downloads
Stedenbouwkundige informatie & ruimtelijke ordening
- bestemming
- Woongebied
- bouwvergunning
- ja
- verkavelingsvergunning
- nee
- voorkooprecht
- nee
- vonnissen
- nee
- g-score
- A
- p-score
- A
- kadaster sectie
- A
- kadaster nummer
- 1725 S
- kadaster opp.
- 647
- renovatieverplichting
- JaDit pand kan onderheven zijn aan de renovatieverplichting die door de vlaamse overheid word opgelegd voor residentiele gebouwen. Voor meer informatie kan u de website van het Vlaams Energie- en Klimaatagentschap contacteren: https://www.vlaanderen.be/een-woning-kopen/renovatieverplichting-voor-residentiele-gebouwen
- bodemattest
- ja















