- 3
- 161 m²
- 99 m²
- garages
Woning met garage en uitstekende bereikbaarheid!
ONDER OPTIE!
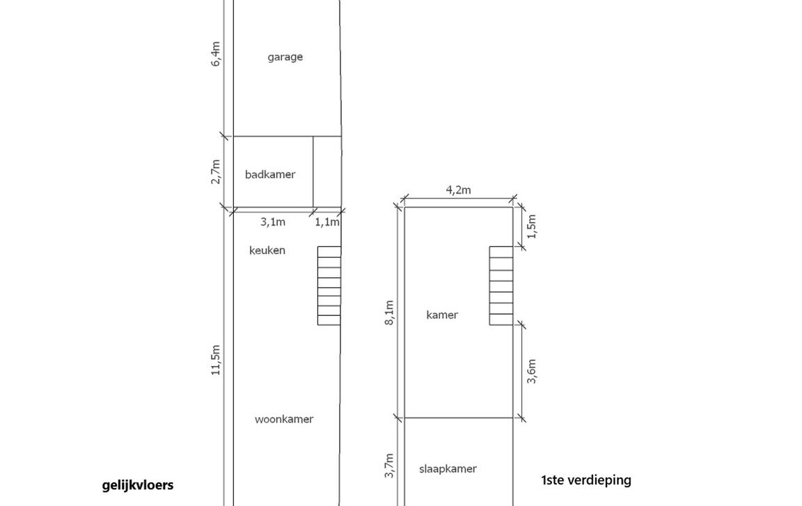
Deze te renoveren woning biedt op het gelijkvloers een ruime woonkamer met aansluitend een keuken en een badkamer uitgerust met ligbad en toilet. Achteraan bevindt zich een ruime garage, toegankelijk via de achterliggende straat.
Op de eerste verdieping bevindt zich een grote slaapkamer en een open ruimte die naar eigen smaak kan worden ingedeeld of opgesplitst. Via een valluik is er toegang tot de zolder.
De woning is deels voorzien van dubbele beglazing met rolluiken en wordt verwarmd met stookolie. De renovatieverplichting is van toepassing, wat een mooie kans biedt om dit pand volledig naar eigen stijl en comfort te vernieuwen.
De woning is centraal gelegen in Erpe-Mere dichtbij winkels, scholen en openbaar vervoer. Dankzij de vlotte aansluiting met de E40 zijn steden als Gent en Brussel snel bereikbaar. Ook Aalst ligt op korte afstand, wat deze locatie bijzonder interessant maakt! Een ideale opportuniteit voor starters!
Voor meer info en/of een bezoek, contacteer June via june@immotijl.be of 0486 17 07 61.
In detail
Financieel
- prijs
- € 169.000
- beschikbaarheid
- Vanaf akte
- onder btw stelsel
- nee
- kadastraal inkomen
- € 743
- opbrengsteigendom
- nee
Ligging
- ligging
- Centraal
- omgeving school
- ja
- omgeving openbaar vervoer
- ja
- omgeving winkels
- ja
- omgeving autosnelweg
- ja
Comfort
- rolluiken
- ja
- aansluiting riolering
- ja
- aansluiting water
- ja
- kabeltelevisie
- ja
Gebouw
- bewoonbare opp.
- 161,00 m²
- constructie
- Gesloten
- bouwjaar
- 1979
Terrein
- perceel opp.
- 99,00 m²
Energie
- epc
- 469 kWh/m²
- epc unieke code
- 3631727-RES-1
- epc klasse
- E
- dubbel glas
- ja
- verwarming
- Stookolie
Technieken
- elektriciteit
- ja
- telefoonbekabeling
- ja
Garages / parking
- garages / parking
- 1
Indeling
- woonkamer
- 47 m²
- keuken
- ja
- slaapkamers
- 3
- slaapkamer 1
- 15 m²
- slaapkamer 2
- 31 m²
Certificaten
- asbestinventarisattest
- Ja
Downloads
Stedenbouwkundige informatie & ruimtelijke ordening
- bestemming
- Woongebied
- bouwvergunning
- ja
- verkavelingsvergunning
- nee
- voorkooprecht
- nee
- vonnissen
- nee
- g-score
- A
- p-score
- A
- kadaster sectie
- C
- kadaster nummer
- 288 R
- kadaster opp.
- 99
- renovatieverplichting
- JaDit pand kan onderheven zijn aan de renovatieverplichting die door de vlaamse overheid word opgelegd voor residentiele gebouwen. Voor meer informatie kan u de website van het Vlaams Energie- en Klimaatagentschap contacteren: https://www.vlaanderen.be/een-woning-kopen/renovatieverplichting-voor-residentiele-gebouwen
- bodemattest
- ja











