Nieuw
Huis
Rijkhofstraat 10, 9420 Erpe-Mere
€ 449.000
- 3
- garages
Knap project bestaande uit 2 HOB te Erpe-mere!
Dit project bestaat uit 2 halfopen bebouwingen met een aangename tuin. De woningen zijn in opbouw en worden volledig afgewerkt. Energiezuinig wonen op een landelijke en goede bereikbare locatie te Erpe-Mere!
De grond wordt verkocht onder her stelsel van registratierechten en de constructie onder het BTW stelsel.
Voor meer info en/of een gesprek i.v.m. dit project, contacteer ons kantoor via aalst@immotijl.be of 053/42 46 99.
In detail
Financieel
- prijs
- € 449.000
- beschikbaarheid
- Bij oplevering
- onder btw stelsel
- ja
- opbrengsteigendom
- nee
Ligging
- omgeving school
- ja
- omgeving openbaar vervoer
- ja
- omgeving winkels
- ja
- omgeving autosnelweg
- ja
- omgeving sportcentrum
- ja
Comfort
- aansluiting riolering
- ja
- aansluiting water
- ja
- kabeltelevisie
- ja
Gebouw
- constructie
- Halfopen
- bouwjaar
- 2025
Terrein
- tuin
- ja
Energie
- verwarming
- warmtepomp
- zonnepanelen
- ja,
Technieken
- elektriciteit
- ja
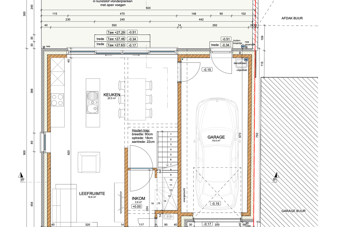
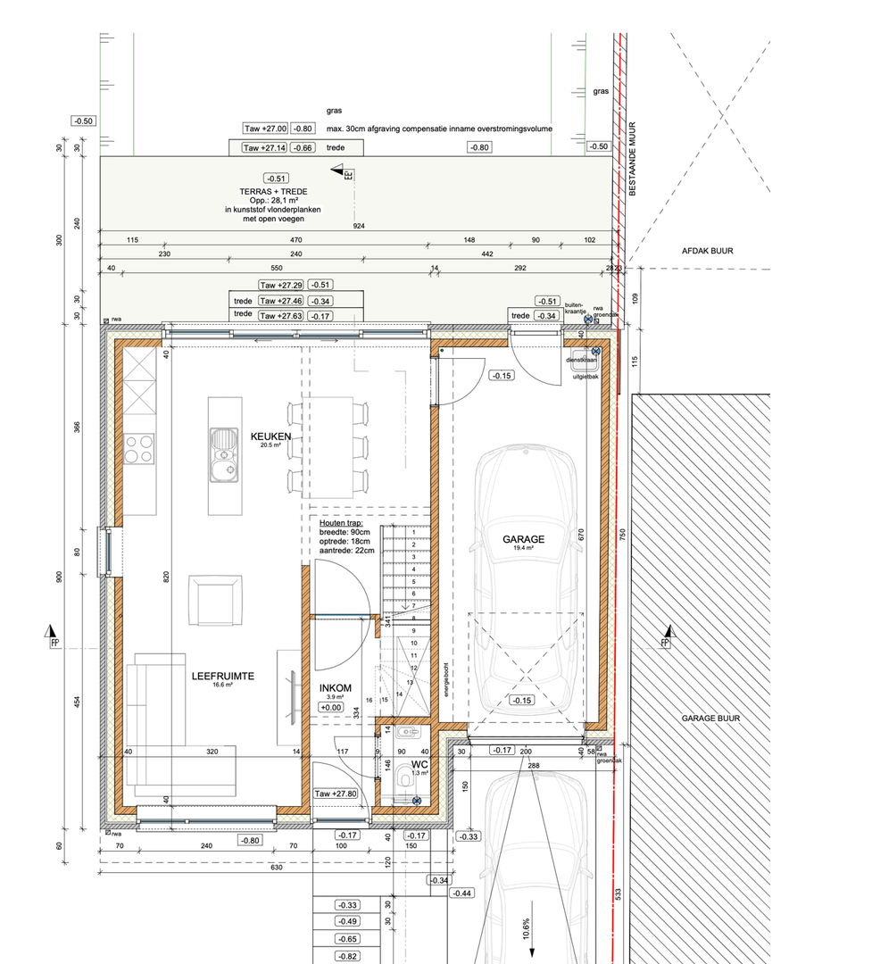
Garages / parking
- garages / parking
- 1
- binnenparking
- ja
- buitenparking
- ja
Indeling
- keuken
- ja
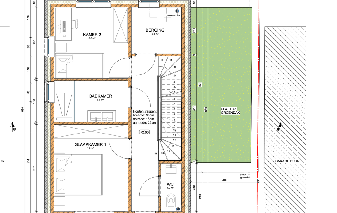
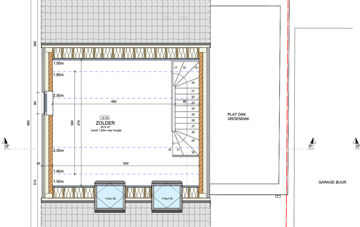
- slaapkamers
- 3
- slaapkamer 1
- 12 m²
- slaapkamer 2
- 10 m²
- slaapkamer 3
- 26 m²
- terras
- ja
Stedenbouwkundige informatie & ruimtelijke ordening
- bestemming
- Woongebied met landelijk karakter
- bouwvergunning
- ja
- verkavelingsvergunning
- ja
- voorkooprecht
- nee
- vonnissen
- nee
- overstromingsgevoeliggebied
- Niet gelegen in een overstromingsgevoelig gebied
- g-score
- D
- p-score
- D







