- 2
- 90 m²
Charmante woning in hartje Erpe!
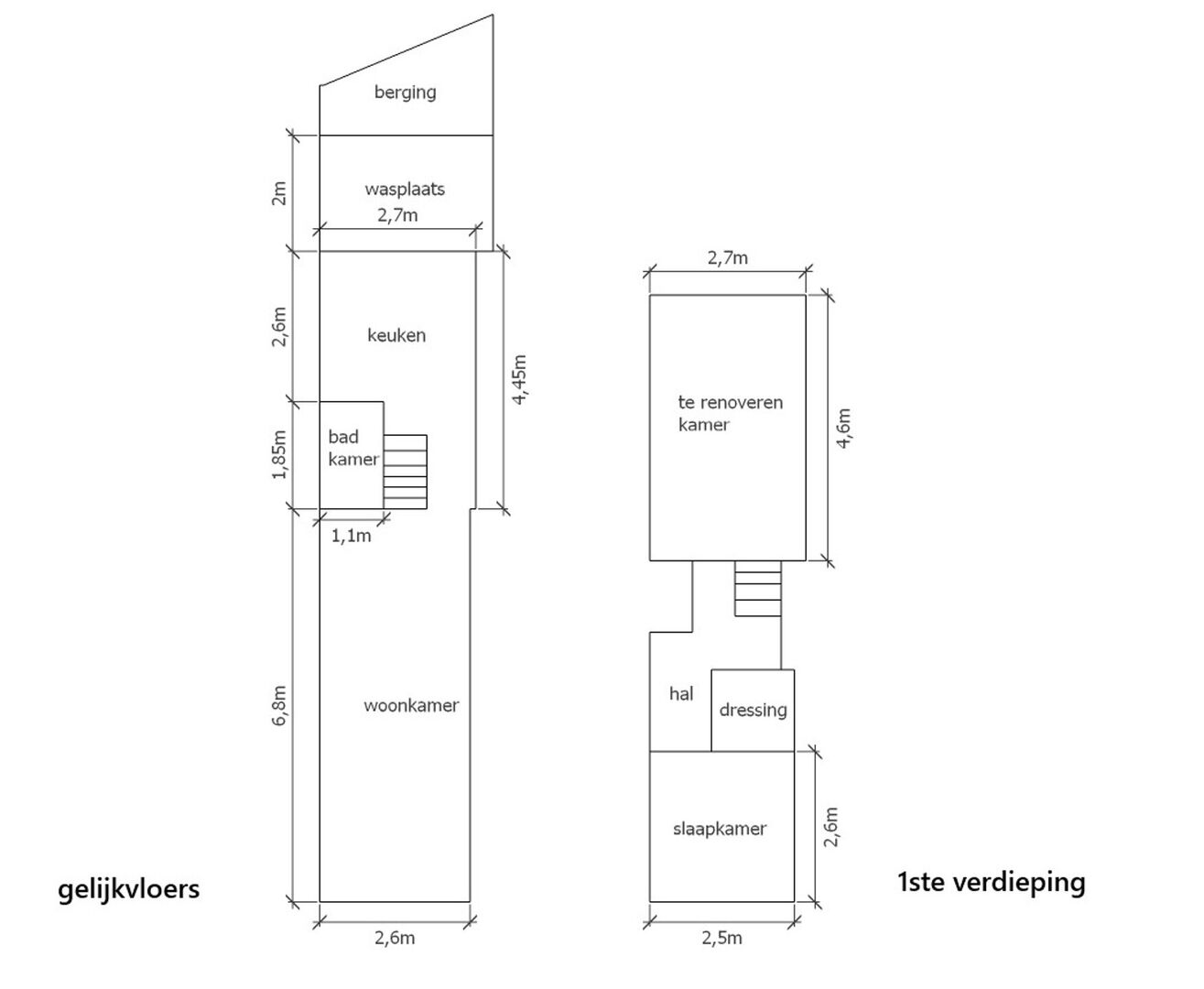
Deze woning beschikt op het gelijkvloers een woonkamer met eetplaats, een op te knappen keuken en een badkamer (douche en toilet). Naast de woning bevindt zich een knusse buitenruimte/terrasje (tevens toegankelijk via achterliggend wegje). Aansluitend aan het terras zijn nog 2 handige bergingen terug te vinden (ideaal voor het plaatsen van o.a. fietsen, vuilnis, ...). Mits afbraak van (een deel van) de bergingen, kan het huidig terras aanzienlijk worden vergroot of zelfs plaatsmaken voor een compacte tuin. Dergelijke ingrepen kunnen – afhankelijk van de omvang en aard van de werken – onderworpen zijn aan vergunningsplicht.
Op de eerste verdieping bevindt zich een ruime slaapkamer en dressing. Daarnaast is er een extra ruimte die na renovatie perfect kan dienen als tweede slaapkamer. Via een luik is de zolder bereikbaar, die extra opslagruimte biedt.
De woning is voorzien van hoogrendementsbeglazing. De renovatieverplichting is van toepassing, wat een uitstekende kans biedt om het pand volledig naar eigen smaak en comfort te vernieuwen.
Centraal gelegen te Erpe, vlakbij winkels, scholen en openbaar vervoer. Dankzij de vlotte verbinding met de E40 zijn steden zoals Gent en Brussel snel bereikbaar. Ook Aalst ligt op korte afstand, wat deze locatie bijzonder aantrekkelijk maakt. Een ideale opportuniteit voor starters!
Momenteel verhuurd. Voor meer info of een bezoek, contacteer Lara via lara@immotijl.be of 0489 59 18 87.
In detail
Financieel
- prijs
- € 148.000
- onder btw stelsel
- nee
- kadastraal inkomen
- € 193
- opbrengsteigendom
- nee
Ligging
- ligging
- Woonkern
- omgeving school
- ja
- omgeving openbaar vervoer
- ja
- omgeving winkels
- ja
- omgeving autosnelweg
- ja
- omgeving sportcentrum
- ja
Comfort
- aansluiting riolering
- ja
- aansluiting gas
- ja
- aansluiting water
- ja
- kabeltelevisie
- ja
Gebouw
- constructie
- Halfopen
Terrein
- perceel opp.
- 90,00 m²
- tuin
- ja
Energie
- epc
- 727 kWh/m²
- epc unieke code
- 3617000-RES-1
- epc klasse
- F
- verwarming
- Gaskachels
Technieken
- elektriciteit
- ja
- telefoonbekabeling
- ja
Indeling
- woonkamer
- 18 m²
- keuken
- 6 m², Gedeeltelijk geïnstalleerd
- slaapkamers
- 2
- slaapkamer 1
- 10 m²
- slaapkamer 2
- 12 m²
- terras
- ja
Certificaten
- asbestinventarisattest
- Ja
Stedenbouwkundige informatie & ruimtelijke ordening
- bestemming
- Woongebied
- bouwvergunning
- nee
- verkavelingsvergunning
- nee
- voorkooprecht
- nee
- vonnissen
- nee
- g-score
- A
- p-score
- A
- kadaster sectie
- C
- kadaster nummer
- 251 N
- kadaster opp.
- 90
- renovatieverplichting
- JaDit pand kan onderheven zijn aan de renovatieverplichting die door de vlaamse overheid word opgelegd voor residentiele gebouwen. Voor meer informatie kan u de website van het Vlaams Energie- en Klimaatagentschap contacteren: https://www.vlaanderen.be/een-woning-kopen/renovatieverplichting-voor-residentiele-gebouwen
- bodemattest
- ja










