Nieuw
Huis
Plaatsstraat 103, 1570 Galmaarden
€ 315.000
  • 3
  • 143 m²
  • 1.392 m²
  • garages

Vrijstaande woning op groot perceel met garage in Pajottegem!

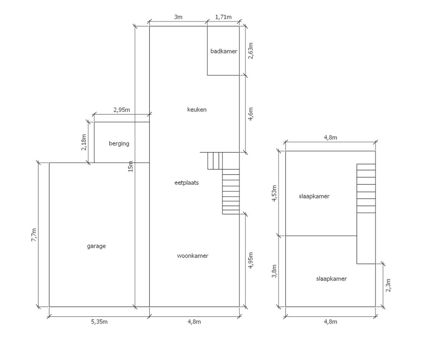
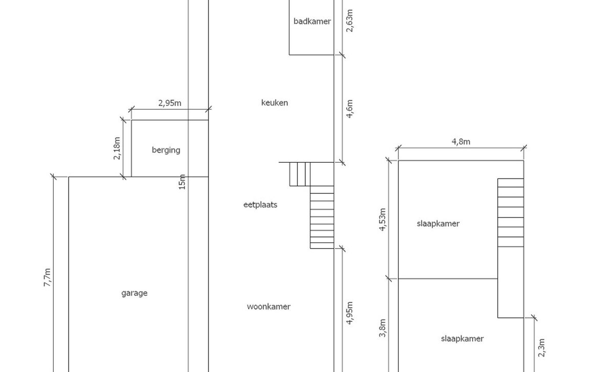
Deze open bebouwing biedt op het gelijkvloers een zeer ruime woonkamer met eetplaats, een vernieuwde open keuken en een ruime badkamer uitgerust met een inloopdouche en lavabo.

Op de eerste verdieping bevinden zich twee volwaardige slaapkamers. Daarnaast is er ook een zolderverdieping aanwezig, die uitbreidingsmogelijkheden biedt voor het creëren van extra slaapkamers, een bureau of hobbyruimte.

Een bijkomende troef is de garage met aansluitende berging/wasplaats.

Achteraan de woning bevindt zich een diepe tuin met terras, die bovendien ook toegankelijk is via de straatzijde. Samen met de verschillende bijgebouwen maakt dit het eigendom uitermate geschikt voor zelfstandigen (hoofd- of bijberoep) of voor wie nood heeft aan veel ruimte en functionele mogelijkheden.

Hoewel de woning nog vraagt om de verdere afwerking van enkele ruimtes, beschikt zij reeds over belangrijke renovaties en comfortvoorzieningen zoals dubbele beglazing, centrale verwarming op aardgas, een vernieuwd dak en een pelletkachel.

De woning is centraal gelegen in Tollembeek: winkels, horeca, scholen en andere dagelijkse voorzieningen bevinden zich op korte afstand, terwijl u tegelijk geniet van de rustige, landelijke omgeving die zo typisch is voor het Pajottenland.

Voor meer info en/of een bezoek ter plaatse, contacteer ons via nadia@immotijl.be of 0486 79 73 19.

In detail

Financieel

prijs
€ 315.000
beschikbaarheid
Vanaf akte
onder btw stelsel
nee
kadastraal inkomen
€ 746
opbrengsteigendom
nee

Ligging

ligging
Woonkern
omgeving school
ja
omgeving openbaar vervoer
ja
omgeving winkels
ja

Comfort

rolluiken
ja
aansluiting riolering
ja
aansluiting gas
ja
aansluiting water
ja
kabeltelevisie
ja

Gebouw

bewoonbare opp.
143,00 m²
constructie
Halfopen

Terrein

perceel opp.
1.392,00 m²
tuin
1.190,00 m²

Energie

epc
625 kWh/m²
epc unieke code
3585402-RES-1
epc klasse
F
dubbel glas
ja
verwarming
Gas

Technieken

elektriciteit
ja
telefoonbekabeling
ja

Garages / parking

garages / parking
1
binnenparking
2
buitenparking
ja

Indeling

woonkamer
31 m²
keuken
20 m², Gedeeltelijk geïnstalleerd
slaapkamers
3
slaapkamer 1
21 m²
slaapkamer 2
18 m²
terras
ja

Certificaten

asbestinventarisattest
Ja

Stedenbouwkundige informatie & ruimtelijke ordening

bouwvergunning
nee
verkavelingsvergunning
nee
voorkooprecht
nee
vonnissen
nee
g-score
A
p-score
A
bestuursmaatregelen in het maatregelenregister
nee
kadaster sectie
B
kadaster nummer
497Z/2F - 2K
kadaster opp.
1392
renovatieverplichting
JaDit pand kan onderheven zijn aan de renovatieverplichting die door de vlaamse overheid word opgelegd voor residentiele gebouwen. Voor meer informatie kan u de website van het Vlaams Energie- en Klimaatagentschap contacteren: https://www.vlaanderen.be/een-woning-kopen/renovatieverplichting-voor-residentiele-gebouwen
bodemattest
ja
Uw makelaar
Afbeelding
Nadia Basselier
0486 79 73 19