- 3
- 460 m²
- garages
Recent gerenoveerde 4-gevelwoning met 3 slk, tuin & oprit
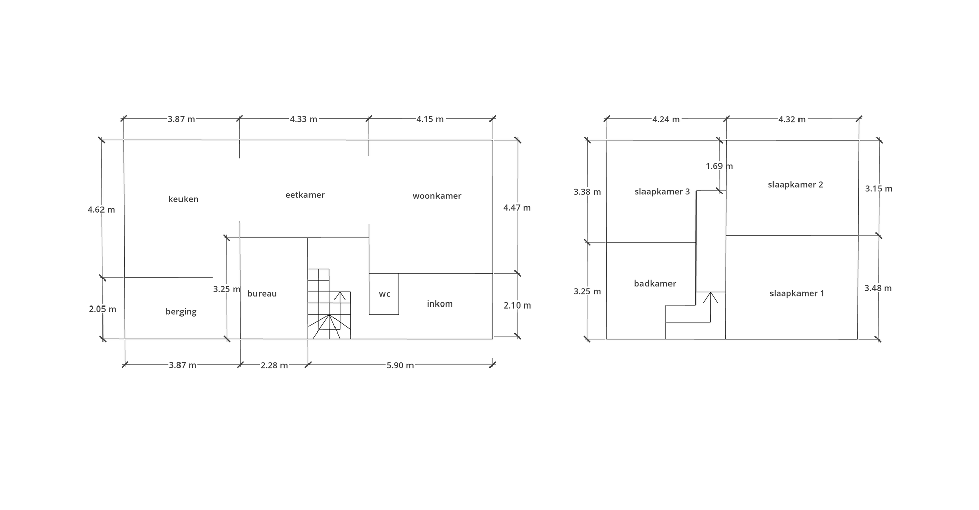
Deze rustig gelegen, recent verbouwde viergevelwoning geniet van een prachtige tuin en biedt een aangenaam en comfortabel woongevoel. Bij het betreden van de woning komt u binnen via de inkomhal met apart toilet.
Aansluitend bevindt zich de ruime en lichtrijke woonkamer met eetplaats en een open keuken die een mooi zicht biedt op de tuin.
Naast de keuken is er een praktische berging/wasruimte voorzien.
Op het gelijkvloers is er bovendien nog een extra ruimte die kan worden ingericht als bureau of speelkamer.
Op de eerste verdieping bevinden zich drie ruime slaapkamers en een badkamer uitgerust met een inloopdouche, lavabomeubel en toilet.
Daarnaast beschikt de woning over een oprit met plaats voor wagens en een grote tuinberging, ideaal voor het stallen van fietsen, vuilnisbakken en tuinmateriaal.
De woning werd recent gerenoveerd en is voorzien van dubbele beglazing, centrale verwarming op aardgas en een conforme elektriciteitsinstallatie.
Bent u benieuwd naar deze mooie eigendom? Neem dan zeker een kijkje via het virtuele bezoek op onze website.
Voor meer informatie of het inplannen van een bezoek kan u ons contacteren via steffen@immotijl.be of op het nummer 053 42 46 99.
In detail
Financieel
- prijs
- € 429.000
- beschikbaarheid
- Vanaf akte
- onder btw stelsel
- nee
- kadastraal inkomen
- € 247
- opbrengsteigendom
- nee
Ligging
- ligging
- Rustig
- omgeving school
- ja
- omgeving openbaar vervoer
- ja
- omgeving winkels
- ja
Comfort
- aansluiting riolering
- ja
- aansluiting gas
- ja
- aansluiting water
- ja
- kabeltelevisie
- ja
Gebouw
- constructie
- Open
- bouwjaar
- 1899
- renovatiejaar
- 2025
- gevelbreedte
- 7,00 m
- oriëntatie achtergevel
- Oost
- oriëntatie voorgevel
- Zuidwest
Terrein
- perceel opp.
- 460,00 m²
- breedte aan de straatkant
- 17,00 m
- tuin
- ja
Energie
- epc
- 143 kWh/m²
- epc unieke code
- 20260106-0003614960-RES-2
- epc klasse
- B
- dubbel glas
- ja
- elektriciteitskeuring
- ja, conform
- verwarming
- Gas
- type verwarming
- Individueel
Technieken
- elektriciteit
- ja
- telefoonbekabeling
- ja
Garages / parking
- binnenparking
- nee
- buitenparking
- 1
Indeling
- bureau
- 8 m²
- woonkamer
- 19 m²
- eetkamer
- 14 m²
- keuken
- 19 m², VS volledig geïnstalleerd
- slaapkamers
- 3
- slaapkamer 1
- 15 m²
- slaapkamer 2
- 13 m²
- slaapkamer 3
- 14 m²
- terras
- ja
Stedenbouwkundige informatie & ruimtelijke ordening
- bestemming
- Woongebied met landelijk karakter
- bouwvergunning
- nee
- verkavelingsvergunning
- nee
- voorkooprecht
- nee
- vonnissen
- nee
- g-score
- A
- p-score
- A
- kadaster sectie
- B
- kadaster nummer
- 121F
- kadaster opp.
- 460



























