Nieuw
Huis
Meirbeekstraat 38, 9308 Gijzegem
€ 269.000
  • 3
  • 1.180 m²
  • garages

Te renoveren woning met veel potentieel en een grote tuin!

Deze woning, gelegen in een rustige straat nabij het centrum van Gijzegem, biedt een ideale combinatie van een rustige omgeving en een vlotte bereikbaarheid van belangrijke invalswegen.

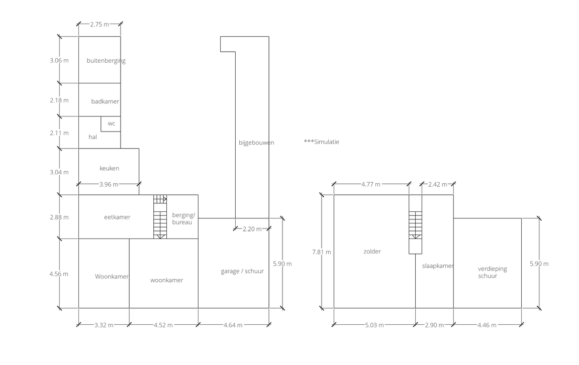
Op het gelijkvloers kom je binnen in een lichtrijke woonkamer die naadloos overgaat in de eetplaats met keuken. Aansluitend bevindt zich een extra ruimte met een apart toilet en een badkamer (lavabo en douche). Daarnaast is er een handige buitenberging, perfect voor fietsen en opslag.

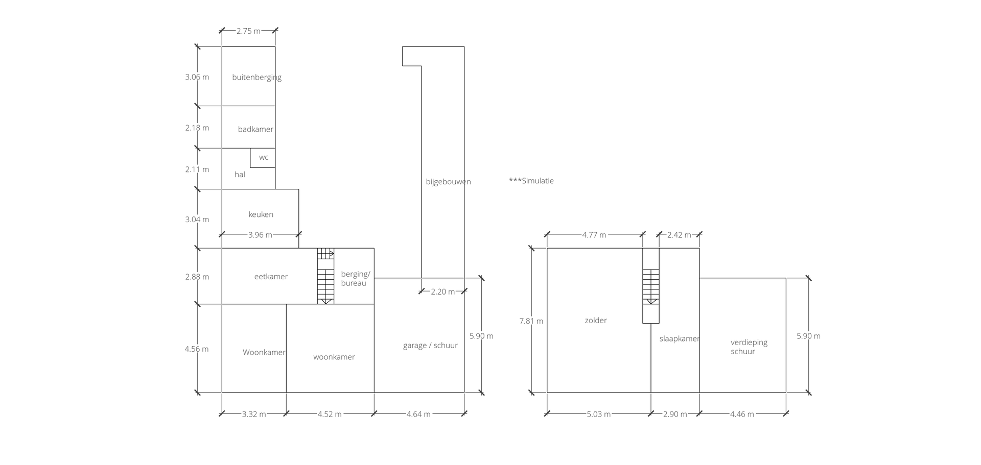
Op de eerste verdieping zijn er twee ruime slaapkamers, met de mogelijkheid om een derde slaapkamer te creëren. Aangrenzend aan de woning bevindt zich een ruime schuur/garage met een extra verdiep, wat tal van mogelijkheden biedt als opslag, werkruimte of hobbyruimte. Verder zijn er nog extra bijgebouwen achter de schuur, ideaal voor bijkomende stockage. De diepe, zonnige tuin maakt het geheel compleet.

Neem alvast een kijkje binnenin via onze virtuele rondleiding!
Op zoek naar een woning met veel mogelijkheden? Plan vandaag nog je bezoek!
Contacteer ons via aalst@immotijl.be of 053 42 46 99.

In detail

Financieel

prijs
€ 269.000
beschikbaarheid
Vanaf akte
onder btw stelsel
nee
kadastraal inkomen
€ 389
opbrengsteigendom
nee

Ligging

ligging
Rustig

Gebouw

constructie
Gesloten
bouwjaar
1918
gevelbreedte
13,50 m
oriëntatie achtergevel
Zuid
oriëntatie voorgevel
Oost

Terrein

perceel opp.
1.180,00 m²
breedte aan de straatkant
13,50 m
tuin
1.040,00 m²

Energie

epc
762 kWh/m²
epc unieke code
0002601611-RES-1
epc klasse
F
verwarming
Gaskachels
type verwarming
Individueel

Garages / parking

garages / parking
1
binnenparking
nee
buitenparking
1

Indeling

kelder
ja
slaapkamers
3
slaapkamer 1
18 m²
slaapkamer 2
35 m²
terras
ja
bureau
ja
woonkamer
35 m²
eetkamer
14 m²
keuken
12 m², Gedeeltelijk geïnstalleerd

Stedenbouwkundige informatie & ruimtelijke ordening

bouwvergunning
ja
verkavelingsvergunning
nee
voorkooprecht
nee
vonnissen
nee
g-score
B
p-score
D
kadaster sectie
A
kadaster nummer
41019P2
kadaster opp.
1180
renovatieverplichting
JaDit pand kan onderheven zijn aan de renovatieverplichting die door de vlaamse overheid word opgelegd voor residentiele gebouwen. Voor meer informatie kan u de website van het Vlaams Energie- en Klimaatagentschap contacteren: https://www.vlaanderen.be/een-woning-kopen/renovatieverplichting-voor-residentiele-gebouwen
Uw makelaar
515 150
Niels Van Grembergen
053 42 46 99